Mechanical characteristics of retaining structure in an expansive soil area of Chengdu
- 
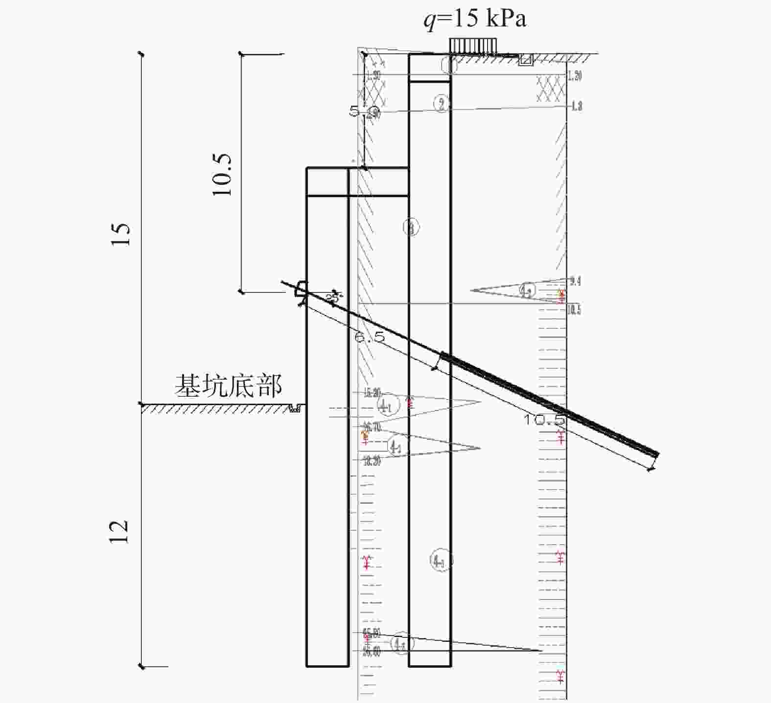
					    摘要: 成都某膨胀土基坑采用h型双排桩+锚索支护,采用FLAC 3D对支护结构进行数值模拟,并从桩排间距、桩顶高差及桩底高差方面进行分析优化。分析结果表明:排距小于5d(d为桩径)时,增加排距会使桩身受力分布趋向合理;随前排桩顶降低,后排桩分担弯矩和剪力增加,但后排桩剪力最大值小于前排桩;随后排桩桩底提高,后排桩弯矩和剪力急剧减小,并出现不合理分布。根据数值分析结果对该工程h型双排桩设计进行了优化,同时在前后排桩连系梁间设置支撑盲沟,于桩间设置仰斜式泄水孔,有效地减弱了膨胀土在大量卸荷后发生松弛,避免了膨胀土因含水量增加抗剪强度降低带来的不利影响。基坑监测数据表明基坑变形控制效果较好,同时验证了数值分析模型的合理可靠性。Abstract: In a foundation pit located in an expansive soil area in Chengdu, an h-type double-row pile + anchor cable support system was employed. FLAC 3D was used to conduct numerical simulations analyzing the effects of varying pile row spacing, and differences in pile top and bottom elevations. The analysis shows that when row spacings are less than five times the pile diameter (5d), increasing the spacing leeds to more reasonable force distribution on the piles. As the top of the front pile decreases, the bending moment and shear force shared by the rear pile increase, yet its maximum shear force remains lower than that of the front row. Elevating the rear row pile bottom resulted in a sharp decrease and misallocation of its bending moment and shear force. Based on these findings, the h-type double-row pile design was optimized by adding supporting blind ditches between tie beams and inclined drainage holes between piles, effectively mitigating expansive soil relaxation and preventing shear strength reduction due to moisture increases. Monitoring data confirmed effective deformation control and validated the reliability of the numerical model.- 
									Key words:
									
- deep excavation /
- expansive soil /
- deformation monitoring /
- FLAC 3D /
- double row pile
 
- 
						
    
    
    
    
    
    
    
    
    
    
    
    
    
    
    
    
    
    
    表 1 主要地层物理力学参数 地层名称 重度/(kN·m−3) 承载力特征值/kPa 压缩模量/MPa 与锚固体粘结强度 /kPa 黏聚力/kPa 内摩擦角/(°) 层厚/m ①杂填土 18.0 2.0* 16 5.0 8.0 0.5~5.2 ②素填土 19.0 3.0* 18 8.0 10.0 0.5~4.2 ③黏土 20.0 200 10.0 50 20.0 12.0 0.7~13.1 ④1全风化泥岩 19.0 180 8.0 65 25.0 16.0 ④2强风化泥岩 22.5 300 20.0 120 30.0 25.0 ④3中等风化泥岩 23.5 750 45.0* 260 110.0* 32.0* 注:带*数据为经验值。 表 2 材料物理力学参数 模型材料 密度 
 /(kg·m−3)弹性模量 
 /GPa泊松比 桩单元 2400 30 0.30 梁单元 2200 25 0.25 表 3 支护结构优化前后参数 桩参数 工况 优化前 优化后 桩排间距 3.0d 3.2d 桩顶高差 4.0 m 5.0 m 桩底高差 0 m 4.0 m 
- 
						[1] 李朝阳, 谢 强, 康景文, 等. 成都某膨胀土基坑边坡失稳机理分析[J]. 建筑科学,2015,31(9):8-12. (LI C Y, XIE Q, KANG J W, et al. Instability mechanism analysis of an expansive soil excavation slope in Chengdu[J]. Building Science,2015,31(9):8-12. (in Chinese)LI C Y, XIE Q, KANG J W, et al. Instability mechanism analysis of an expansive soil excavation slope in Chengdu[J]. Building Science, 2015, 31(9): 8-12. (in Chinese) [2] 邓 安, 彭 涛. 成都某膨胀土深基坑支护事故分析[J]. 四川地质学报,2015,35(1):126-131. (DENG A, PENG T. Analysis of an expansive soil foundation pit accident in Chengdu[J]. Acta Geologica Sichuan,2015,35(1):126-131. (in Chinese) doi: 10.3969/j.issn.1006-0995.2015.01.029DENG A, PENG T. Analysis of an expansive soil foundation pit accident in Chengdu[J]. Acta Geologica Sichuan, 2015, 35(1): 126-131. (in Chinese) doi: 10.3969/j.issn.1006-0995.2015.01.029 [3] SAWAGUCHI M. Lateral behavior of a double sheet pile wall structure[J]. Soils and Foundations,1974,14(1):45-59. doi: 10.3208/sandf1972.14.45 [4] 申永江, 孙红月, 尚岳全, 等. 锚索双排桩与刚架双排桩的对比研究[J]. 岩土力学,2011,32(6):1838-1842. (SHEN Y J, SUN H Y, SHANG Y Q, et al. Comparative study of anchor double-row piles and frame double-row piles[J]. Rock and Soil Mechanics,2011,32(6):1838-1842. (in Chinese) doi: 10.3969/j.issn.1000-7598.2011.06.039SHEN Y J, SUN H Y, SHANG Y Q, et al. Comparative study of anchor double-row piles and frame double-row piles[J]. Rock and Soil Mechanics, 2011, 32(6): 1838-1842. (in Chinese) doi: 10.3969/j.issn.1000-7598.2011.06.039 [5] 薛光桥. 深基坑双排桩结构受力变形机理及其计算模型研究[J]. 铁道标准设计,2016,60(7):116-120. (XUE G Q. Research on mechanism and computation model of deep foundation pit double-row pile structure[J]. Railway Standard Design,2016,60(7):116-120. (in Chinese)XUE G Q. Research on mechanism and computation model of deep foundation pit double-row pile structure[J]. Railway Standard Design, 2016, 60(7): 116-120. (in Chinese) [6] 岳大昌, 李 明, 苏子将, 等. 成都某膨胀土基坑变形分析[J]. 施工技术,2013,42(9):41-44. (YUE D C, LI M, SU Z J, et al. Deformation analysis on some expansive soil foundation excavation in Chengdu[J]. Construction Technology,2013,42(9):41-44. (in Chinese)YUE D C, LI M, SU Z J, et al. Deformation analysis on some expansive soil foundation excavation in Chengdu[J]. Construction Technology, 2013, 42(9): 41-44. (in Chinese) [7] 袁贵兴, 伍军康, 毛家木, 等. 预应力承压型囊式扩体锚索在膨胀土地区基坑支护工程中的应用[J]. 四川建筑, 2015, 35(3): 255-257. (YUAN G X, WU J K, MAO J M, et al. Application of prestressed pressure-bearing bladder expansion anchor cable in foundation pit support engineering in expansive soil area[J]. Sichuan Architecture, 2015, 35(3): 255-257. (in Chinese)YUAN G X, WU J K, MAO J M, et al. Application of prestressed pressure-bearing bladder expansion anchor cable in foundation pit support engineering in expansive soil area[J]. Sichuan Architecture, 2015, 35(3): 255-257. (in Chinese) [8] BRIAUD J L, POWERS III W F, WEATHERBY D E. Should grouted anchors have short tendon bond length?[J]. Journal of Geotechnical and Geoenvironmental Engineering,1998,124(2):110-119. doi: 10.1061/(ASCE)1090-0241(1998)124:2(110) [9] 郑 刚, 聂东清, 程雪松, 等. 基坑分级支护的模型试验研究[J]. 岩土工程学报,2017,39(5):784-794. (ZHENG G, NIE D Q, CHENG X S, et al. Experimental study on multi-bench retaining foundation pit[J]. Chinese Journal of Geotechnical Engineering,2017,39(5):784-794. (in Chinese) doi: 10.11779/CJGE201705002ZHENG G, NIE D Q, CHENG X S, et al. Experimental study on multi-bench retaining foundation pit[J]. Chinese Journal of Geotechnical Engineering, 2017, 39(5): 784-794. (in Chinese) doi: 10.11779/CJGE201705002 [10] 丁海涛, 杨保全. 双排围护桩结构变形和受力三维非线性计算[J]. 地下空间与工程学报,2014,10(3):517-526,558. (DING H T, YANG B Q. The 3-D nonlinear simulation analysis of the deformation and loading of double-row retaining piles structure[J]. Chinese Journal of Underground Space and Engineering,2014,10(3):517-526,558. (in Chinese)DING H T, YANG B Q. The 3-D nonlinear simulation analysis of the deformation and loading of double-row retaining piles structure[J]. Chinese Journal of Underground Space and Engineering, 2014, 10(3): 517-526,558. (in Chinese) [11] 阿比尔的, 郑颖人, 赖 杰, 等. 牌坊坝滑坡双排桩+锚索支护性能研究[J]. 地下空间与工程学报,2016,12(4):1033-1038. (ERDI A, ZHENG Y R, LAI J, et al. Study on supporting properties of double-row piles with anchor in slide of Paifang Dam[J]. Chinese Journal of Underground Space and Engineering,2016,12(4):1033-1038. (in Chinese)ERDI A, ZHENG Y R, LAI J, et al. Study on supporting properties of double-row piles with anchor in slide of Paifang Dam[J]. Chinese Journal of Underground Space and Engineering, 2016, 12(4): 1033-1038. (in Chinese) [12] 许胜才, 范秋雁, 崔 峰. 基于ABAQUS的特殊双排桩支护结构三维有限元模拟[J]. 地下空间与工程学报,2015,11(6):1514-1521. (XU S C, FAN Q Y, CUI F. 3D finite element simulation for special type of double-row piles supporting structure relying on ABAQUS[J]. Chinese Journal of Underground Space and Engineering,2015,11(6):1514-1521. (in Chinese)XU S C, FAN Q Y, CUI F. 3D finite element simulation for special type of double-row piles supporting structure relying on ABAQUS[J]. Chinese Journal of Underground Space and Engineering, 2015, 11(6): 1514-1521. (in Chinese) [13] 郑 刚. 软土地区基坑工程变形控制方法及工程应用[J]. 岩土工程学报,2022,44(1):1-36. (ZHENG G. Method and application of deformation control of excavations in soft ground[J]. Chinese Journal of Geotechnical Engineering,2022,44(1):1-36. (in Chinese) doi: 10.11779/CJGE202201001ZHENG G. Method and application of deformation control of excavations in soft ground[J]. Chinese Journal of Geotechnical Engineering, 2022, 44(1): 1-36. (in Chinese) doi: 10.11779/CJGE202201001 [14] 张虎元, 李秀祥. 黄土基坑双排桩支护结构的有限元分析[J]. 地下空间与工程学报,2016,12(4):1102-1109. (ZHANG H Y, LI X X. The finite element analysis on the retaining structure for loess foundation pit with double-row piles[J]. Chinese Journal of Underground Space and Engineering,2016,12(4):1102-1109. (in Chinese)ZHANG H Y, LI X X. The finite element analysis on the retaining structure for loess foundation pit with double-row piles[J]. Chinese Journal of Underground Space and Engineering, 2016, 12(4): 1102-1109. (in Chinese) [15] 阎 波, 胡 科, 曹 明. 桩间加固土参数对双排桩支护结构的影响分析[J]. 地下空间与工程学报,2022,18(S1):226-232. (YAN B, HU K, CAO M. Analysis of the influences of reinforced soil parameters between piles on double row pile supporting structure[J]. Chinese Journal of Underground Space and Engineering,2022,18(S1):226-232. (in Chinese)YAN B, HU K, CAO M. Analysis of the influences of reinforced soil parameters between piles on double row pile supporting structure[J]. Chinese Journal of Underground Space and Engineering, 2022, 18(S1): 226-232. (in Chinese) [16] 马京京. H型双排桩–锚索复合支挡结构受力特征研究及结构优化[D]. 绵阳: 西南科技大学, 2021. (MA J J. Study on mechanical characteristics and structural optimization of H-shaped double row pile and anchor cable composite retaining structure[D]. Mianyang: Southwest University of Science and Technology, 2021. (in Chinese)MA J J. Study on mechanical characteristics and structural optimization of H-shaped double row pile and anchor cable composite retaining structure[D]. Mianyang: Southwest University of Science and Technology, 2021. (in Chinese) [17] 段瑞凯, 赵天雨, 杨果林, 等. 膨胀土高边坡双排桩板墙土压力试验研究[J]. 施工技术(中英文),2022,51(20):90-93,132. (DUAN R K, ZHAO T Y, YANG G L, et al. Experimental research on soil pressure of double-row pile-sheet wall on high slope with expansive soil[J]. Construction Technology,2022,51(20):90-93,132. (in Chinese)DUAN R K, ZHAO T Y, YANG G L, et al. Experimental research on soil pressure of double-row pile-sheet wall on high slope with expansive soil[J]. Construction Technology, 2022, 51(20): 90-93,132. (in Chinese) [18] 徐邦栋. 高堑坡设计及病害分析与防治[M]. 北京: 中国铁道出版社, 2011: 373-376. (XU B D. High cutting slope design and disease analysis and prevention[M]. Beijing: China Railway Press, 2011, 373-376. (in Chinese)XU B D. High cutting slope design and disease analysis and prevention[M]. Beijing: China Railway Press, 2011, 373-376. (in Chinese) 
- 
						
						  
 
                 
							 
  
							 
							 下载:
下载: 
				 
							 
							 
							 
							 
							 
							 
							 
							 
							 
							 
							 
							 
							 
							 
							 
							 
							 
												