Optimization design of foundation pit support replacement based on the structural characteristics of rainwater pump station
- 
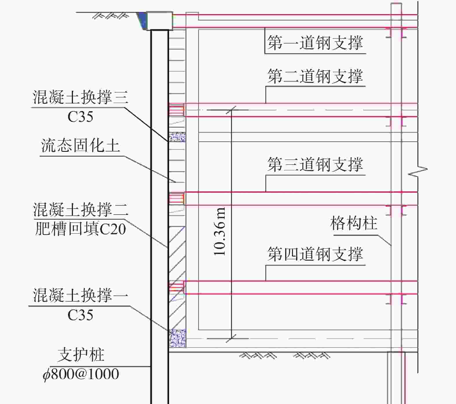
					    摘要: 某雨水泵站基坑深16.16 m,采用支护桩+4道钢管内支撑支护。泵站地下二层高8.9 m,原设计方案第三道支撑拆撑未设置有效换撑,第三道支撑拆除后将导致地下二层侧墙处于悬臂状态,严重影响基坑和泵站结构的安全。结合雨水泵站的结构特征,采用永临结合的换撑方案,在②—⑤轴侧墙第三道支撑下1 m处设置暗梁和永久混凝土梁作为换撑,既解决了基坑的换撑问题,又不影响泵站的使用功能,避免了有限空间内拆换撑的安全风险。结合基坑开挖阶段的监测数据,运用有限元软件midas GTS建立基坑施工过程的三维数值模型,从支护桩深层水平位移、钢支撑轴力及立柱沉降等方面对三维数值模型的合理性进行验证,再利用验证后的模型对基坑拆撑工况进行模拟,预测基坑变形。分析结果表明基坑换撑优化设计方案安全可靠、合理可行,可为类似工程参考。Abstract: The foundation pit of a rainwater pump station is 16.16 meters deep and is supported by retaining piles and 4 steel pipes. The underground second floor of the pump station has a height of 8.9 meters. The original design plan did not include an effective replacement of the third support when it was removed. The removal of the third support will cause the side walls of the underground second floor to be in a cantilever state, seriously affecting the safety of the foundation pit and pump station structure. Based on the structural characteristics of the rainwater pump station, a permanent and temporary support replacement scheme was adopted. A hidden beam and a permanent concrete beam were installed 1 meter below the third support on the side walls of axes ② - ⑤ as replacement supports, which not only solves the problem of replacement supports in the foundation pit but also does not affect the use function of the pump station, avoiding the safety risks of dismantling and replacing supports in limited space. Based on the monitoring data during the excavation stage of the foundation pit, a three-dimensional numerical model of the foundation pit construction process was established using the finite element software Midas GTS. The rationality of the three-dimensional numerical model was verified from the aspects of deep horizontal displacement of support piles, steel support axial force, and column settlement. Then, the validated model was used to simulate the dismantling and support conditions of the foundation pit and predict the deformation of the foundation pit. The analysis results indicate that the optimized design scheme for replacing supports in foundation pits is safe, reliable, reasonable, and feasible, and can serve as a reference for similar engineering projects.
- 
						
    
    
    
    
    
    
    
    
    
    
    
    
    
    
    
    
    
    
    
    
    表 1 模型土体参数表 土层 γ 
 /(kN·m−3)c 
 /kPaφ 
 /(°)Es 
 /MPaυ 填土①1 18.0 8 10 5.0 0.40 粉土② 19.8 12 25 11.2 0.32 粉质黏土③ 19.8 33 12.3 7.9 0.35 粉土④ 18.3 15 28 14.4 0.32 粉质黏土⑤ 19.9 30 12 8.3 0.35 粉土⑤1 20.8 15 25 14.6 0.32 细粉砂⑥ 20.5 0 32 55.0 0.25 粉质黏土⑦ 20.1 30 12 9.1 0.35 表 2 基坑施工阶段划分 施工阶段 施工内容 一 支护桩、冠梁、第一道支撑,第一步土方开挖 二 第二道支撑施工,第二步土方开挖 三 第三道支撑施工,第三步土方开挖 四 第四道支撑施工,开挖至基底 五 换撑一施工,拆除第四道支撑 六 换撑二施工,拆除第三道支撑 七 换撑三施工,拆除第二道支撑 八 拆除第一道支撑 
- 
						[1] 付志杰, 朱泽清, 卢云山, 等. 地铁站深基坑内支撑体系换撑优化施工[J]. 施工技术,2017,46(7):94-97. (FU Z J, ZHU Z Q, LU Y S, et al. Optimization of bracing system for deep foundation excavation of subway station[J]. Construction Technology,2017,46(7):94-97. (in Chinese)FU Z J, ZHU Z Q, LU Y S, et al. Optimization of bracing system for deep foundation excavation of subway station[J]. Construction Technology, 2017, 46(7): 94-97. (in Chinese) [2] 朱海军, 叶亦盛, 龚 杰. 武汉I级阶地地铁车站深基坑换撑优化分析[J]. 施工技术,2018,47(S1):103-107. (ZHU H J, YE Y S, GONG J. Optimization analysis of steel change support for deep foundation excavation of Wuhan I terrace subway station[J]. Construction Technology,2018,47(S1):103-107. (in Chinese)ZHU H J, YE Y S, GONG J. Optimization analysis of steel change support for deep foundation excavation of Wuhan I terrace subway station[J]. Construction Technology, 2018, 47(S1): 103-107. (in Chinese) [3] 戈 铭, 贺智江, 张 煌, 等. 南京长江漫滩某深基坑换撑优化设计案例分析[J]. 南京工程学院学报(自然科学版),2020,18(2):34-40. (GE M, HE Z J, ZHANG H, et al. A case study of an optimization design in removal of braces of an excavation foundation in Nanjing Yangtze river floodplain[J]. Journal of Nanjing Institute of Technology (Natural Science Edition),2020,18(2):34-40. (in Chinese)GE M, HE Z J, ZHANG H, et al. A case study of an optimization design in removal of braces of an excavation foundation in Nanjing Yangtze river floodplain[J]. Journal of Nanjing Institute of Technology (Natural Science Edition), 2020, 18(2): 34-40. (in Chinese) [4] 李向荣, 历朋林. 地铁车站深基坑换撑施工优化探讨[J]. 探矿工程(岩土钻掘工程),2009,36(12):47-50. (LI X R, LI P L. Discussion on optimization of support replacement for deep excavation in subway station construction[J]. Drilling Engineering,2009,36(12):47-50. (in Chinese)LI X R, LI P L. Discussion on optimization of support replacement for deep excavation in subway station construction[J]. Drilling Engineering, 2009, 36(12): 47-50. (in Chinese) [5] 魏冬冬, 陈晨伟, 胡 冬, 等. 一种无中板大型地下泵站深基坑支护换撑技术[J]. 城市道桥与防洪, 2020(11): 221-223. (WEI D D, CHEN C W, HU D, et al. A support replacement technology for deep foundation pit supporting of large underground pumping station without medium plate[J]. Urban Roads Bridges & Flood Control, 2020(11): 221-223. (in Chinese)WEI D D, CHEN C W, HU D, et al. A support replacement technology for deep foundation pit supporting of large underground pumping station without medium plate[J]. Urban Roads Bridges & Flood Control, 2020(11): 221-223. (in Chinese) [6] 杨有明. 狭窄施工场地内的深基坑内支撑梁拆除方案优化与施工[J]. 建筑施工,2017,39(6):778-780. (YANG Y M. Scheme optimization and construction of inner support beam removal in deep foundation pit at narrow construction site[J]. Building Construction,2017,39(6):778-780. (in Chinese)YANG Y M. Scheme optimization and construction of inner support beam removal in deep foundation pit at narrow construction site[J]. Building Construction, 2017, 39(6): 778-780. (in Chinese) [7] 金 旭, 苗晓鹏, 吕圣岚, 等. 北京地区某深基坑支护设计与监测数据对比分析[J]. 岩土工程技术,2023,37(4):499-504. (JIN X, MIAO X P, LV S L, et al. Design and monitoring analysis of a deep foundation pit in Beijing[J]. Geotechnical Engineering Technique,2023,37(4):499-504. (in Chinese) doi: 10.3969/j.issn.1007-2993.2023.04.022JIN X, MIAO X P, LV S L, et al. Design and monitoring analysis of a deep foundation pit in Beijing[J]. Geotechnical Engineering Technique, 2023, 37(4): 499-504. (in Chinese) doi: 10.3969/j.issn.1007-2993.2023.04.022 [8] 樊凤凯, 薛 双. 南京市某地铁车站深基坑变形分析与优化设计[J]. 长春工程学院学报(自然科学版),2020,21(3):38-43. (FAN F K, XUE S. Deformation analysis and optimum design of deep foundation pit of a subway station in Nanjing[J]. Journal of Changchun Institute of Technology (Natural Science Edition),2020,21(3):38-43. (in Chinese)FAN F K, XUE S. Deformation analysis and optimum design of deep foundation pit of a subway station in Nanjing[J]. Journal of Changchun Institute of Technology (Natural Science Edition), 2020, 21(3): 38-43. (in Chinese) [9] 胡敏云, 夏佳莉, 寿树德, 等. 相邻基坑围护结构变形及控制的模拟与实测[J]. 浙江工业大学学报,2023,51(5):497-503,552. (HU M Y, XIA J L, SHOU S D, et al. Simulation and measurement on the deformation and control effect of adjacent foundation pit excavations[J]. Journal of Zhejiang University of Technology,2023,51(5):497-503,552. (in Chinese) doi: 10.3969/j.issn.1006-4303.2023.05.004HU M Y, XIA J L, SHOU S D, et al. Simulation and measurement on the deformation and control effect of adjacent foundation pit excavations[J]. Journal of Zhejiang University of Technology, 2023, 51(5): 497-503,552. (in Chinese) doi: 10.3969/j.issn.1006-4303.2023.05.004 [10] 孟建龙. 宁波某地铁深基坑支护数值模拟与监测分析[D]. 淮南: 安徽理工大学, 2022. (MENG J L. Numerical simulation and monitoring analysis of deep foundation pit support of a metro in Ningbo[D]. Huainan: Anhui University of Science and Technology, 2022. (in Chinese)MENG J L. Numerical simulation and monitoring analysis of deep foundation pit support of a metro in Ningbo[D]. Huainan: Anhui University of Science and Technology, 2022. (in Chinese) 
- 
						
						  
 
                 
							 
  
							 
							 下载:
下载: 
				 
							 
							 
							 
							 
							 
							 
							 
							 
							 
							 
							 
							 
							 
							 
							 
							 
							 
							 
							 
												