留言板

尊敬的读者、作者、审稿人, 关于本刊的投稿、审稿、编辑和出版的任何问题, 您可以本页添加留言。我们将尽快给您答复。谢谢您的支持!

姓名
邮箱
手机号码
标题
留言内容
验证码

富水地层洞内“钻孔桩+旋喷桩”组合型结构施工力学及变形特征

宋海山 李珠妍 丁春福 李立云

宋海山, 李珠妍, 丁春福, 李立云. 富水地层洞内“钻孔桩+旋喷桩”组合型结构施工力学及变形特征[J]. 岩土工程技术, 2025, 39(5): 699-708. doi: 10.20265/j.cnki.issn.1007-2993.2024-0336
引用本文: 宋海山, 李珠妍, 丁春福, 李立云. 富水地层洞内“钻孔桩+旋喷桩”组合型结构施工力学及变形特征[J]. 岩土工程技术, 2025, 39(5): 699-708. doi: 10.20265/j.cnki.issn.1007-2993.2024-0336
Song Haishan, Li Zhuyan, Ding Chunfu, Li Liyun. Mechanics and deformation characteristics of bored pile and rotary jet grouting pile composite structure for tunnel in water-rich stratum[J]. GEOTECHNICAL ENGINEERING TECHNIQUE, 2025, 39(5): 699-708. doi: 10.20265/j.cnki.issn.1007-2993.2024-0336
Citation: Song Haishan, Li Zhuyan, Ding Chunfu, Li Liyun. Mechanics and deformation characteristics of bored pile and rotary jet grouting pile composite structure for tunnel in water-rich stratum[J]. GEOTECHNICAL ENGINEERING TECHNIQUE, 2025, 39(5): 699-708. doi: 10.20265/j.cnki.issn.1007-2993.2024-0336

富水地层洞内“钻孔桩+旋喷桩”组合型结构施工力学及变形特征

doi: 10.20265/j.cnki.issn.1007-2993.2024-0336
基金项目: 国家重点研发计划资助(2023YFC3009300;2023YFC3009302)
详细信息
    作者简介:

    宋海山,男,1981年生,硕士,高级工程师,主要从事地铁施工技术方面的研究。E-mail:714710023@qq.com

    通讯作者:

    李立云,男,1973年生,博士,教授,博士生导师,主要从事岩土与地下工程防灾减灾方面的研究。E-mail:lly@bjut.edu.cn

  • 中图分类号: U455

Mechanics and deformation characteristics of bored pile and rotary jet grouting pile composite structure for tunnel in water-rich stratum

  • 摘要: 为探讨“钻孔灌注桩+旋喷桩”组合型结构在PBA隧道施工中的适用性,揭示其力学效应,依托北京轨道交通13号线东三路站—天通苑东站暗挖区间工程实例,针对承压富水地层中“钻孔桩+旋喷桩”组合型结构围护下的PBA隧道施工全过程进行了数值仿真,分析了关键施工步序下该组合型结构的内力、变形情况以及其施工过程对地表沉降和地层塑性区的影响,探讨了桩径、桩身插入比和桩间咬合量对其力学表现的影响。结果表明:(1)施作“钻孔桩+旋喷桩”组合型结构阶段对地表沉降槽和地层塑性区的影响不大;(2)“钻孔桩+旋喷桩”组合型结构在暗挖隧道施工中主要出现朝向隧道内侧的水平侧移,整体侧移量沿深度方向呈二次曲线形态,最大侧移出现在旋喷桩中部及钻孔灌注桩上部,底板以下侧移较小;(3)主洞开挖之后,钻孔灌注桩及旋喷桩的轴力较均匀地分布在整个主洞开挖临空段,轴力和弯矩值在底板以下急剧缩减,最大轴力及弯矩均位于底板附近。

     

  • 图  1  工程位置

    图  2  暗挖隧道区间平面布置图

    图  3  区间正线1-1断面图(单位:mm)

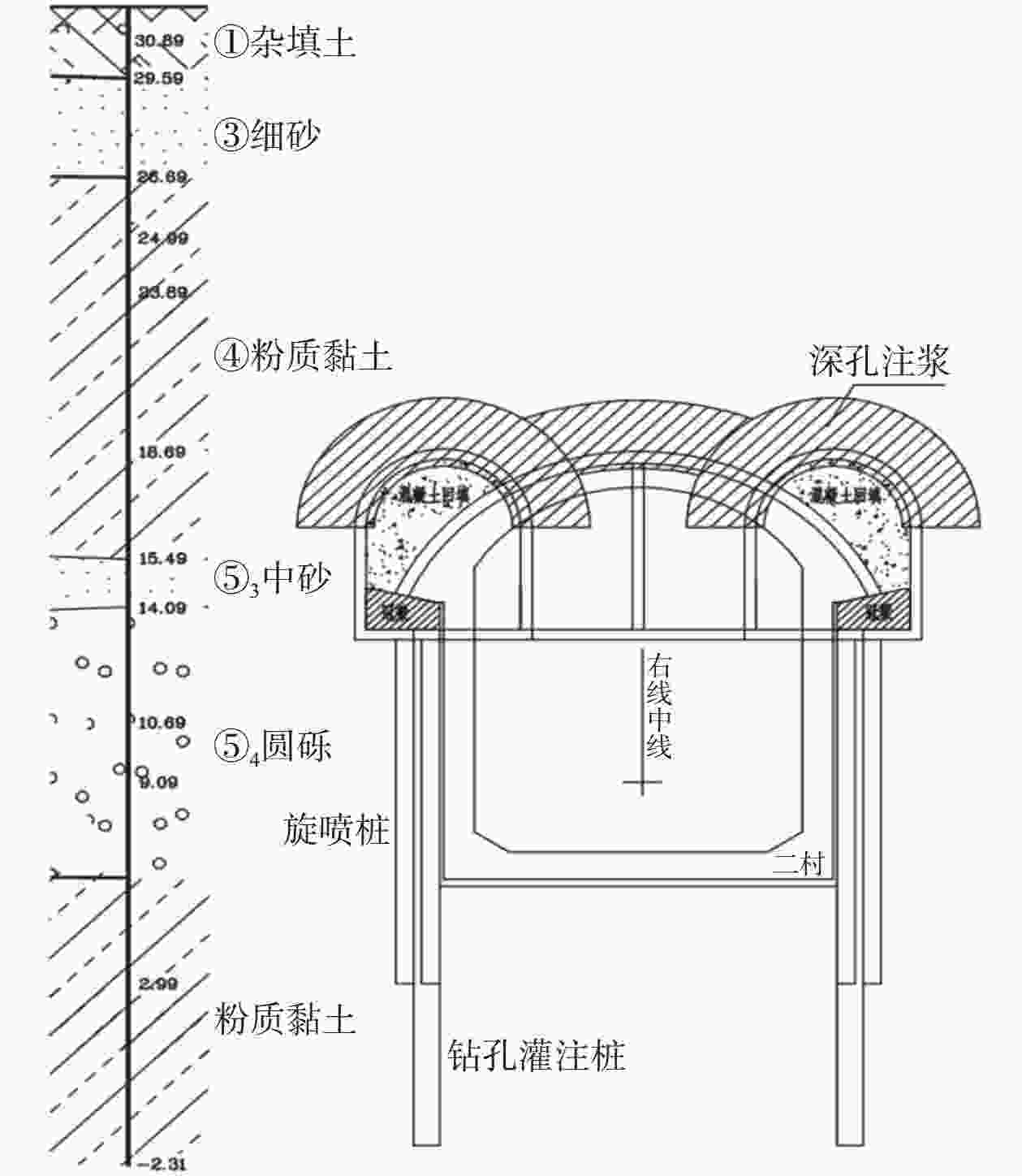
    图  4  工程地质剖面

    图  5  双层组合结构布置及施工流程

    图  6  结构部分网格划分

    图  7  围护结构水平位移云图

    图  8  关键步序下围护结构侧移曲线

    图  9  关键步序下围护结构内力

    图  10  地表纵向中断面沉降曲线

    图  11  关键步序下地层塑性区分布图

    表  1  岩土物理力学参数表

    土层编号 土层名称 天然容重
    γ/(kN·m−3
    泊松比 黏聚力
    c/kPa
    内摩擦角
    φ/(°)
    压缩模量
    Es/MPa
    杂填土 18.0 0.35 5 10 12.5
    细砂 20.0 0.22 0 32 41.5
    粉质黏土 20.5 0.30 23 15 30.0
    3 中砂 20.5 0.22 0 36 50.0
    4 圆砾 21.0 0.20 0 34 55.0
    粉质黏土 20.2 0.27 30 16 39.3
    下载: 导出CSV

    表  2  支护结构物理力学参数表[6]

    结构名称单元类型弹性模量E/GPa重度γ/(kN·m−3泊松比
    初支2D板单元28.024.50.22
    二衬实体单元31.525.00.25
    冠梁实体单元31.525.00.25
    旋喷桩1D梁单元19.021.50.20
    钻孔灌注桩1D梁单元31.525.00.25
    下载: 导出CSV

    表  3  数值模拟施工步序

    施工步序步序详情
    FS初始渗流场分析,激活土体及初始水位
    IS初始应力场分析,位移清零
    CS1管棚注浆,开挖前导洞超前注浆
    CS2-CS25导洞开挖支护,同步超前注浆
    CS26导洞开挖完成
    CS27“钻孔桩+旋喷桩”围护结构施作
    CS28冠梁及拱脚初支施作
    CS29导洞墙背回填
    CS30围护结构及冠梁施作完成,回填完成
    CS31-CS62分步激活渗流面水头边界进行稳态分析,
    同时进行主洞开挖支护
    CS63主洞开挖支护完成
    CS64-CS67分段拆除临时支护,施作二衬结构
    CS68主洞二衬完成
    下载: 导出CSV

    表  4  极差分析结果

    目标参量桩身最大侧移/mm桩身最大轴力/kN桩身最大弯矩/(kN·m)
    影响因素ABCABCABC
    $ \stackrel{-}{{\mathit{K}}_{1}} $10.8810.2810.10640.16668.05679.7175.3586.6980.50
    $ \stackrel{-}{{\mathit{K}}_{2}} $10.4210.0910.11671.46676.17676.7390.1188.9783.42
    $ \stackrel{-}{{\mathit{K}}_{3}} $9.559.889.94685.46680.04678.9788.2289.7588.92
    $ \stackrel{-}{{\mathit{K}}_{4}} $9.099.709.81726.46699.25688.1297.0085.2997.86
    极差R1.790.580.3086.3031.2011.3921.654.4617.36
    注:影响因素A,B,C分别为桩径、桩身插入比、桩间咬合量。
    下载: 导出CSV
  • [1] LI Z G, SUI Z L, ZHANG Q Z, et al. Supporting design and stability analysis of a subway station's main body tunneling[J]. Applied Mechanics and Materials, 2013, 470: 970-975. doi: 10.4028/www.scientific.net/AMM.470.970
    [2] LIU X R, LIU Y Q, QU W B, et al. Internal force calculation and supporting parameters sensitivity analysis of side piles in the subway station excavated by Pile-Beam-Arch method[J]. Tunnelling and Underground Space Technology, 2016, 56: 186-201. doi: 10.1016/j.tust.2016.03.012
    [3] 武钰斌. PBA工法地铁车站钻孔咬合桩围护结构止水效果及开挖变形研究[D]. 北京: 北京交通大学, 2020. (WU Y B. Research on waterproof effect and excavation deformation of retaining structure of secant piles in PBA method constructed subway station[D]. Beijing: Beijing Jiaotong University, 2020. (in Chinese)

    WU Y B. Research on waterproof effect and excavation deformation of retaining structure of secant piles in PBA method constructed subway station[D]. Beijing: Beijing Jiaotong University, 2020. (in Chinese)
    [4] 朱雅倩, 薛洪松, 刘希胜, 等. 暗挖车站地下连续墙施工地表沉降分析[J]. 岩土工程技术, 2021, 35(2): 77-83,98. (ZHU Y Q, XUE H S, LIU X S, et al. Analysis on the ground settlement in the construction of diaphragm wall of subway excavated stations[J]. Geotechnical Engineering Technique, 2021, 35(2): 77-83,98. (in Chinese) doi: 10.3969/j.issn.1007-2993.2021.02.002

    ZHU Y Q, XUE H S, LIU X S, et al. Analysis on the ground settlement in the construction of diaphragm wall of subway excavated stations[J]. Geotechnical Engineering Technique, 2021, 35(2): 77-83,98. (in Chinese) doi: 10.3969/j.issn.1007-2993.2021.02.002
    [5] 薛洪松, 朱雅倩, 张志红, 等. 暗挖车站洞内地下连续墙施工地层效应分析[J]. 科学技术与工程, 2022, 22(7): 2878-2886. (XUE H S, ZHU Y Q, ZHANG Z H, et al. Stratum effect of diaphragm wall construction with pile-beam-arch method[J]. Science Technology and Engineering, 2022, 22(7): 2878-2886. (in Chinese) doi: 10.3969/j.issn.1671-1815.2022.07.043

    XUE H S, ZHU Y Q, ZHANG Z H, et al. Stratum effect of diaphragm wall construction with pile-beam-arch method[J]. Science Technology and Engineering, 2022, 22(7): 2878-2886. (in Chinese) doi: 10.3969/j.issn.1671-1815.2022.07.043
    [6] 王 扩, 姚爱军, 张 东, 等. 富水地层中暗挖地铁车站洞内咬合桩力学性能及优化[J]. 地下空间与工程学报, 2021, 17(S2): 779-787. (WANG K, YAO A J, ZHANG D, et al. Mechanical properties and optimization of secant piles in underground excavated subway stations in water-rich stratum[J]. Chinese Journal of Underground Space and Engineering, 2021, 17(S2): 779-787. (in Chinese)

    WANG K, YAO A J, ZHANG D, et al. Mechanical properties and optimization of secant piles in underground excavated subway stations in water-rich stratum[J]. Chinese Journal of Underground Space and Engineering, 2021, 17(S2): 779-787. (in Chinese)
    [7] 叶 小. 基于流固耦合的双碑隧道富水区围岩稳定性研究[D]. 重庆: 重庆交通大学, 2019. (YE X. Study on stability of surrounding rock in water-rich area of Shuangbei tunnel based on fluid-solid coupling[D]. Chongqing: Chongqing Jiaotong University, 2019. (in Chinese)

    YE X. Study on stability of surrounding rock in water-rich area of Shuangbei tunnel based on fluid-solid coupling[D]. Chongqing: Chongqing Jiaotong University, 2019. (in Chinese)
    [8] 袁羊扣, 焦有权, 罗沐池, 等. 洞桩法边桩变形的荷载-结构模型[J]. 兰州理工大学学报, 2020, 46(1): 123-128. (YUAN Y K, JIAO Y Q, LUO M C, et al. Load-structure model of side pile deformation based on pile-tunnel method[J]. Journal of Lanzhou University of Technology, 2020, 46(1): 123-128. (in Chinese) doi: 10.3969/j.issn.1673-5196.2020.01.021

    YUAN Y K, JIAO Y Q, LUO M C, et al. Load-structure model of side pile deformation based on pile-tunnel method[J]. Journal of Lanzhou University of Technology, 2020, 46(1): 123-128. (in Chinese) doi: 10.3969/j.issn.1673-5196.2020.01.021
    [9] 杜昌隆, 朱雅倩, 马 路, 等. PBA暗挖地铁车站洞内地下连续墙施工力学响应分析[J]. 岩土工程技术, 2023, 37(2): 135-141. (DU C L, ZHU Y Q, MA L, et al. Mechanical response analysis on construction of diaphragm wall in PBA underground excavation subway station[J]. Geotechnical Engineering Technique, 2023, 37(2): 135-141. (in Chinese)

    DU C L, ZHU Y Q, MA L, et al. Mechanical response analysis on construction of diaphragm wall in PBA underground excavation subway station[J]. Geotechnical Engineering Technique, 2023, 37(2): 135-141. (in Chinese)
    [10] 秦晓英. 城市地铁车站PBA工法施工力学效应的数值模拟研究[D]. 重庆: 重庆大学, 2008. (QIN X Y. Study on numerical simulation of mechanical effect of PBA method for city subway station with shallow buried[D]. Chongqing: Chongqing University, 2008. (in Chinese)

    QIN X Y. Study on numerical simulation of mechanical effect of PBA method for city subway station with shallow buried[D]. Chongqing: Chongqing University, 2008. (in Chinese)
    [11] 姚宣德, 王梦恕. 地铁浅埋暗挖法施工引起的地表沉降控制标准的统计分析[J]. 岩石力学与工程学报, 2006, 25(10): 2030-2035. (YAO X D, WANG M S. Statistic analysis of guideposts for ground settlement induced by shallow tunnel construction[J]. Chinese Journal of Rock Mechanics and Engineering, 2006, 25(10): 2030-2035. (in Chinese) doi: 10.3321/j.issn:1000-6915.2006.10.013

    YAO X D, WANG M S. Statistic analysis of guideposts for ground settlement induced by shallow tunnel construction[J]. Chinese Journal of Rock Mechanics and Engineering, 2006, 25(10): 2030-2035. (in Chinese) doi: 10.3321/j.issn:1000-6915.2006.10.013
    [12] WANG Q K, HU Z B, JI Y K, et al. Centrifugal model test based bearing characteristics and analytical model of uplift pile in combined composite ground[J]. Rock Mechanics and Rock Engineering, 2022, 55(6): 3525-3543. doi: 10.1007/s00603-022-02820-z
  • 加载中
图(11) / 表(4)
计量
  • 文章访问数:  49
  • HTML全文浏览量:  15
  • PDF下载量:  16
  • 被引次数: 0
出版历程
  • 收稿日期:  2024-07-22
  • 修回日期:  2025-03-02
  • 录用日期:  2025-04-09
  • 刊出日期:  2025-10-10

目录

    /

    返回文章
    返回