留言板

尊敬的读者、作者、审稿人, 关于本刊的投稿、审稿、编辑和出版的任何问题, 您可以本页添加留言。我们将尽快给您答复。谢谢您的支持!

姓名
邮箱
手机号码
标题
留言内容
验证码

“两墙合一”深基坑工程设计与技术创新

李伟 李永东

李伟, 李永东. “两墙合一”深基坑工程设计与技术创新[J]. 岩土工程技术, 2024, 38(4): 384-390. doi: 10.3969/j.issn.1007-2993.2024.04.002
引用本文: 李伟, 李永东. “两墙合一”深基坑工程设计与技术创新[J]. 岩土工程技术, 2024, 38(4): 384-390. doi: 10.3969/j.issn.1007-2993.2024.04.002
Li Wei, Li Yongdong. Design Technology Innovation of “Two Walls Integration” Diaphragm Walls in Deep Foundation Pits[J]. GEOTECHNICAL ENGINEERING TECHNIQUE, 2024, 38(4): 384-390. doi: 10.3969/j.issn.1007-2993.2024.04.002
Citation: Li Wei, Li Yongdong. Design Technology Innovation of “Two Walls Integration” Diaphragm Walls in Deep Foundation Pits[J]. GEOTECHNICAL ENGINEERING TECHNIQUE, 2024, 38(4): 384-390. doi: 10.3969/j.issn.1007-2993.2024.04.002

“两墙合一”深基坑工程设计与技术创新

doi: 10.3969/j.issn.1007-2993.2024.04.002
详细信息
    作者简介:

    李 伟,女,1986年生,汉族,河南封丘人,硕士,高级工程师,从事岩土工程设计与研究。E-mail:liweikf110610@126.com

  • 中图分类号: TU476

Design Technology Innovation of “Two Walls Integration” Diaphragm Walls in Deep Foundation Pits

  • 摘要: 北京CBD核心区某项目基坑深度36 m,因受场地空间限制,采用“两墙合一”+内支撑支护体系,在实现基坑挡土、止水功能的同时完成了地下结构外墙施工。为提高工程质量和施工效率,针对地连墙与主体结构的连接、槽段接头处理方式、有限空间导墙结合近接建筑物预换撑等方面进行了技术创新,取得了较好的工程效果,可供类似工程参考。

     

  • 图  1  原支护结构平面图

    图  2  北侧支护剖面示意图(单位:mm)

    图  3  西侧支护剖面示意图(单位:mm)

    图  4  东侧支护剖面示意图(单位:mm)

    图  5  地层与基坑关系示意图

    图  6  基坑支护平面图

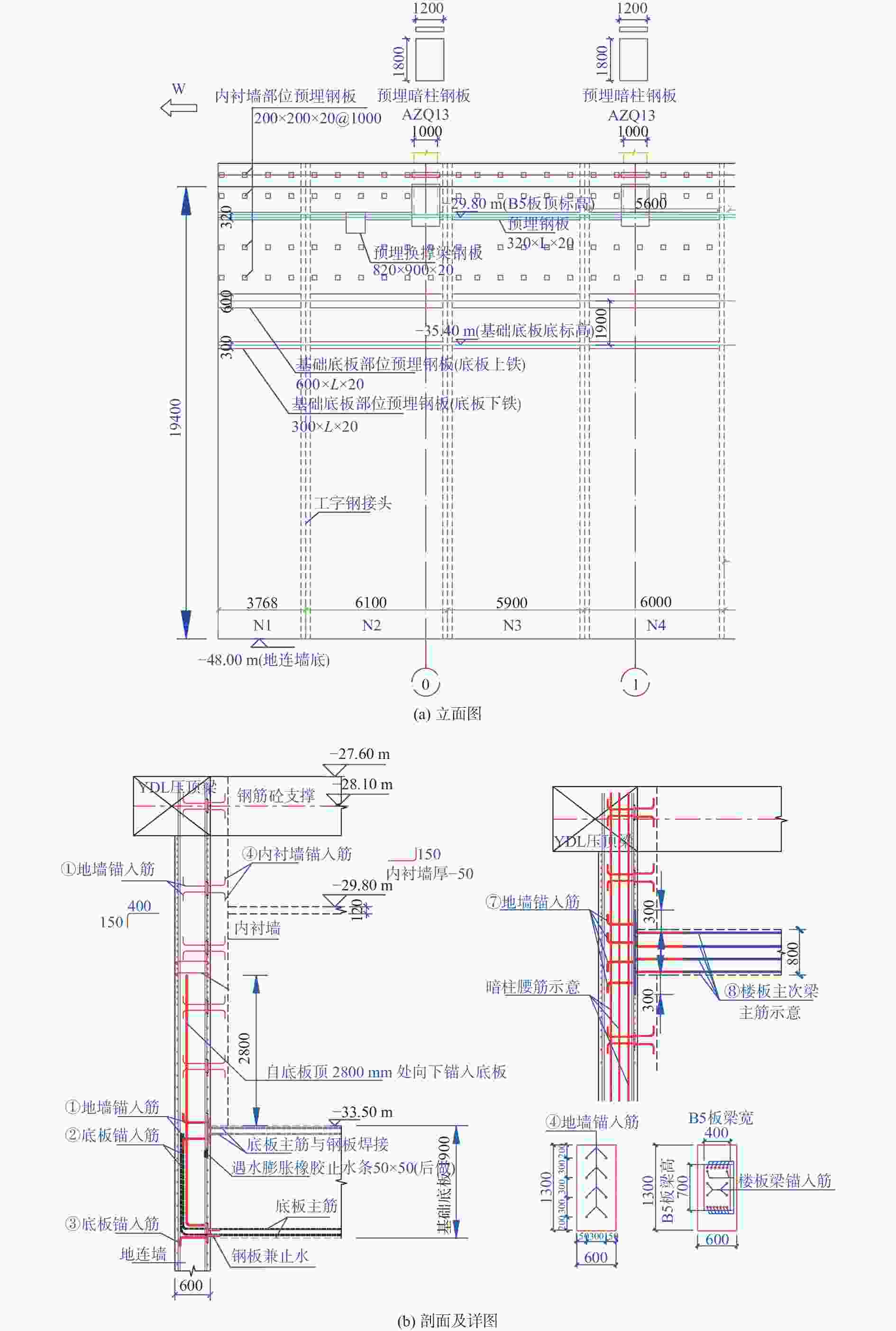
    图  7  基坑支护典型剖面图(单位:mm)

    图  8  预留钢板及锚筋做法(单位:mm)

    图  9  预留钢板及钢筋锚固图及施工照片

    图  10  地下连续墙接头示意图

    图  11  地下连续墙接头防绕流示意图

    图  12  异形导墙剖面及配筋图(单位:mm)

    图  13  施工工况模拟图

    图  14  盆式开挖剖面图(单位:mm)

    表  1  土层物理力学指标

    土层名称 重度
    γ0/(kN·m−3)
    抗剪强度 土体与锚固体的
    极限侧阻力
    特征值qs/kPa
    c/kPa φ/(°)
    1黏质粉土–砂质
    粉土素填土
    17.0 10.0 15.0 30
    1粉砂–细砂 20.0 3.0 25.0 100
    2黏质粉土–砂质粉土 20.2 20.0 25.0 90
    ③细砂–中砂 20.0 2.0 32.0 110
    ④圆砾–卵石 21.0 2.0 42.0 160
    ⑤黏质粉土–粉质黏土 20.0 22.0 25.0 100
    ⑥卵石–圆砾 22.0 2.0 45.0 220
    1细砂–中砂 20.5 2.0 32.0 120
    ⑦黏土–重粉质黏土 17.9 35.0 20.0 80
    1粉质黏土–黏质粉土 20.1 25.0 25.0 90
    ⑧卵石–圆砾 22.5 2.0 48.0 220
    1细砂–中砂 21.0 2.0 35.0 130
    ⑨粉质黏土–黏质粉土 20.3 30.0 26.0 90
    1黏土–重粉质黏土 18.9 35.0 22.0 80
    下载: 导出CSV

    表  2  地下水水位情况及类型

    地下水类型地下水稳定水位
    水位埋深/m水位标高/m
    潜水29.85~30.627.38~8.15
    承压水(一)27.45~30.127.88~10.55
    承压水(二)28.65~30.557.45~9.35
    下载: 导出CSV
  • [1] 王 翼. 上海某泵房基坑“两墙合一”地下连续墙设计[J]. 城市道桥与防洪,2020(2):200-202.
    [2] 王 龙. 基于“两墙合一”的泵站地下基坑连续墙施工技术[J]. 水利技术监督,2022,179(9):270-272,281. doi: 10.3969/j.issn.1008-1305.2022.09.067
    [3] 贾曾潘, 陈保国. “两墙合一”条件下地铁车站深基坑变形特性[J]. 北京交通大学学报,2021,45(3):47-54. doi: 10.11860/j.issn.1673-0291.20200121
    [4] 陈其志, 徐良英, 徐长节, 等. “两墙合一”技术在深基坑围护优化设计中的应用[J]. 地下空间与工程学报,2015,11(S1):189-194.
    [5] 王卫东, 翁其平. “两墙合一”设计关键技术问题研究[J]. 地下空间与工程学报,2005(4):574-578. doi: 10.3969/j.issn.1673-0836.2005.04.021
    [6] 冯 涛. 交叉异型深基坑支护体系受力分析[J]. 水利与建筑工程学报,2012,10(5):91-95. doi: 10.3969/j.issn.1672-1144.2012.05.023
    [7] 杨 赟, 段贤明, 秦 帅, 等. 槽段接头刚度对地连墙变形影响研究[J]低温建筑技术, 2014, 36(3): 119-122.
    [8] 金晓飞. 新型接头超深地下连续墙施工过程分析及工程应用研究[D]. 南京: 东南大学, 2016.
    [9] 孙 超, 魏兆雷, 付 乔, 等. 基于DTS的地下连续墙接头处渗漏预测[J]. 岩土工程技术,2021,35(1):21-26,31.
    [10] 刘爱娟, 管文江, 张彦生. 钢筋接驳器在地下连续墙中的应用[J]. 天津建设科技,2012,22(2):25-26. doi: 10.3969/j.issn.1008-3197.2012.02.010
    [11] 王卫东. 地下连续墙作为主体结构的设计[J]. 建筑结构,2002(1):3-8,25.
    [12] 陈 松, 邢沛霖, 叶家万. 超深基坑地下连续墙作为主体结构的设计方法研究[J]. 建筑结构,2012,42(9):48-51.
    [13] 宋青君, 王卫东, 翁其平. “两墙合一”深基坑工程设计中的若干技术问题与对策[J]. 岩土工程学报,2006(S1):1590-1595.
    [14] 卢俊旭, 赖明松, 王 睿, 等. 地下连续墙“两墙合一”做法技术创新[J]. 建筑技术开发,2019,46(22):89-90. doi: 10.3969/j.issn.1001-523X.2019.22.043
    [15] 翁其平, 王卫东, 周建龙. 超深圆形基坑逆作法“两墙合一”地下连续墙设计[J]. 建筑结构学报,2010,31(5):188-194.
  • 加载中
图(14) / 表(2)
计量
  • 文章访问数:  477
  • HTML全文浏览量:  126
  • PDF下载量:  110
  • 被引次数: 0
出版历程
  • 收稿日期:  2023-02-16
  • 修回日期:  2023-11-08
  • 录用日期:  2023-11-28
  • 网络出版日期:  2024-08-09
  • 刊出日期:  2024-08-09

目录

    /

    返回文章
    返回