留言板

尊敬的读者、作者、审稿人, 关于本刊的投稿、审稿、编辑和出版的任何问题, 您可以本页添加留言。我们将尽快给您答复。谢谢您的支持!

姓名
邮箱
手机号码
标题
留言内容
验证码

当期目录

2025年 第39卷  第5期

2025 年 5 期封面
2025, 39(5): 1-1.
摘要:
2025 年 5 期目次
2025, 39(5): 1-3.
摘要:
综述与展望
我国重大调水工程深埋长隧洞地质问题与对策—第九届全国岩土工程实录交流会特邀报告
司富安
2025, 39(5): 633-638. doi: 10.20265/j.cnki.issn.1007-2993.2024-0570
摘要:
深埋长隧洞勘察是目前工程建设中遇到的世界级难题。基于我国重大调水工程发展历史及现状,分析重大调水工程深埋长隧洞建设中面临重大工程地质问题,主要包括:软岩变形、突(涌)水(泥)、高外水压力、岩爆、有毒有害气体等。针对当前深埋长隧洞勘察面临的理论、技术和环境制约条件,提出了做好前期勘察工作、通过方案比选尽可能规避地质风险、选择合适施工工法、提前做好地质风险处理预案、施工期做好超前地质预报、发现问题及时应对等对策与措施。
技术开发与创新
基于机器学习的顶管施工江堤变形预测研究
徐浩, 廖铭新, 卞士海, 蒋建良, 李奥典, 许斌锋, 罗伟锦
2025, 39(5): 639-647. doi: 10.20265/j.cnki.issn.1007-2993.2024-0287
摘要:
过江顶管由于施工作业面较小,江边堆填荷载较大,影响江堤稳定性,提前预测江堤位移对安全施工具有重要意义。通过自适应噪声的完备集合经验模态分解方法(CEEMDAN),将非线性非稳定性的监测数据分解为趋势项和周期项,提出一种适合于江堤变形的智能预测模型(CTG)。模型针对趋势项采用多项式函数预测;针对周期项,采用结合粒子群优化算法和时间卷积网络−门控循环单元混合模型的PSO-TCN-GRU算法进行预测。将算法应用于段塘顶管施工项目,结果表明该智能算法优于其他经典的神经网络预测方法,具有一定的推广价值,可为同类工程变形预测提供参考。另外,建议进行监测数据预测时先进行数据分解和特征提取,有利于改善模型预测结果。
改进自适应指数平滑法及其在基坑变形预测中的应用
燕俊松, 石泉彬, 刘如兵
2025, 39(5): 648-655. doi: 10.20265/j.cnki.issn.1007-2993.2024-0168
摘要:
对基坑开挖变形作出可靠预测有助于提高施工安全性。对现有自适应指数平滑法进行了改进,摒弃采用遍历法求解最优平滑系数α的传统思路,以均方误差(MSE)作为损失函数,推导了一次、二次和三次指数平滑模型的MSE对α的梯度表达式,进而采用梯度下降法求解最优α值。与原方法相比,改进方法在最优平滑模型选择及平滑系数优化方面展现出与原方法相当的性能,且在适当的超参数(尤其是学习率)设置情况下,寻优效率显著提升。在此基础上,基于1900组基坑变形序列的应用,较为系统地评估了改进自适应指数平滑法在基坑变形预测中的适用性和可靠性,并探讨了预测步长和训练序列长度对预测性能的影响,据此提出了基坑变形预测优化方案。
基于XGBoost和贝叶斯优化的静力触探地层分类预测方法
冼天朗, 李小虎, 张赟, 黄金龙, 陈干
2025, 39(5): 656-666. doi: 10.20265/j.cnki.issn.1007-2993.2024-0165
摘要:
地层划分和土类识别是静力触探试验成果应用的基础。为了实现基于静力触探试验数据的地层准确分类,提出了一种基于极限梯度提升(eXtreme Gradient Boosting,XGBoost)和贝叶斯优化(Bayesian Optimization, BO)的静力触探土层分类预测方法。采用XGBoost方法,基于华南地区某岩土工程勘察项目的静力触探试验数据构建数据集,采用贝叶斯优化方法对XGBoost模型超参数进行优化,并构建了最优XGBoost模型对地层类别进行分类预测。所构建的XGBoost模型在训练集和测试集上的分类预测准确率分别为100%和96.46%。经过贝叶斯优化的支持向量机模型、K近邻模型和随机森林模型在测试集上的预测准确率分别为93.34%,92.99%和95.89%,均低于XGBoost模型的准确率,证明了XGBoost模型的地层分类预测性能的优越性。将所构建的XGBoost模型用于华南地区某岩土工程勘察项目的两个钻孔的地层分类预测,预测准确率均达到了95%以上,表明该模型对于实际岩土工程勘察实践中的静力触探地层分类工作具有可靠的应用价值。
工程实践与应用
高烈度地震设防区巨厚堆积体锚碇深基坑稳定性研究
杜兆萌, 刘天翔, 伍运霖, 雷航, 李超, 袁文
2025, 39(5): 667-673. doi: 10.20265/j.cnki.issn.1007-2993.2024-0092
摘要:
锚碇基坑的稳定性是影响悬索桥工程安全的主要控制因素。四川某特大悬索桥位于高烈度地震设防区,其锚碇基坑位于巨厚堆积体中,基坑边坡最大坡高达110 m。以该锚碇基坑工程为例,针对巨厚层堆积体上超百米深基坑的长期稳定性问题开展研究。采用原位密度试验、现场剪切试验及变形试验,研究基坑土体强度及变形特性,得出了基坑土体物理力学参数。应用有限差分软件对锚碇基坑进行地震三维模拟计算,结果表明在强震下深厚堆积体基坑极易诱发变形甚至滑移失稳破坏,坡体最大位移约20 m,坡体失稳范围厚度约15~23 m。据此,提出桥梁基坑防护两水准要求以及开挖预加固、分步开挖、分区防护的综合治理措施,在此基础上采用动力时程分析法进行基坑稳定性验算。结果表明,在输入30 s汶川地震波后加固后的坡体最大位移仅为0.223 m。基坑开挖支护完成后连续36个月的监测数据显示坡体最大位移量小于9.05 mm,与数值计算结果基本吻合,验证了加固措施和数值计算方法的有效性。
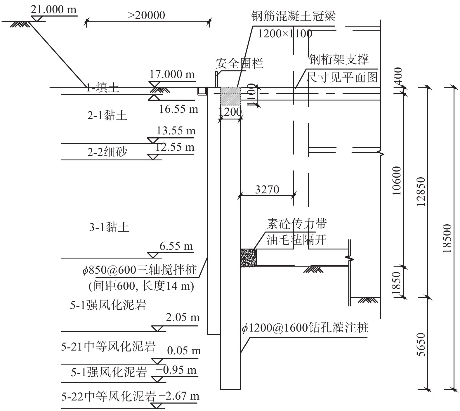
宁波软土地区深基坑超大直径圆环撑体系设计
叶维, 汤斌, 成怡冲, 安然, 吴才德, 龚迪快
2025, 39(5): 674-679. doi: 10.20265/j.cnki.issn.1007-2993.2024-0170
摘要:
软土地区深基坑的支撑体系设计直接关系到项目的安全与效益。宁波软土地区某深大基坑支护设计中,水平支撑采用了直径180 m的超大圆环混凝土支撑,竖向支撑利用静钻根植桩作为立柱桩,实现了工厂预制。相比常规基坑支撑体系,该支撑体系可减小支撑覆盖面积达20%,在保证基坑安全的前提下,大幅降低支撑对施工作业的影响;同时,特殊立柱桩的应用极大降低了工程造价。数值模拟结果与工程实测结果的对比分析表明,三维有限元法可较为合理地预测超大直径圆环撑基坑的变形情况,并且超大直径圆环撑可满足软土地区深大基坑的变形控制要求。
边坡斜椅式桩锚支护技术应用研究
易雨锋
2025, 39(5): 680-687. doi: 10.20265/j.cnki.issn.1007-2993.2024-0164
摘要:
贵阳某边坡工程受场地空间限制需直立开挖,因边坡上方邻近既有水厂建(构)筑物,需严格控制边坡变形,为此提出采用斜椅式桩锚支护体系。通过数值模拟分析了支护后边坡的稳定性、施工过程的位移控制以及支护结构的受力特征。结果表明,斜椅式桩锚支护体系受力合理、变形控制效果好。边坡监测结果显示,竣工后边坡各测点最大累计位移量均处于较小范围且趋于稳定,坡顶土体测斜曲线趋于收敛。东部水厂边坡工程竣工后运行状态良好,在满足场地空间的前提下,有效地保护了坡顶既有水厂的安全,所采用的斜椅式桩锚支护方案可供类似工程参考。
大埋深盾构隧道下穿施工对既有铁路的影响分析
吴石松, 于淼, 卢永刚
2025, 39(5): 688-692. doi: 10.20265/j.cnki.issn.1007-2993.2024-0210
摘要:
城市综合交通建设进程中,新建公路或地铁线路盾构隧道下穿既有铁路的交叉工程日益增多。以往研究采用数值模拟和现场监测等手段分析了盾构对铁路变形的影响规律,盾构隧道埋深一般不超过20 m。由于隧道施工时空效应,超过20 m埋深隧道下穿施工对铁路变形特征的影响尚不清晰。以武汉市某公路盾构隧道下穿京广铁路为例,采用自动化监测手段,分析了大埋深盾构隧道下穿施工对既有铁路轨道及路基沉降、接触网倾斜的影响规律。研究发现,针对大埋深盾构隧道下穿施工,铁路路基变形、轨道变形及接触网变形具有一定的滞后性。铁路轨道和路基沉降槽呈V型或U型,影响宽度约为75 m,明显大于普通浅埋盾构隧道。研究成果可为此类深埋盾构下穿工程施工提供数据支撑和参考。
重庆地区软质岩嵌岩桩竖向承载力取值探讨
侯俊伟, 左利兵, 徐文腾, 李杨秋
2025, 39(5): 693-698. doi: 10.20265/j.cnki.issn.1007-2993.2024-0310
摘要:
结合某高层建筑软质岩嵌岩桩工程实例,对岩石单轴抗压强度试验、原位平板载荷试验、单桩静载荷试验3种方法确定的单桩竖向承载力结果进行对比分析。结果表明:平板载荷试验法确定的单桩竖向极限承载力标准值是岩石单轴抗压强度法的1.51倍,根据现行地方标准安全系数K的取值,平板载荷试验确定的单桩承载力特征值并未有所提高;单桩静载荷法得到的单桩承载力特征值是岩石单轴抗压强度法的3.12倍。根据分析结果,岩石单轴抗压强度法确定的单桩承载力偏于保守,建议考虑围压约束效应的影响;当采用岩基载荷试验法计算时,建议对重庆地方标准安全系数K的取值进行调整。
富水地层洞内“钻孔桩+旋喷桩”组合型结构施工力学及变形特征
宋海山, 李珠妍, 丁春福, 李立云
2025, 39(5): 699-708. doi: 10.20265/j.cnki.issn.1007-2993.2024-0336
摘要:
为探讨“钻孔灌注桩+旋喷桩”组合型结构在PBA隧道施工中的适用性,揭示其力学效应,依托北京轨道交通13号线东三路站—天通苑东站暗挖区间工程实例,针对承压富水地层中“钻孔桩+旋喷桩”组合型结构围护下的PBA隧道施工全过程进行了数值仿真,分析了关键施工步序下该组合型结构的内力、变形情况以及其施工过程对地表沉降和地层塑性区的影响,探讨了桩径、桩身插入比和桩间咬合量对其力学表现的影响。结果表明:(1)施作“钻孔桩+旋喷桩”组合型结构阶段对地表沉降槽和地层塑性区的影响不大;(2)“钻孔桩+旋喷桩”组合型结构在暗挖隧道施工中主要出现朝向隧道内侧的水平侧移,整体侧移量沿深度方向呈二次曲线形态,最大侧移出现在旋喷桩中部及钻孔灌注桩上部,底板以下侧移较小;(3)主洞开挖之后,钻孔灌注桩及旋喷桩的轴力较均匀地分布在整个主洞开挖临空段,轴力和弯矩值在底板以下急剧缩减,最大轴力及弯矩均位于底板附近。
大断面双层隧道改扩建施工力学行为研究
周宗青, 黄林祥, 雷明锋, 岳长城, 邱大鹏, 陈云娟
2025, 39(5): 709-715. doi: 10.20265/j.cnki.issn.1007-2993.2024-0338
摘要:
随着经济的持续增长,部分现有隧道已难以满足当前的交通需求,为了确保交通的顺畅与安全,需合理地对隧道进行改扩建。基于ABAQUS有限元软件建立隧道围岩–衬砌三维模型,结合生死单元法模拟了某四联拱隧道扩挖为大断面双层隧道的开挖过程,得到每个步序下围岩的应力应变云图及衬砌塑性区分布特征,并将前后结果进行对比分析,确定了隧道结构的受力薄弱部位,对工程开挖过程中结构的力学行为表现进行预估。研究表明,本项目所采取的施工工序安全合理,隧道结构在力学行为上表现良好,工程的安全性和经济性得到了保障。
小净距爆破对邻近空洞隧道动力响应影响研究
黄晓明, 王欢, 何艳芳, 曾卓, 薛育阳, 谢卓雄, 汪波
2025, 39(5): 716-723. doi: 10.20265/j.cnki.issn.1007-2993.2024-0344
摘要:
依托既有旦架哨隧道改扩建工程,基于隧道衬砌后缺陷实际分布规律,研究了不同围岩级别下衬砌背后空洞的分布位置和尺寸对结构爆破振动响应规律的影响。研究结果表明:不同分布位置、不同尺寸及不同围岩级别下衬砌后空洞对既有隧道衬砌振动响应的影响均不相同。从空洞分布位置分析,拱顶衬砌背后空洞对振速和应力的放大效应均大于拱腰空洞;从空洞分布尺寸分析,空洞越大,对振速的放大效应越大,而对应力的放大效应反之;从不同围岩级别下衬砌背后存在空洞时分析,围岩越差(围岩级别越大),空洞处对振速和应力的放大效应越显著。综合分析建议,实际工程中以振速作为新建隧道爆破施工过程中邻近空洞隧道的安全控制基准表征值时,应依据空洞出现的位置、大小及围岩情况适当降低空洞处振速控制值。
岩溶角砾岩峡谷岸坡公路桥梁地基适宜性研究
龚道平, 方强, 胡惠华, 王泗
2025, 39(5): 724-730. doi: 10.20265/j.cnki.issn.1007-2993.2024-0430
摘要:
岩溶角砾岩是一种特殊的沉积岩,具有独特的成岩环境和成生特征,特别是位于峡谷岸坡的岩溶角砾岩,在有利的地下水排泄条件下,后期的岩溶作用会进一步劣化岩体的力学性质,从而影响地基稳定性和岸坡的整体稳定性。因此,工程建设中对岩溶角砾岩组成的峡谷岸坡作为特大型桥梁地基的适宜性进行评价尤为关键和重要。以张家界至花垣高速公路澧水特大桥工程为背景,通过开挖平硐和钻探相结合的手段对大桥所处的峡谷岸坡进行勘察,揭示了岩溶角砾岩的结构特征和岩溶发育特征;整体边坡可靠度分析表明,初拟索塔位在设计荷载作用下岸坡发生滑移变形破坏概率超过20%,不满足悬索桥结构对地基变形的严格要求;综合工程地质分析,认为张家界岸岩溶角砾岩不适宜作为悬索桥索塔地基,将索塔基础位置调整至力学性质较好的白云质砾岩,保证了澧水特大桥的建成通车。研究成果可为跨越峡谷的特大型桥梁的勘察设计提供参考。
碎石填土及台阶状场地强夯法加固效果分析
王勇, 盛志战, 刘青松, 胡高伟
2025, 39(5): 731-736. doi: 10.20265/j.cnki.issn.1007-2993.2024-0478
摘要:
强夯法处理地基施工便捷、成本低廉,大规模应用在沿海软土区域。北京受“7·31”特大降雨影响,部分山区居民住宅水毁严重,新建住宅为二层洋房,承载力需求较低,工程场地为山前台阶状场地,选择强夯法进行地基处理,并对碎石填土区域强夯加固效果进行分析。依托门头沟区斋堂镇沿河口村水毁重建项目,利用数值计算软件对强夯加固处理效果进行模拟,结合现场实际工程施工及检测资料,针对填土深度、夯锤间距、夯锤尺寸、夯击次数等因素进行分析,得出碎石填土地层对应的强夯影响深度修正系数以及台阶状场地夯点布置最佳位置,数值模型计算结果与现场检测结果吻合。
试验研究
防水卷材上置悬臂式挡墙的剪切滑移试验研究
卜崇鹏, 樊宇超, 王勇华, 杨丽娜, 罗丽娟, 张小辉, 王明皎
2025, 39(5): 737-743. doi: 10.20265/j.cnki.issn.1007-2993.2024-0232
摘要:
通过设置多组室内大型剪切试验、蠕变与应力松弛耦合试验,研究悬臂式挡墙置于三种防水做法保护层上的抗滑承载力、剪切滑移破坏特征及机理。试验结果表明:在剪切变形过程中,悬臂式挡墙结构底板与防水层接触处出现明显变形与破坏,其主要破坏形式为滑移破坏与剥离破坏;悬臂式挡墙结构的剪切变形破坏过程包含变形、滑移和剥离三个阶段;不同做法的防水层对上置挡土墙水平位移、抗滑承载力的影响存在明显差异;防水层上置挡土墙的基底摩擦系数主要介于0.1~0.2,与常规岩土地基挡土墙相比,挡墙的基底摩擦系数明显较小,相同荷载作用下水平位移较大。
拉拔荷载下轮胎格栅–细粒土界面承载特性研究
岳红亚, 房彦宏, 吴建东, 刘亚珍, 王媛, 于洋, 张常勇
2025, 39(5): 744-751. doi: 10.20265/j.cnki.issn.1007-2993.2024-0289
摘要:
为保证地基结构稳定性,提升土体抗拉强度,通常在地基中放置加筋材料。基于废旧轮胎良好的抗拉伸性与界面粗糙性,提出将废旧轮胎格栅作为地基加筋新材料。通过拉拔试验研究了不同上覆荷载、填料压实度、轮胎条带宽度、网孔尺寸等因素对废旧轮胎格栅加筋细粒土承载性能的影响。结果表明:轮胎条带加筋粉土的承载能力随上覆荷载的增大而提高,细粒土填料越密实轮胎条带峰值拉拔力越大,条带宽度对粉土地基加筋效果影响最明显,条带宽度增加2 cm,峰值拉拔力提高接近50%;轮胎格栅承载力随网孔尺寸的增大而逐渐减弱。研究结果证实废旧轮胎格栅可以有效提高细粒土地基的承载能力,增强土体的抗拉强度,并为进一步的理论研究和技术应用提供了参考。
后注浆旋挖钻孔灌注桩承载性能试验及数值模拟研究
柯尊东, 张书豪, 魏海涛, 蔡智, 罗伊
2025, 39(5): 752-759. doi: 10.20265/j.cnki.issn.1007-2993.2024-0308
摘要:
后注浆钻孔灌注桩通过后注浆工艺显著提高基桩承载性能,近年来被广泛应用于高层、大跨度建筑。依托四川成都某项目,开展了2组共4根后注浆旋挖钻孔灌注桩的静载荷试验,根据试验结果采用数值模拟研究了不同注浆条件试桩的应力和位移分布,进一步研究了桩侧和桩端注浆量对基桩承载力的影响。研究结果表明:后注浆旋挖钻孔灌注桩拥有较高的承载能力和安全储备,桩侧注浆主要通过增强侧阻力并配合注浆体底部的挤压作用带动桩侧更大范围的岩、土体参与承担荷载,减小桩身变形和沉降;桩端注浆能够在桩端形成强度较高的胶结体,改善桩端应力传递状态,从而防止桩端岩、土体受压屈服并减小其变形;桩侧注浆长度和桩端注浆胶结厚度均能影响基桩极限承载力,后者的影响更为显著。
不同钻杆直径对标准贯入试验击数的影响研究
李志鹏, 李昊, 龙焘, 罗忠旭, 王和平
2025, 39(5): 760-765. doi: 10.20265/j.cnki.issn.1007-2993.2024-0312
摘要:
ϕ50钻杆越来越广泛地应用于标准贯入试验中,然而,在进行岩土体工程特性判别时,ϕ50钻杆得到的标贯击数N值是否需要换算以及如何换算,规范中未提供明确的指导。在湛江市某场地开展不同杆径标准贯入试验对比研究,对相关数据进行统计分析,结果表明:标贯击数的大小与杆径之间存在显著的相关关系,且不同杆径间标贯击数的比值与岩土类别、测试深度有关。砂土地层中ϕ42钻杆的标贯击数小于ϕ50钻杆,整体上二者比值为0.89,不同深度下二者比值为0.83~1.01,随着试验深度的增加,击数比值呈现先增加后减小的趋势;黏性土地层中ϕ42钻杆的标贯击数大于ϕ50钻杆,整体上二者比值为1.14,不同深度下二者比值为1.11~1.20,随着试验深度的增加,击数比值基本不变。研究成果可为地区经验积累和工程实践提供参考。
HEPF流态固化轻质土耐久性能研究
谢天胜, 郑志明, 郝德军, 王珺, 于歆晨, 刘亚珍, 张昕毅
2025, 39(5): 766-774. doi: 10.20265/j.cnki.issn.1007-2993.2024-0399
摘要:
为进一步提高泡沫轻质土的吸能减震效果和工程安全性,制备了新型高弹聚合物纤维(Highly Elastic Polymers Fiber,简称HEPF)流态固化轻质土材料,并通过试验分析了其水稳定性、抗渗性、抗冻融性和疲劳加载特性。试验结果表明,掺入高弹聚合物和纤维的HEPF流态固化轻质土较普通泡沫轻质土在材料的水稳定性、抗水渗透性和抗冻性能方面表现出显著优势。当高弹聚合物掺量10%、纤维掺量0.2%时,材料的水稳定系数均达到0.98以上,渗水压力较对照组提升了50%~150%,抗冻性系数显著提高。此外,材料在疲劳加载试验中展现出良好的耐久性和抗裂性能,有效地延长了其使用寿命。研究结果验证了HEPF流态固化轻质土在工程应用中的优越性能,证明其在交通荷载循环振动等恶劣条件下,具有良好的耐久性和环境适应性。
循环荷载下海洋软黏土刚度弱化模型研究
周康健, 谢明, 袁志颖
2025, 39(5): 775-781. doi: 10.20265/j.cnki.issn.1007-2993.2024-0340
摘要:
利用动三轴仪器对舟山原状海洋软黏土进行了一系列不排水条件下的循环三轴试验,分析风浪流等循环荷载作用对正常固结软黏土刚度弱化特性的影响。试验结果表明,土体动模量弱化规律与循环应力比(CSR)密切相关。在未达到临界CSR前,土样双幅轴向应变$ \varepsilon\mathrm{_{DA}} $随着循环次数线性增长;当CSR大于临界CSR后,试样的刚度随循环次数的增加显著退化,致土样破坏。研究发现,不同围压对动模量循环弱化的影响规律可由CSR反映。由试验所得规律建立了土体刚度随循环次数、循环应力幅值和围压变化的经验公式,利用ABAQUS子程序USDFLD实现了海洋软黏土刚度衰减模型在数值模型中的内嵌,研究成果可以为长期循环荷载条件下海上风机基础承载性能的数值模拟研究提供参考。
孔距和孔径对均布孔洞砂岩力学特性影响研究
郑孙豪, 戚承志
2025, 39(5): 782-790. doi: 10.20265/j.cnki.issn.1007-2993.2024-0402
摘要:
为了研究孔洞间距和孔洞直径对于含均布孔洞岩石变形破坏的影响规律,基于完整砂岩试样和含有预制单一裂隙砂岩试样的室内单轴压缩试验数据,应用离散元颗粒流软件进行模拟,确定一组细观参数,并运用这组细观参数对含均布孔洞砂岩试样开展单轴压缩模拟试验。研究结果表明:当保持孔洞直径不变,随孔洞间距减小,试样的峰值应力、起裂应力和弹性模量均呈减小趋势,试样的破坏形式由剪切破坏逐渐变为劈裂破坏;当保持孔洞间距不变,随孔洞直径增大,试样的峰值应力、起裂应力和弹性模量呈减小趋势,试样破坏形式由劈裂剪切复合破坏转变为剪切破坏;试样加载破坏起于孔洞周围的应力集中,最终由于颗粒黏结断裂导致裂纹的扩展并贯通破坏,且试样的拉伸裂纹明显多于剪切裂纹。