留言板

尊敬的读者、作者、审稿人, 关于本刊的投稿、审稿、编辑和出版的任何问题, 您可以本页添加留言。我们将尽快给您答复。谢谢您的支持!

姓名
邮箱
手机号码
标题
留言内容
验证码

宁波软土地区深基坑超大直径圆环撑体系设计

叶维 汤斌 成怡冲 安然 吴才德 龚迪快

叶维, 汤斌, 成怡冲, 安然, 吴才德, 龚迪快. 宁波软土地区深基坑超大直径圆环撑体系设计[J]. 岩土工程技术, 2025, 39(5): 674-679. doi: 10.20265/j.cnki.issn.1007-2993.2024-0170
引用本文: 叶维, 汤斌, 成怡冲, 安然, 吴才德, 龚迪快. 宁波软土地区深基坑超大直径圆环撑体系设计[J]. 岩土工程技术, 2025, 39(5): 674-679. doi: 10.20265/j.cnki.issn.1007-2993.2024-0170
Ye Wei, Tang Bin, Cheng Yichong, An Ran, Wu Caide, Gong Dikuai. Design of large ring support system in soft soil area of Ningbo[J]. GEOTECHNICAL ENGINEERING TECHNIQUE, 2025, 39(5): 674-679. doi: 10.20265/j.cnki.issn.1007-2993.2024-0170
Citation: Ye Wei, Tang Bin, Cheng Yichong, An Ran, Wu Caide, Gong Dikuai. Design of large ring support system in soft soil area of Ningbo[J]. GEOTECHNICAL ENGINEERING TECHNIQUE, 2025, 39(5): 674-679. doi: 10.20265/j.cnki.issn.1007-2993.2024-0170

宁波软土地区深基坑超大直径圆环撑体系设计

doi: 10.20265/j.cnki.issn.1007-2993.2024-0170
详细信息
    作者简介:

    叶 维,男,1984 年生,大学本科,高级工程师,从事岩土工程设计与研究工作。E-mail: 276885169@qq.com

  • 中图分类号: TU473

Design of large ring support system in soft soil area of Ningbo

  • 摘要: 软土地区深基坑的支撑体系设计直接关系到项目的安全与效益。宁波软土地区某深大基坑支护设计中,水平支撑采用了直径180 m的超大圆环混凝土支撑,竖向支撑利用静钻根植桩作为立柱桩,实现了工厂预制。相比常规基坑支撑体系,该支撑体系可减小支撑覆盖面积达20%,在保证基坑安全的前提下,大幅降低支撑对施工作业的影响;同时,特殊立柱桩的应用极大降低了工程造价。数值模拟结果与工程实测结果的对比分析表明,三维有限元法可较为合理地预测超大直径圆环撑基坑的变形情况,并且超大直径圆环撑可满足软土地区深大基坑的变形控制要求。

     

  • 图  1  基坑支护平面布置图

    图  2  基坑支护航拍图

    图  3  典型工程地质剖面图(单位:m)

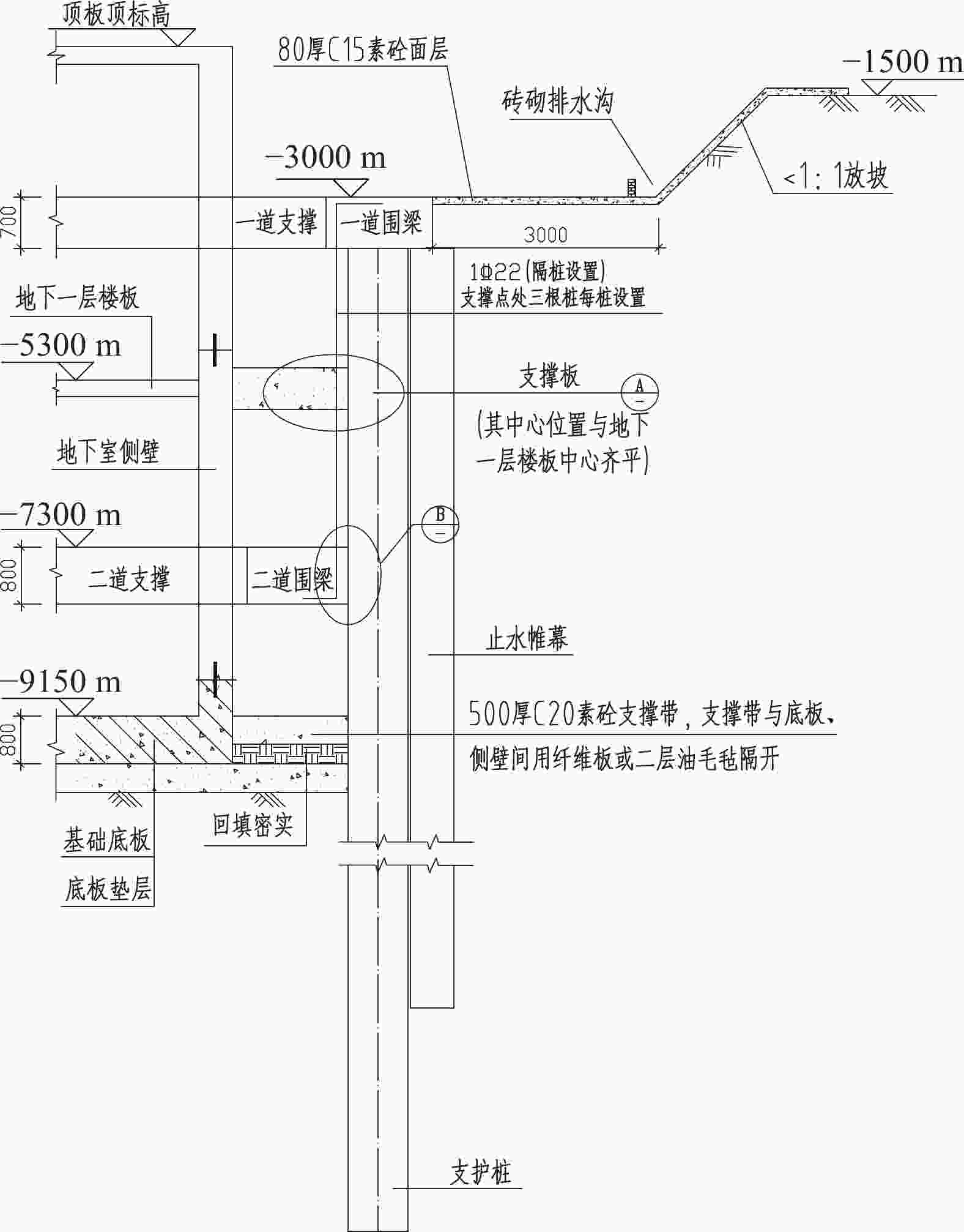
    图  4  典型支护结构剖面图(单位:mm)

    图  5  基坑平面支护体系比选

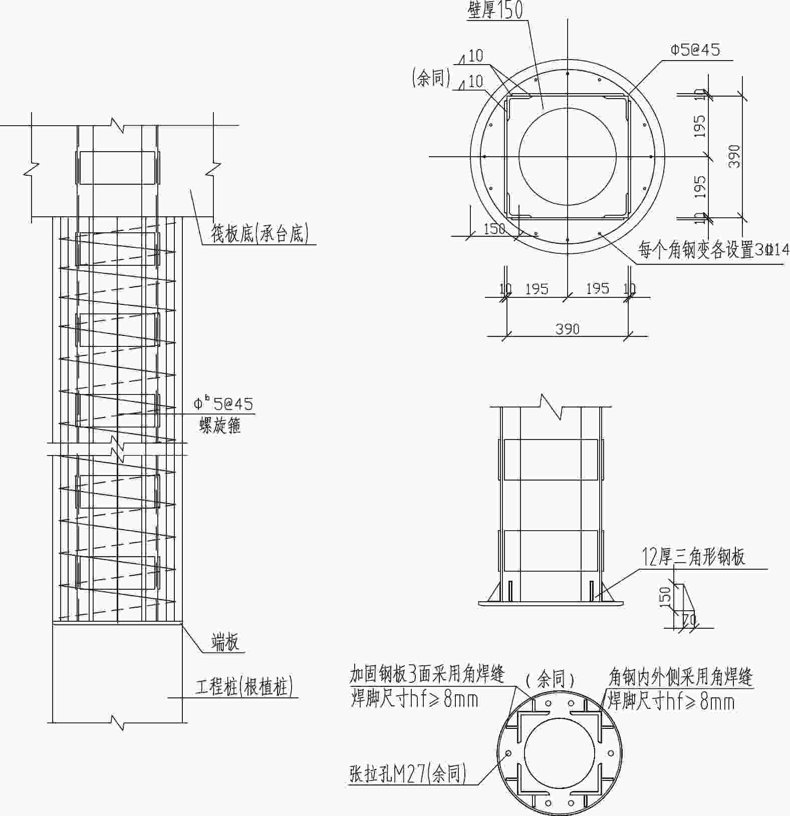
    图  6  立柱桩详图(单位:mm)

    图  7  格构柱端板照片

    图  8  预制立柱桩照片

    图  9  基坑三维有限元模型

    图  10  开挖到坑底时东西向围护桩位移图

    图  11  开挖到坑底时南北向围护桩位移图

    图  12  深层土体位移图

    表  1  土体参数表

    土层
    编号
    土层
    名称
    层厚
    /m
    重度
    /(kN·m−3)
    黏聚力
    /kPa
    内摩擦角
    /(°)
    含水量
    /%
    钻孔桩桩侧阻力
    特征值/kPa
    压缩模量
    /MPa
    割线刚度
    /MPa
    卸载再加载
    刚度/MPa
    ①-1 杂填土 1.20~0.40 (18.5) (5) (15) 3.00 3.00 9.00
    ①-2 粉质黏土 1.90~0.80 18.7 26.3 15.4 30.3 12 4.56 4.56 13.68
    ②-1 淤泥质粉质黏土 12.7~8.5 17.4 13.2 9.2 41.5 6 3.08 3.08 9.24
    ②-2 淤泥质黏土 10.2~1.8 16.8 12.9 8.7 48.4 7 2.44 2.44 7.32
    含粉砂粉质黏土 6.40~0.9 19.0 20.2 16.1 28.0 14 2.45 2.45 7.35
    ④-1 淤泥质粉质黏土 8.40~1.00 16.9 12.9 8.6 48.8 8 3.01 3.01 9.03
    ④-2 淤泥质黏土 6.60~0.50 17.3 13.2 8.6 44.1 9 6.93 6.93 20.79
    ⑤-1 黏土 15.4~6.0 18.8 38.0 15.3 29.7 29 4.56 4.56 13.68
    注:“()”内为经验取值。
    下载: 导出CSV

    表  2  支护结构参数表

    结构名称 规格 材料 本构关系 备注
    支护桩 ϕ900(850)@1150 mm C25混凝土 弹性 板单元
    混凝土支撑 第一道截面尺寸:
    800(700) mm×700 mm
    第二道截面尺寸:
    800(700) mm×800 mm
    C30混凝土 弹性 梁单元
    圆环撑 第一道截面尺寸:
    2400 mm×900 mm
    第二道截面尺寸:
    2600 mm×1000 mm
    C30混凝土 弹性 梁单元
    地下室底板 厚度800 mm C35混凝土 弹性 板单元
    地下室中板 厚度120 mm C35混凝土 弹性 板单元
    地下室顶板 厚度 200 mm C35混凝土 弹性 板单元
    下载: 导出CSV
  • [1] 王海成, 刘秀珍, 张 龙. 复杂环境下软土基坑支护设计实践与分析[J]. 岩土工程技术, 2022, 36(2): 160-164. (WANG H C, LIU X Z, ZHANG L. Practice and analysis of deep foundation pit in soft soil area and complex environment[J]. Geotechnical Engineering Technique, 2022, 36(2): 160-164. (in Chinese) doi: 10.3969/j.issn.1007-2993.2022.02.014

    WANG H C, LIU X Z, ZHANG L. Practice and analysis of deep foundation pit in soft soil area and complex environment[J]. Geotechnical Engineering Technique, 2022, 36(2): 160-164. (in Chinese) doi: 10.3969/j.issn.1007-2993.2022.02.014
    [2] 刘泉声, 吴玉山, 刘祖德. 高层建筑深基坑工程在中国的发展[J]. 岩石力学与工程学报, 1997, 16(4): 392-397. (LIU Q S, WU Y S, LIU Z D. The development of deep foundation pit engineering for high-rise buildings in China[J]. Chinese Journal of Rock Mechanics and Engineering, 1997, 16(4): 392-397. (in Chinese) doi: 10.3321/j.issn:1000-6915.1997.04.014

    LIU Q S, WU Y S, LIU Z D. The development of deep foundation pit engineering for high-rise buildings in China[J]. Chinese Journal of Rock Mechanics and Engineering, 1997, 16(4): 392-397. (in Chinese) doi: 10.3321/j.issn:1000-6915.1997.04.014
    [3] 张 丹, 陈全飞, 夏向东, 等. 复杂环境下深基坑优化设计探讨[J]. 岩土工程技术, 2019, 33(4): 208-213. (ZHANG D, CHEN Q F, XIA X D, et al. Optimization design of deep foundation pit in complex environment[J]. Geotechnical Engineering Technique, 2019, 33(4): 208-213. (in Chinese) doi: 10.3969/j.issn.1007-2993.2019.04.005

    ZHANG D, CHEN Q F, XIA X D, et al. Optimization design of deep foundation pit in complex environment[J]. Geotechnical Engineering Technique, 2019, 33(4): 208-213. (in Chinese) doi: 10.3969/j.issn.1007-2993.2019.04.005
    [4] 许 冠, 曾 婕, 成怡冲, 等. 管桩结合双半圆支撑体系在基坑工程中的应用[J]. 岩土工程技术, 2022, 36(3): 179-184. (XU G, ZENG J, CHENG Y C, et al. Application of pipe pile combined with double semicircular support system in foundation pit engineering[J]. Geotechnical Engineering Technique, 2022, 36(3): 179-184. (in Chinese) doi: 10.3969/j.issn.1007-2993.2022.03.002

    XU G, ZENG J, CHENG Y C, et al. Application of pipe pile combined with double semicircular support system in foundation pit engineering[J]. Geotechnical Engineering Technique, 2022, 36(3): 179-184. (in Chinese) doi: 10.3969/j.issn.1007-2993.2022.03.002
    [5] 乔丽平, 李韵迪, 杨 超. 某邻地铁超大直径圆环撑软土深基坑变形特性分析[J]. 岩土工程技术, 2023, 37(1): 118-126. (QIAO L P, LI Y D, YANG C. Analysis on deformation characteristics of super large diameter ring bracing deep foundation pit in soft soil near subway[J]. Geotechnical Engineering Technique, 2023, 37(1): 118-126. (in Chinese) doi: 10.3969/j.issn.1007-2993.2023.01.021

    QIAO L P, LI Y D, YANG C. Analysis on deformation characteristics of super large diameter ring bracing deep foundation pit in soft soil near subway[J]. Geotechnical Engineering Technique, 2023, 37(1): 118-126. (in Chinese) doi: 10.3969/j.issn.1007-2993.2023.01.021
    [6] 魏仁杰. 多种基坑支护形式在深基坑中的组合应用[J]. 岩土工程技术, 2017, 31(6): 306-310. (WEI R J. Combined application of multiform retaining structures in deep foundation pits[J]. Geotechnical Engineering Technique, 2017, 31(6): 306-310. (in Chinese) doi: 10.3969/j.issn.1007-2993.2017.06.009

    WEI R J. Combined application of multiform retaining structures in deep foundation pits[J]. Geotechnical Engineering Technique, 2017, 31(6): 306-310. (in Chinese) doi: 10.3969/j.issn.1007-2993.2017.06.009
    [7] 李书波. 圆环形支撑在形状不规则基坑中的应用[J]. 城市勘测, 2023(3): 200-204. (LI S B. Application of ring-shaped strut in irregular plan of excavation[J]. Urban Geotechnical Investigation & Surveying, 2023(3): 200-204. (in Chinese) doi: 10.3969/j.issn.1672-8262.2023.03.047

    LI S B. Application of ring-shaped strut in irregular plan of excavation[J]. Urban Geotechnical Investigation & Surveying, 2023(3): 200-204. (in Chinese) doi: 10.3969/j.issn.1672-8262.2023.03.047
    [8] 中华人民共和国住房和城乡建设部. 建筑基坑支护技术规程: JGJ 120—2012[S]. 北京: 中国建筑工业出版社, 2012. (Ministry of Housing and Urban-Rural Development of the People's Republic of China. Technical specification for retaining and protection of building foundation excavations: JGJ 120—2012[S]. Beijing: China Architecture & Building Press, 2012. (in Chinese)

    Ministry of Housing and Urban-Rural Development of the People's Republic of China. Technical specification for retaining and protection of building foundation excavations: JGJ 120—2012[S]. Beijing: China Architecture & Building Press, 2012. (in Chinese)
    [9] 浙江省住房和城乡建设厅. 建筑基坑工程技术规程: DB33/T 1096—2014[S]. 杭州: 浙江工商大学出版社, 2014. (Department of Housing and Rural-Urban Development of Zhejiang Province. Technical specification for building foundation excavation engineering: DB33/T 1096—2014[S]. Hangzhou: Zhejiang Gongshang University Press, 2014. (in Chinese)

    Department of Housing and Rural-Urban Development of Zhejiang Province. Technical specification for building foundation excavation engineering: DB33/T 1096—2014[S]. Hangzhou: Zhejiang Gongshang University Press, 2014. (in Chinese)
  • 加载中
图(12) / 表(2)
计量
  • 文章访问数:  126
  • HTML全文浏览量:  35
  • PDF下载量:  53
  • 被引次数: 0
出版历程
  • 收稿日期:  2024-04-17
  • 修回日期:  2024-09-02
  • 录用日期:  2024-10-29
  • 刊出日期:  2025-10-10

目录

    /

    返回文章
    返回