留言板

尊敬的读者、作者、审稿人, 关于本刊的投稿、审稿、编辑和出版的任何问题, 您可以本页添加留言。我们将尽快给您答复。谢谢您的支持!

姓名
邮箱
手机号码
标题
留言内容
验证码

邻近既有区间隧道的超大地铁车站深基坑设计与监测分析

叶维 汤斌 成怡冲 安然 吴才德 龚迪快

叶维, 汤斌, 成怡冲, 安然, 吴才德, 龚迪快. 邻近既有区间隧道的超大地铁车站深基坑设计与监测分析[J]. 岩土工程技术, 2026, 40(1): 55-62. doi: 10.20265/j.cnki.issn.1007-2993.2024-0437
引用本文: 叶维, 汤斌, 成怡冲, 安然, 吴才德, 龚迪快. 邻近既有区间隧道的超大地铁车站深基坑设计与监测分析[J]. 岩土工程技术, 2026, 40(1): 55-62. doi: 10.20265/j.cnki.issn.1007-2993.2024-0437
YE Wei, TANG Bin, CHENG Yichong, AN Ran, WU Caide, GONG Dikuai. Design and monitoring analysis of deep foundation pit of super-large subway station adjacent existing section tunnel[J]. GEOTECHNICAL ENGINEERING TECHNIQUE, 2026, 40(1): 55-62. doi: 10.20265/j.cnki.issn.1007-2993.2024-0437
Citation: YE Wei, TANG Bin, CHENG Yichong, AN Ran, WU Caide, GONG Dikuai. Design and monitoring analysis of deep foundation pit of super-large subway station adjacent existing section tunnel[J]. GEOTECHNICAL ENGINEERING TECHNIQUE, 2026, 40(1): 55-62. doi: 10.20265/j.cnki.issn.1007-2993.2024-0437

邻近既有区间隧道的超大地铁车站深基坑设计与监测分析

doi: 10.20265/j.cnki.issn.1007-2993.2024-0437
详细信息
    作者简介:

    叶 维,男,1984年生,大学本科,高级工程师,主要从事岩土工程相关的设计与研究工作。E-mail: 276885169@qq.com

  • 中图分类号: TU473

Design and monitoring analysis of deep foundation pit of super-large subway station adjacent existing section tunnel

  • 摘要: 宁波轨道交通7号线小洋江站为多线换乘地下三层车站,基坑长度270.8 m,四线段基坑宽度51.4~55.7 m,两线段基坑宽度19.6~27.3 m,基坑深度27~31 m。车站建设场地存在深厚软土,基坑北侧距已运营的区间隧道约30.8 m,基坑变形控制要求较高。为控制基坑与邻近区间隧道变形,基坑围护设计采用地连墙+内支撑体系,同时采用硬分坑分时分段施工、软分坑分层开挖、地连墙构造段加长切断承压水层及设置施工便道与栈桥等一系列措施。监测结果表明,基坑大阳角采用软分坑与分层开挖的方式,对其变形控制非常有效;地表沉降对于坑外荷载较为敏感,坑外存在长期荷载区域地表沉降远大于其余区域;基坑开挖对邻近区间隧道存在影响,开挖深度小于隧道埋深时,对区间隧道影响较大,而开挖深度超过隧道埋深时,对区间隧道影响相对较小,最终区间隧道沉降为5.9 mm,控制在允许范围内。

     

  • 图  1  基坑支护平面布置图

    Figure  1.  Foundation pit support layout plan

    图  2  基坑支护剖面图

    Figure  2.  Foundation pit support section

    图  3  南基坑四线段基坑支护横剖图

    Figure  3.  Fourth section support cross-section of south foundation pit

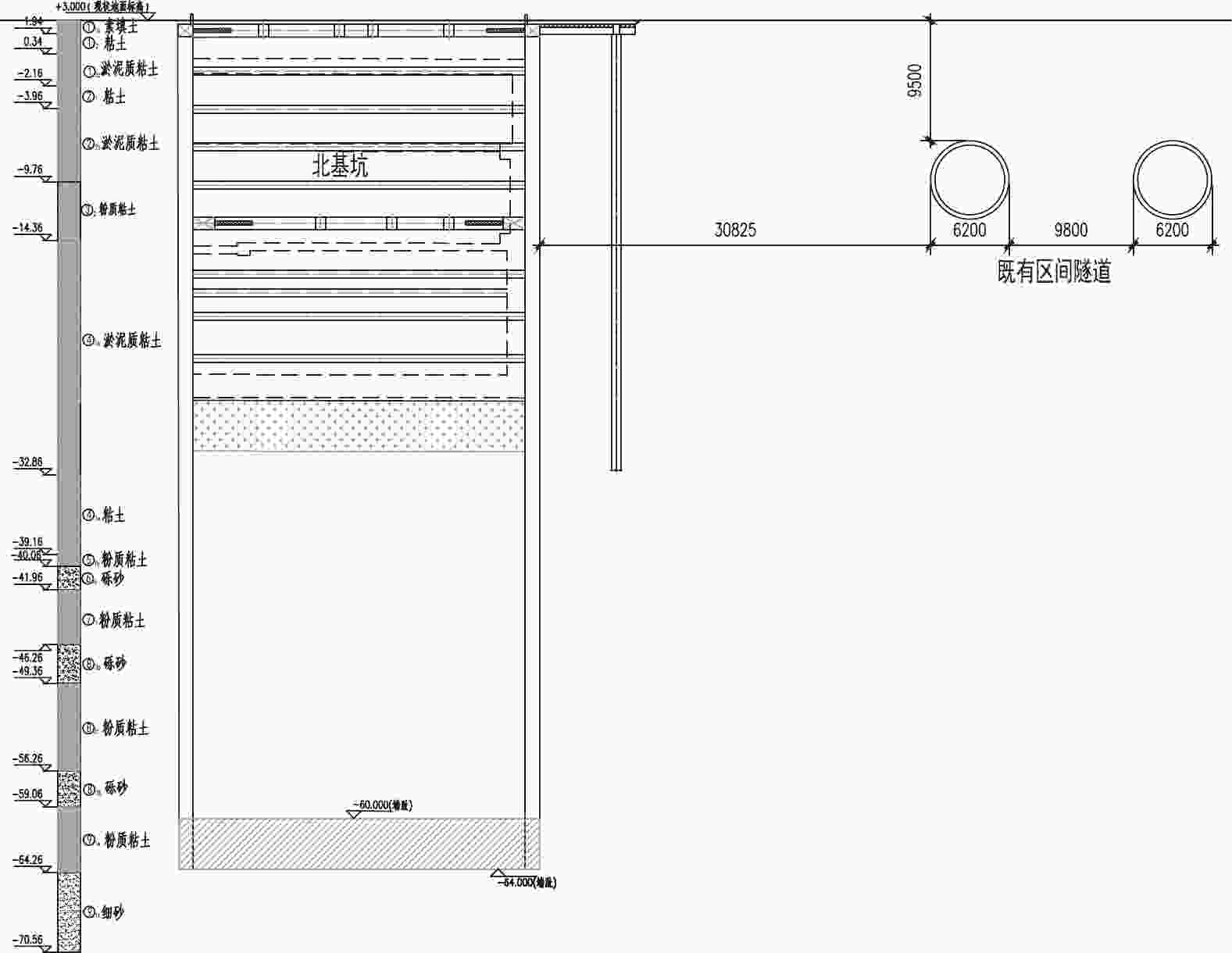
    图  4  北基坑支护横剖图

    Figure  4.  North foundation pit support cross-section

    图  5  小洋江站挖土分层方案图

    Figure  5.  Layered excavation plan of Xiaoyangjiang station

    图  6  主要监测点布置图

    Figure  6.  Layout plan of main monitoring points

    图  7  地连墙水平位移最大值及对应深度图

    Figure  7.  Maximum horizontal displacement and corresponding depth of diaphragm wall

    图  8  地连墙水平位移随工况变化图

    Figure  8.  Diaphragm wall horizontal displacement with operating conditions

    图  9  周边沉降随时间变化图

    Figure  9.  Variation diagram of surrounding settlement with time

    图  10  南基坑开挖期间区间隧道沉降随时间变化图

    Figure  10.  Variation diagram of interval tunnel settlement with time during excavation of south foundation pit

    图  11  北基坑开挖期间区间隧道沉降随时间变化图

    Figure  11.  Variation diagram of interval tunnel settlement with time during excavation of south foundation pit

    表  1  土层物理力学性质参数

    Table  1.   Soil layer physical and mechanical parameters

    土层编号土层名称含水率
    w/%
    重度
    γ /(kN·m−3)
    黏聚力
    c/kPa
    内摩擦角
    φ/(°)
    1-1a杂填土20.0515
    1-1b素填土36.918.4109
    1-2黏土35.318.726.013.2
    1-3b淤泥质黏土48.017.413.38.3
    2-1黏土42.117.816.09.7
    2-2b淤泥质黏土51.217.113.48.3
    2-2c淤泥质粉质黏土43.317.713.38.6
    3-2粉质黏土34.118.615.19.1
    4-1b淤泥质粉质黏土39.418.016.810.4
    4-2a黏土39.518.019.511.5
    6-3a粉质黏土28.819.227.514.3
    6-4a粉砂22.220.2330
    6-4b砾砂20.5235
    7-1粉质黏土26.319.733.516.4
    7-1t中砂26.619.7233
    8-3a中砂24.120.0234
    8-3b砾砂20.020.8235
    9-1a粉质黏土25.519.836.116.6
    下载: 导出CSV

    表  2  主要监测项目表

    Table  2.   Table of main monitoring items

    监测项目监测代码控制值/mm
    地连墙水平位移CX42.0(北基坑)
    82.98(南基坑)
    周边地表沉降D30.0(北基坑)
    55.32(南基坑)
    既有区间隧道沉降S(环)10
    下载: 导出CSV
  • [1] 韩 晓. 上海紧邻地铁超大深基坑工程设计与实践[J]. 岩土工程技术, 2024, 38(1): 70-74. (HAN X. Design and practice of super-large deep foundation pit adjacent to subway in Shanghai[J]. Geotechnical Engineering Technique, 2024, 38(1): 70-74. (in Chinese) doi: 10.3969/j.issn.1007-2993.2024.01.012

    HAN X. Design and practice of super-large deep foundation pit adjacent to subway in Shanghai[J]. Geotechnical Engineering Technique, 2024, 38(1): 70-74. (in Chinese) doi: 10.3969/j.issn.1007-2993.2024.01.012
    [2] 乔丽平, 李韵迪, 杨 超. 某邻地铁超大直径圆环撑软土深基坑变形特性分析[J]. 岩土工程技术, 2023, 37(1): 118-126. (QIAO L P, LI Y D, YANG C. Analysis on deformation characteristics of super large diameter ring bracing deep foundation pit in soft soil near subway[J]. Geotechnical Engineering Technique, 2023, 37(1): 118-126. (in Chinese) doi: 10.3969/j.issn.1007-2993.2023.01.021

    QIAO L P, LI Y D, YANG C. Analysis on deformation characteristics of super large diameter ring bracing deep foundation pit in soft soil near subway[J]. Geotechnical Engineering Technique, 2023, 37(1): 118-126. (in Chinese) doi: 10.3969/j.issn.1007-2993.2023.01.021
    [3] 徐四一, 丁传松. 复杂条件下软土超深基坑变形特性分析[J]. 岩土工程技术, 2023, 37(6): 749-753. (XU S Y, DING C S. Analysis of deformation characteristics of super deep pit excavation in soft soil under complex conditions[J]. Geotechnical Engineering Technique, 2023, 37(6): 749-753. (in Chinese) doi: 10.3969/j.issn.1007-2993.2023.06.020

    XU S Y, DING C S. Analysis of deformation characteristics of super deep pit excavation in soft soil under complex conditions[J]. Geotechnical Engineering Technique, 2023, 37(6): 749-753. (in Chinese) doi: 10.3969/j.issn.1007-2993.2023.06.020
    [4] 张 旭, 王杰杰. 深基坑施工对邻近既有地铁车站附属的影响分析[J]. 岩土工程技术, 2023, 37(4): 492-498. (ZHANG X, WANG J J. Impact analysis of foundation pit excavation near the existing metro station auxiliary structure[J]. Geotechnical Engineering Technique, 2023, 37(4): 492-498. (in Chinese) doi: 10.3969/j.issn.1007-2993.2023.04.021

    ZHANG X, WANG J J. Impact analysis of foundation pit excavation near the existing metro station auxiliary structure[J]. Geotechnical Engineering Technique, 2023, 37(4): 492-498. (in Chinese) doi: 10.3969/j.issn.1007-2993.2023.04.021
    [5] 马庆迅, 张新涛, 刘云霞. 基坑开挖及建筑加载对紧邻地铁的影响分析[J]. 岩土工程技术, 2023, 37(3): 342-347. (MA Q X, ZHANG X T, LIU Y X. Influence of foundation pit excavation and building loading on nearby subway tunnel[J]. Geotechnical Engineering Technique, 2023, 37(3): 342-347. (in Chinese) doi: 10.3969/j.issn.1007-2993.2023.03.014

    MA Q X, ZHANG X T, LIU Y X. Influence of foundation pit excavation and building loading on nearby subway tunnel[J]. Geotechnical Engineering Technique, 2023, 37(3): 342-347. (in Chinese) doi: 10.3969/j.issn.1007-2993.2023.03.014
    [6] 应宏伟, 杨永文. 杭州深厚软黏土中某深大基坑的性状研究[J]. 岩土工程学报, 2011, 33(12): 1838-1846. (YING H W, YANG Y W. Characteristics of a large and deep soft clay excavation in Hangzhou[J]. Chinese Journal of Geotechnical Engineering, 2011, 33(12): 1838-1846. (in Chinese)

    YING H W, YANG Y W. Characteristics of a large and deep soft clay excavation in Hangzhou[J]. Chinese Journal of Geotechnical Engineering, 2011, 33(12): 1838-1846. (in Chinese)
    [7] 宁波市住房和城乡建设局. 宁波市建筑基坑工程技术细则: 2019甬DX-06[S]. 北京: 中国建筑工业出版社, 2019. (Ningbo Municipal Bureau of Housing and Urban-Rural Development. Technical code for building foundation excavation engineering of Ningbo: 2019 YONG DX-06[S]. Beijing: China Architecture & Building Press, 2019. (in Chinese)

    Ningbo Municipal Bureau of Housing and Urban-Rural Development. Technical code for building foundation excavation engineering of Ningbo: 2019 YONG DX-06[S]. Beijing: China Architecture & Building Press, 2019. (in Chinese)
    [8] 周沈华, 杨有海, 王随新. 深基坑开挖对周边地表沉降影响因素分析[J]. 土工基础, 2008, 22(2): 38-42. (ZHOU S H, YANG Y H, WANG S X. Analyses of influence factors on ground settlement during excavation[J]. Soil Engineering and Foundation, 2008, 22(2): 38-42. (in Chinese) doi: 10.3969/j.issn.1004-3152.2008.02.011

    ZHOU S H, YANG Y H, WANG S X. Analyses of influence factors on ground settlement during excavation[J]. Soil Engineering and Foundation, 2008, 22(2): 38-42. (in Chinese) doi: 10.3969/j.issn.1004-3152.2008.02.011
    [9] 武法伟, 李方明. 基坑开挖与降水引起的周边地表沉降变形耦合计算[C]//第九届全国工程地质大会论文集. 青岛: 中国地质学会工程地质专业委员会, 2012: 857-860. (WU F W, LI F M. The deformation coupling computation of ground subsidence caused by excavation of foundation pit and rainfall[C]//Proceedings of the 9th National Conference on Engineering Geology. Qingdao: Engineering Geology Professional Committee of the Geological Society of China, 2012: 857-860. (in Chinese)

    WU F W, LI F M. The deformation coupling computation of ground subsidence caused by excavation of foundation pit and rainfall[C]//Proceedings of the 9th National Conference on Engineering Geology. Qingdao: Engineering Geology Professional Committee of the Geological Society of China, 2012: 857-860. (in Chinese)
    [10] 中华人民共和国住房和城乡建设部. 建筑基坑支护技术规程: JGJ 120—2012[S]. 北京: 中国建筑工业出版社, 2012. (Ministry of Housing and Urban-Rural Development of the People’s Republic of China. Technical specification for retaining and protection of building foundation excavations: JGJ 120—2012[S]. Beijing: China Architecture & Building Press, 2012. (in Chinese)

    Ministry of Housing and Urban-Rural Development of the People’s Republic of China. Technical specification for retaining and protection of building foundation excavations: JGJ 120—2012[S]. Beijing: China Architecture & Building Press, 2012. (in Chinese)
  • 加载中
图(11) / 表(2)
计量
  • 文章访问数:  96
  • HTML全文浏览量:  40
  • PDF下载量:  34
  • 被引次数: 0
出版历程
  • 收稿日期:  2024-09-24
  • 修回日期:  2025-01-14
  • 录用日期:  2025-03-06
  • 刊出日期:  2026-02-06

目录

    /

    返回文章
    返回