留言板

尊敬的读者、作者、审稿人, 关于本刊的投稿、审稿、编辑和出版的任何问题, 您可以本页添加留言。我们将尽快给您答复。谢谢您的支持!

姓名
邮箱
手机号码
标题
留言内容
验证码

先浅后深工序下结合CFG桩的三排桩基坑支护设计

章良兵 黄昌乾

章良兵, 黄昌乾. 先浅后深工序下结合CFG桩的三排桩基坑支护设计[J]. 岩土工程技术, 2026, 40(1): 48-54. doi: 10.20265/j.cnki.issn.1007-2993.2024-0520
引用本文: 章良兵, 黄昌乾. 先浅后深工序下结合CFG桩的三排桩基坑支护设计[J]. 岩土工程技术, 2026, 40(1): 48-54. doi: 10.20265/j.cnki.issn.1007-2993.2024-0520
ZHANG Liangbing, HUANG Changqian. Design of triple-row pile foundation pit support combined with CFG piles under shallow to deep process[J]. GEOTECHNICAL ENGINEERING TECHNIQUE, 2026, 40(1): 48-54. doi: 10.20265/j.cnki.issn.1007-2993.2024-0520
Citation: ZHANG Liangbing, HUANG Changqian. Design of triple-row pile foundation pit support combined with CFG piles under shallow to deep process[J]. GEOTECHNICAL ENGINEERING TECHNIQUE, 2026, 40(1): 48-54. doi: 10.20265/j.cnki.issn.1007-2993.2024-0520

先浅后深工序下结合CFG桩的三排桩基坑支护设计

doi: 10.20265/j.cnki.issn.1007-2993.2024-0520
详细信息
    作者简介:

    章良兵,男,1991年生,硕士,高级工程师,主要从事岩土工程设计与施工。E-mail:1048667498@qq.com

  • 中图分类号: TU473

Design of triple-row pile foundation pit support combined with CFG piles under shallow to deep process

  • 摘要: 北京地区某建筑项目高层住宅楼与纯地下车库毗邻,二者基础高差7.6 m,根据施工进度安排,位于浅部的住宅楼需先于车库施工,毗邻段车库基坑支护设计需考虑最不利工况,即住宅结构封顶时车库基坑肥槽尚未回填。为有效控制深部基坑与浅部住宅楼变形,对深部基坑采用结合浅部住宅楼CFG桩的三排桩支护方案。数值模拟和基坑变形监测表明,深部基坑变形和浅部住宅沉降及倾斜均处于可控范围,浅部住宅楼荷载绝大部分通过CFG桩传递至深部地层中,对深部基坑影响较小。本方案中CFG桩兼作竖向承载和水平承载构件,可采用扩径和配筋相结合的措施增加其侧向刚度,同时需要注意控制复合地基承载力和刚度的均匀性。

     

  • 图  1  项目平面位置关系图

    Figure  1.  Planar positional relationship diagram of the project

    图  2  典型地层剖面

    Figure  2.  Typical stratigraphic section

    图  3  2#楼与地库平面位置关系图

    Figure  3.  2# Building and underground garage plane position relationship diagram

    图  4  双排桩支护计算结果

    Figure  4.  Calculation results of double-row pile support scheme

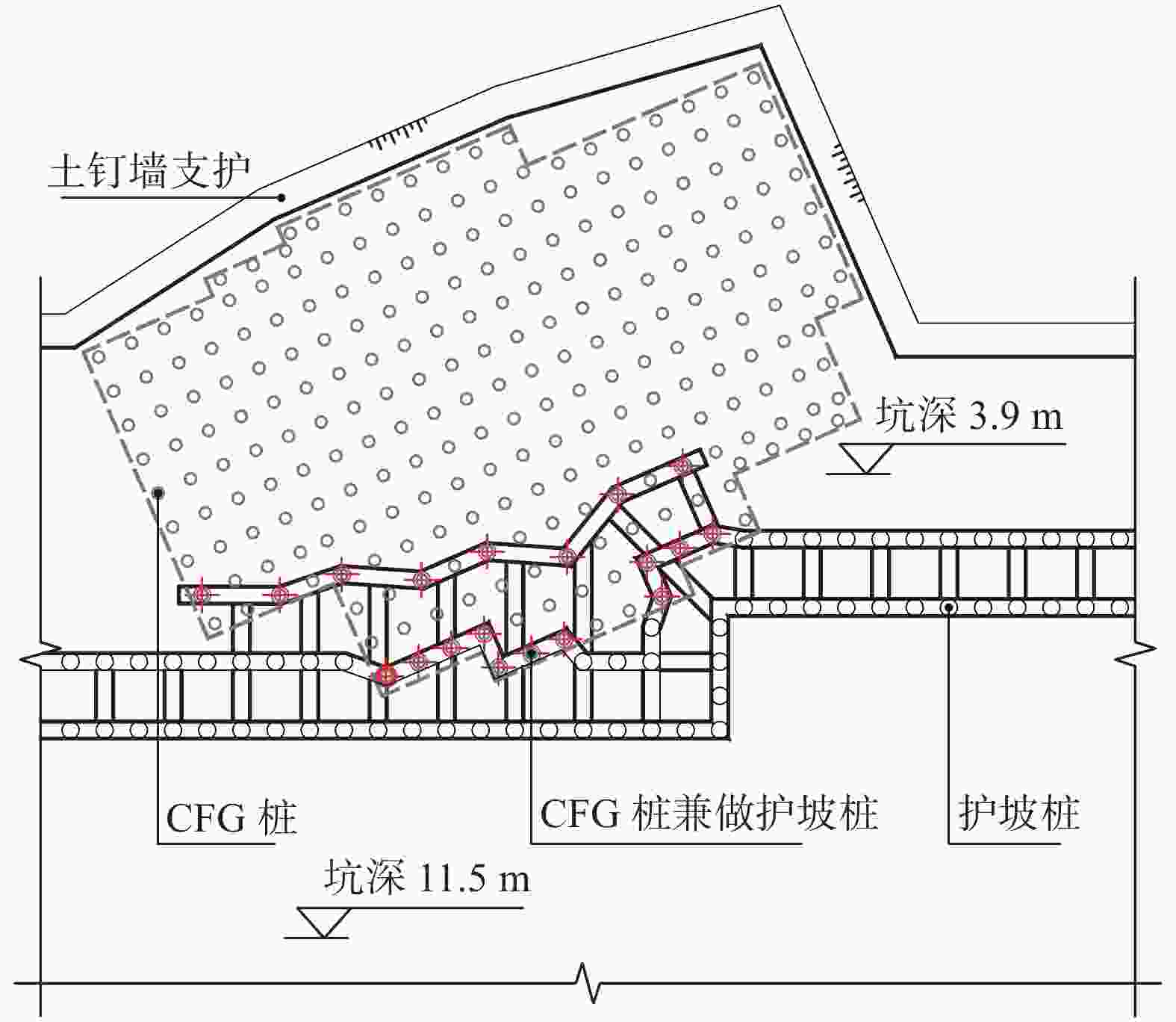
    图  5  先浅后深支护段剖面图(单位:mm)

    Figure  5.  Section diagram of foundation pit support under shallow to deep process(Unit:mm)

    图  6  网格模型

    Figure  6.  Mesh model

    图  7  水平变形模拟结果

    Figure  7.  Horizontal deformation simulation results

    图  8  竖向沉降模拟结果

    Figure  8.  Vertical settlement simulation results

    图  9  监测点平面布置图

    Figure  9.  Layout diagram of monitoring points

    图  10  桩顶水平位移曲线图

    Figure  10.  Pile top horizontal displacement curve diagram

    图  11  深层水平位移曲线图

    Figure  11.  Deep horizontal displacement curve diagram

    图  12  竖向沉降位移曲线图

    Figure  12.  Vertical settlement displacement curve diagram

    表  1  各土层主要物理力学参数

    Table  1.   Main physical and mechanical parameters of each soil layer

    地层岩性 γ/(kN·m−3 Es1-2/MPa c/kPa φ/(°)
    ②黏质粉土–砂质粉土 19.9 11.4 20 26.7
    ③粉质黏土–黏质粉土 19.5 6.1 25 10.4
    ④粉质黏土–黏质粉土 19.9 6.9 22 16.7
    ⑤粉质黏土–黏质粉土 19.8 8.5 25 20
    ⑤2细砂 20 30 0 25
    ⑥全风化–强风化泥岩 21 7.2 35 30
    ⑦强风化–中等风化泥岩 22 50 40 35
    ⑧中等风化泥岩 23.7 80 70 60
    下载: 导出CSV

    表  2  结构单元参数

    Table  2.   Structural element parameters

    构件类别 材料 弹性模量
    E/MPa
    重度γ
    /(kN·m−3
    外径
    D/m
    厚度
    h/m
    截面尺寸
    B×H
    /(m×m)
    钢筋桩 C25钢筋混凝土 28 000 25.0 0.6
    CFG桩 C25素混凝土 28 000 23.0 0.4
    挡土板 C20钢筋混凝土 21 500 24.0 0.1
    冠梁及连梁 C25钢筋混凝土 28 000 25.0 0.7×0.5
    下载: 导出CSV
  • [1] 刘国斌, 王卫东. 基坑工程手册[M]. 2版. 北京: 中国建筑工业出版社, 2009. (LIU G B, WANG W D. Excavation engineering manual[M]. 2nd ed. Beijing: China Architecture & Building Press, 2009. (in Chinese)

    LIU G B, WANG W D. Excavation engineering manual[M]. 2nd ed. Beijing: China Architecture & Building Press, 2009. (in Chinese)
    [2] 赵升峰, 黄广龙, 范钦建, 等. 先浅后深深基坑围护设计与分析[J]. 建筑结构, 2013, 43(11): 88-91. (ZHAO S F, HUANG G L, FAN Q J, et al. Design and analysis on deep foundation pit support with shallow to deep construction[J]. Building Structure, 2013, 43(11): 88-91. (in Chinese)

    ZHAO S F, HUANG G L, FAN Q J, et al. Design and analysis on deep foundation pit support with shallow to deep construction[J]. Building Structure, 2013, 43(11): 88-91. (in Chinese)
    [3] 周亚丽, 金雪莲, 竺明星. 先浅后深深基坑工程的设计与分析[J]. 建筑结构, 2020, 50(23): 123-127,17. (ZHOU Y L, JIN X L, ZHU M X. Design and analysis of the deep foundation pit project constructed from shallow to deep[J]. Building Structure, 2020, 50(23): 123-127,17. (in Chinese)

    ZHOU Y L, JIN X L, ZHU M X. Design and analysis of the deep foundation pit project constructed from shallow to deep[J]. Building Structure, 2020, 50(23): 123-127,17. (in Chinese)
    [4] 陈 娟, 唐德康. 软土区域先浅后深基坑工程围护设计与应用[J]. 中国市政工程, 2021(3): 80-83. (CHEN J, TANG D K. Design & application of shallow first & deep foundation pit support in soft soil area[J]. China Municipal Engineering, 2021(3): 80-83. (in Chinese) doi: 10.3969/j.issn.1004-4655.2021.03.022

    CHEN J, TANG D K. Design & application of shallow first & deep foundation pit support in soft soil area[J]. China Municipal Engineering, 2021(3): 80-83. (in Chinese) doi: 10.3969/j.issn.1004-4655.2021.03.022
    [5] 张学伟, 夏志锋, 李学虎, 等. 紧邻地铁隧道群基坑先浅后深施工技术[J]. 施工技术, 2014, 43(21): 63-66. (ZHANG X W, XIA Z F, LI X H, et al. Construction technology of shallow to deep foundation excavation close to the subway tunnel[J]. Construction Technology, 2014, 43(21): 63-66. (in Chinese)

    ZHANG X W, XIA Z F, LI X H, et al. Construction technology of shallow to deep foundation excavation close to the subway tunnel[J]. Construction Technology, 2014, 43(21): 63-66. (in Chinese)
    [6] 潘伟强. 共用围护相邻基坑“先浅后深”施工技术[J]. 地下工程与隧道, 2013(4): 27-31,59-60. (PAN W Q. Construction technology of “The shallow first and then deep” for adjacent excavation pits Sharing retaining wall[J]. Underground Engineering and Tunnels, 2013(4): 27-31,59-60. (in Chinese)

    PAN W Q. Construction technology of “The shallow first and then deep” for adjacent excavation pits Sharing retaining wall[J]. Underground Engineering and Tunnels, 2013(4): 27-31,59-60. (in Chinese)
    [7] 杨文平, 张少青, 蒋永丰. 共用基坑围护体系先浅后深施工技术[J]. 施工技术(中英文), 2023, 52(7): 81-85. (YANG W P, ZHANG S Q, JIANG Y F. Shallow first and then deep construction technology of shared foundation excavation enclosure system[J]. Construction Technology, 2023, 52(7): 81-85. (in Chinese)

    YANG W P, ZHANG S Q, JIANG Y F. Shallow first and then deep construction technology of shared foundation excavation enclosure system[J]. Construction Technology, 2023, 52(7): 81-85. (in Chinese)
    [8] 张 欢. 三排桩支护体系在深基坑开挖中的变形与内力研究[D]. 宜昌: 三峡大学, 2019. (ZHANG H. Study on deformation and internal force of three-row piles supporting system in deep foundation pit excavation[D]. Yichang: China Three Gorges University, 2019. (in Chinese)

    ZHANG H. Study on deformation and internal force of three-row piles supporting system in deep foundation pit excavation[D]. Yichang: China Three Gorges University, 2019. (in Chinese)
    [9] 董必昌, 王雅新, 陈世龙, 等. 深基坑三排桩支护结构被动区力学特性研究[J]. 武汉理工大学学报(交通科学与工程版), 2024, 48(2): 347-352. (DONG B C, WANG Y X, CHEN S L, et al. Research on mechanical properties of passive earth pressure of treble-row-piles wall retaining and protection structure for deep excavations[J]. Journal of Wuhan University of Technology (Transportation Science & Engineering), 2024, 48(2): 347-352. (in Chinese)

    DONG B C, WANG Y X, CHEN S L, et al. Research on mechanical properties of passive earth pressure of treble-row-piles wall retaining and protection structure for deep excavations[J]. Journal of Wuhan University of Technology (Transportation Science & Engineering), 2024, 48(2): 347-352. (in Chinese)
    [10] 黄伟达. 高边坡三排桩的工作性状及简化算法[J]. 工程勘察, 2017, 45(12): 9-14. (HUANG W D. Performance and simplified calculation of three-row pile of high slope stability retaining structure[J]. Geotechnical Investigation & Surveying, 2017, 45(12): 9-14. (in Chinese)

    HUANG W D. Performance and simplified calculation of three-row pile of high slope stability retaining structure[J]. Geotechnical Investigation & Surveying, 2017, 45(12): 9-14. (in Chinese)
    [11] 曹新刚, 丁 飞. 不同工况下三排桩基坑支护特性分析[J]. 安徽建筑, 2020, 27(7): 85-87. (CAO X G, DING F. Analysis of the characteristics of three-row pile foundation pit support under different working conditions[J]. Anhui Architecture, 2020, 27(7): 85-87. (in Chinese)

    CAO X G, DING F. Analysis of the characteristics of three-row pile foundation pit support under different working conditions[J]. Anhui Architecture, 2020, 27(7): 85-87. (in Chinese)
  • 加载中
图(12) / 表(2)
计量
  • 文章访问数:  109
  • HTML全文浏览量:  29
  • PDF下载量:  39
  • 被引次数: 0
出版历程
  • 收稿日期:  2024-11-11
  • 修回日期:  2025-02-13
  • 录用日期:  2025-04-09
  • 刊出日期:  2026-02-06

目录

    /

    返回文章
    返回