留言板

尊敬的读者、作者、审稿人, 关于本刊的投稿、审稿、编辑和出版的任何问题, 您可以本页添加留言。我们将尽快给您答复。谢谢您的支持!

姓名
邮箱
手机号码
标题
留言内容
验证码

桩−撑−锚支护在深厚杂填土基坑中的应用和变形特性研究

魏仁杰 颜立明

魏仁杰, 颜立明. 桩−撑−锚支护在深厚杂填土基坑中的应用和变形特性研究[J]. 岩土工程技术, 2026, 40(2): 231-236. doi: 10.20265/j.cnki.issn.1007-2993.2024-0541
引用本文: 魏仁杰, 颜立明. 桩−撑−锚支护在深厚杂填土基坑中的应用和变形特性研究[J]. 岩土工程技术, 2026, 40(2): 231-236. doi: 10.20265/j.cnki.issn.1007-2993.2024-0541
WEI Renjie, YAN Liming. Application and deformation characteristics study of pile-brace-anchor support in deep and thick miscellaneous fill foundation pit[J]. GEOTECHNICAL ENGINEERING TECHNIQUE, 2026, 40(2): 231-236. doi: 10.20265/j.cnki.issn.1007-2993.2024-0541
Citation: WEI Renjie, YAN Liming. Application and deformation characteristics study of pile-brace-anchor support in deep and thick miscellaneous fill foundation pit[J]. GEOTECHNICAL ENGINEERING TECHNIQUE, 2026, 40(2): 231-236. doi: 10.20265/j.cnki.issn.1007-2993.2024-0541

桩−撑−锚支护在深厚杂填土基坑中的应用和变形特性研究

doi: 10.20265/j.cnki.issn.1007-2993.2024-0541
详细信息
    作者简介:

    魏仁杰,1986年生,女,硕士,高级工程师,注册土木工程师(岩土),主要从事岩土工程设计工作。E-mail:382388762@qq.com

  • 中图分类号: TU437

Application and deformation characteristics study of pile-brace-anchor support in deep and thick miscellaneous fill foundation pit

  • 摘要: 以江阴某环境综合整治项目为背景,介绍了在深厚杂填土基坑中桩−锚−撑的支护形式,并根据杂填土的特性及周边建筑的保护要求,提出相应的施工措施。通过PLAXIS 2D有限元模拟和理论计算相结合的方法,分析了围护结构的内力和变形特性以及周边地表的沉降规律。研究结果表明:(1)围护体侧向变形的整体位移主要发生在上部杂填土层中;(2)基坑地表沉降呈勺状分布,最大沉降位于距基坑边约0.5倍开挖深度处;(3)有限元模拟的弯矩值和剪力值与理论计算值存在一些差异,但曲线的整体变化规律基本相同,验证了本文数值计算模型和岩土参数的合理性。

     

  • 图  1  基坑周边环境图

    Figure  1.  Surrounding environment map of the foundation pit

    图  2  典型地质剖面图(单位:m)

    Figure  2.  Typical geological cross-section (Unit: m)

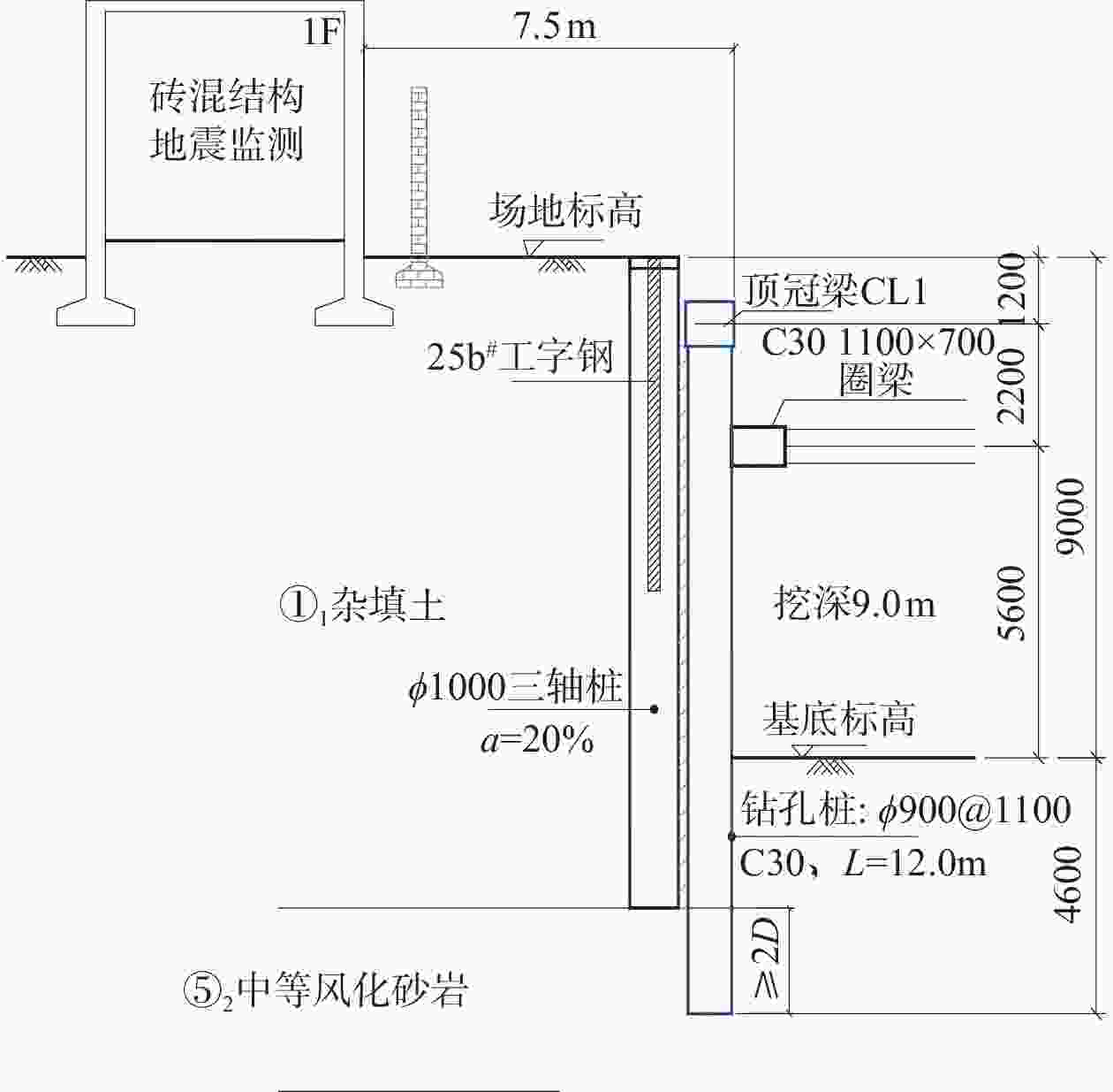
    图  3  典型剖面图(单位:mm)

    Figure  3.  Typical cross-section profile (Unit: mm)

    图  4  典型剖面图(单位:mm)

    Figure  4.  Typical cross-section profile (Unit: mm)

    图  5  围护桩侧向变形

    Figure  5.  Lateral deformation of the retaining piles

    图  6  基坑周边地表沉降

    Figure  6.  Ground surface settlement around the foundation pit

    图  7  围护桩弯矩值

    Figure  7.  Bending moment value of the retaining piles

    图  8  围护桩剪力值

    Figure  8.  Shear force value of the retaining piles

    表  1  基坑土层物理力学参数表

    Table  1.   Physical and mechanical parameters of foundation pit soil layers

    层号土层名称层厚
    /m
    重度γ
    /(kN·m−3
    φk
    /(°)
    ck
    /kPa
    渗透系数k
    /(cm·s−1
    1杂填土0.50~28.0019.0*15*10*5.0E-05
    2素填土1.00~12.9018.513.714.33.0E-05
    2中等风化砂岩45*120*2.0E-05
    注:带*均为经验值。
    下载: 导出CSV

    表  2  板单元计算参数

    Table  2.   Calculation parameters of the plate element

    项目 d
    /m
    EA
    /(kN·m−1)
    EI
    /(kN·m2·m−1)
    W
    /(kN·m−1·m−1)
    泊松比
    0.706 2.117×107 8.782×105 8 0.2
    下载: 导出CSV
  • [1] 王 涛, 闫振环. 钢管土钉结合压密注浆在深厚杂填土基坑中的应用[J]. 岩土工程技术, 2014, 28(3): 160-163. (WANG T, YAN Z H. Application of Soil Nailing of steel tube combined with compaction grouting in foundation pit with deep miscellaneous fill[J]. Geotechnical Engineering Technique, 2014, 28(3): 160-163. (in Chinese) doi: 10.3969/j.issn.1007-2993.2014.03.012

    WANG T, YAN Z H. Application of Soil Nailing of steel tube combined with compaction grouting in foundation pit with deep miscellaneous fill[J]. Geotechnical Engineering Technique, 2014, 28(3): 160-163. (in Chinese) doi: 10.3969/j.issn.1007-2993.2014.03.012
    [2] 孙剑平, 邵广彪, 江宗宝. 深厚杂填土基坑位移控制设计与施工技术[J]. 岩土工程学报, 2012, 34(S1): 576-580. (SUN J P, SHAO G B, JIANG Z B. Design and construction technology of displacement control in deep miscellaneous fill foundation pits[J]. Chinese Journal of Geotechnical Engineering, 2012, 34(S1): 576-580. (in Chinese)

    SUN J P, SHAO G B, JIANG Z B. Design and construction technology of displacement control in deep miscellaneous fill foundation pits[J]. Chinese Journal of Geotechnical Engineering, 2012, 34(S1): 576-580. (in Chinese)
    [3] 朱志华, 刘 涛, 单红仙. 土岩结合条件下深基坑支护方式研究[J]. 岩土力学, 2011, 32(S1): 619-623. (ZHU Z H, LIU T, SHAN H X. Study of supporting type for deep foundation pit in areas of rock and soil[J]. Rock and Soil Mechanics, 2011, 32(S1): 619-623. (in Chinese) doi: 10.16285/j.rsm.2011.s1.131

    ZHU Z H, LIU T, SHAN H X. Study of supporting type for deep foundation pit in areas of rock and soil[J]. Rock and Soil Mechanics, 2011, 32(S1): 619-623. (in Chinese) doi: 10.16285/j.rsm.2011.s1.131
    [4] 白晓宇, 张明义, 袁海洋. 移动荷载作用下土岩组合基坑吊脚桩变形分析[J]. 岩土力学, 2015, 36(4): 1167-1173,1181. (BAI X Y, ZHANG M Y, YUAN H Y. Deformation analysis for the end-suspended piles in the combined soil-rock foundation pits under moving loadings[J]. Rock and Soil Mechanics, 2015, 36(4): 1167-1173,1181. (in Chinese) doi: 10.16285/j.rsm.2015.04.034

    BAI X Y, ZHANG M Y, YUAN H Y. Deformation analysis for the end-suspended piles in the combined soil-rock foundation pits under moving loadings[J]. Rock and Soil Mechanics, 2015, 36(4): 1167-1173,1181. (in Chinese) doi: 10.16285/j.rsm.2015.04.034
    [5] 白晓宇, 张明义, 闫 楠, 等. 土岩深基坑桩−撑−锚组合支护体系变形特性[J]. 中南大学学报(自然科学版), 2018, 49(2): 454-468. (BAI X Y, ZHANG M Y, YAN N, et al. Deformation properties of combined support system of pile-steel support-anchor cable for deep foundation pit in rock-soil combination[J]. Journal of Central South University (Science and Technology), 2018, 49(2): 454-468. (in Chinese)

    BAI X Y, ZHANG M Y, YAN N, et al. Deformation properties of combined support system of pile-steel support-anchor cable for deep foundation pit in rock-soil combination[J]. Journal of Central South University (Science and Technology), 2018, 49(2): 454-468. (in Chinese)
    [6] 刘红军, 王亚军, 姜德鸿, 等. 土岩组合双排吊脚桩桩锚支护基坑变形数值分析[J]. 岩石力学与工程学报, 2011, 30(S1): 4099-4103. (LIU H J, WANG Y J, JIANG D H, et al. Numerical analysis of deep foundation pit displacement with double-row end-suspended piles in strata of soil-rock dualistic structure[J]. Chinese Journal of Rock Mechanics and Engineering, 2011, 30(S1): 4099-4103. (in Chinese)

    LIU H J, WANG Y J, JIANG D H, et al. Numerical analysis of deep foundation pit displacement with double-row end-suspended piles in strata of soil-rock dualistic structure[J]. Chinese Journal of Rock Mechanics and Engineering, 2011, 30(S1): 4099-4103. (in Chinese)
    [7] 刘红军, 于雅琼, 王秀海. 土岩组合地层旋喷桩止水桩锚支护基坑变形与受力数值分析[J]. 岩土工程学报, 2012, 34(S1): 297-302. (LIU H J, YU Y Q, WANG X H. Deformation and force analysis of pile anchor for soil-rock dualistic structure based on finite element theory[J]. Chinese Journal of Geotechnical Engineering, 2012, 34(S1): 297-302. (in Chinese)

    LIU H J, YU Y Q, WANG X H. Deformation and force analysis of pile anchor for soil-rock dualistic structure based on finite element theory[J]. Chinese Journal of Geotechnical Engineering, 2012, 34(S1): 297-302. (in Chinese)
    [8] 徐中华, 王卫东. 敏感环境下基坑数值分析中土体本构模型的选择[J]. 岩土力学, 2010, 31(1): 258-264,326. (XU Z H, WANG W D. Selection of soil constitutive models for numerical analysis of deep excavations in close proximity to sensitive properties[J]. Rock and Soil Mechanics, 2010, 31(1): 258-264,326. (in Chinese) doi: 10.3969/j.issn.1000-7598.2010.01.044

    XU Z H, WANG W D. Selection of soil constitutive models for numerical analysis of deep excavations in close proximity to sensitive properties[J]. Rock and Soil Mechanics, 2010, 31(1): 258-264,326. (in Chinese) doi: 10.3969/j.issn.1000-7598.2010.01.044
    [9] 王博文, 夏 晨, 王子安, 等. 小应变硬化模型在南京漫滩区深大基坑中的应用研究[J]. 北京建筑大学学报, 2024, 40(3): 127-136. (WANG B W, XIA C, WANG Z A, et al. Application of small strain soil hardening model in deep foundation pit in floodplain area of Nanjing[J]. Journal of Beijing University of Civil Engineering and Architecture, 2024, 40(3): 127-136. (in Chinese) doi: 10.19740/j.2096-9872.2024.03.15

    WANG B W, XIA C, WANG Z A, et al. Application of small strain soil hardening model in deep foundation pit in floodplain area of Nanjing[J]. Journal of Beijing University of Civil Engineering and Architecture, 2024, 40(3): 127-136. (in Chinese) doi: 10.19740/j.2096-9872.2024.03.15
    [10] 史 康, 孙元硕, 张 伟, 等. 桩锚支护变形规律及基坑周围变形分析[J]. 工程勘察, 2021, 49(10): 6-14. (SHI K, ZHANG Y S, ZHANG W, et al. Analysis of deformation law of pile anchor support and deformation around foundation pit[J]. Geotechnical Investigation & Surveying, 2021, 49(10): 6-14. (in Chinese)

    SHI K, ZHANG Y S, ZHANG W, et al. Analysis of deformation law of pile anchor support and deformation around foundation pit[J]. Geotechnical Investigation & Surveying, 2021, 49(10): 6-14. (in Chinese)
    [11] 胡瑞庚, 刘红军, 王兆耀, 等. 邻近建筑物的滨海土岩组合基坑支护结构变形分析[J]. 工程地质学报, 2020, 28(6): 1368-1377. (HU R K, LIU H J, WANG Z Y, et al. Deformation analysis of supporting structure for soil-rock combination foundation pit with adjacent buildings in coastal area[J]. Journal of Engineering Geology, 2020, 28(6): 1368-1377. (in Chinese) doi: 10.13544/j.cnki.jeg.2019-545

    HU R K, LIU H J, WANG Z Y, et al. Deformation analysis of supporting structure for soil-rock combination foundation pit with adjacent buildings in coastal area[J]. Journal of Engineering Geology, 2020, 28(6): 1368-1377. (in Chinese) doi: 10.13544/j.cnki.jeg.2019-545
    [12] 顾晓强, 吴瑞拓, 梁发云, 等. 上海土体小应变硬化模型整套参数取值方法及工程验证[J]. 岩土力学, 2021, 42(3): 833-845. (GU X Q, WU R T, LIANG F Y, et al. On HSS model parameters for Shanghai soils with engineering verification[J]. Rock and Soil Mechanics, 2021, 42(3): 833-845. (in Chinese) doi: 10.16285/j.rsm.2020.0741

    GU X Q, WU R T, LIANG F Y, et al. On HSS model parameters for Shanghai soils with engineering verification[J]. Rock and Soil Mechanics, 2021, 42(3): 833-845. (in Chinese) doi: 10.16285/j.rsm.2020.0741
    [13] 李斯海, 张玉军. 深基坑开挖与支护过程的平面有限元模拟[J]. 岩石力学与工程学报, 1999, 18(3): 342-345. (LI S H, ZHANG Y J. Numerical simulations by 2D fem in process of excavation and supporting of deep foundation ditch[J]. Chinese Journal of Rock Mechanics and Engineering, 1999, 18(3): 342-345. (in Chinese)

    LI S H, ZHANG Y J. Numerical simulations by 2D fem in process of excavation and supporting of deep foundation ditch[J]. Chinese Journal of Rock Mechanics and Engineering, 1999, 18(3): 342-345. (in Chinese)
  • 加载中
图(8) / 表(2)
计量
  • 文章访问数:  8
  • HTML全文浏览量:  1
  • PDF下载量:  1
  • 被引次数: 0
出版历程
  • 收稿日期:  2024-11-22
  • 修回日期:  2025-04-09
  • 录用日期:  2025-04-09
  • 网络出版日期:  2026-04-09
  • 刊出日期:  2026-04-09

目录

    /

    返回文章
    返回