Application of beam string steel truss support in a box foundation pit project
-
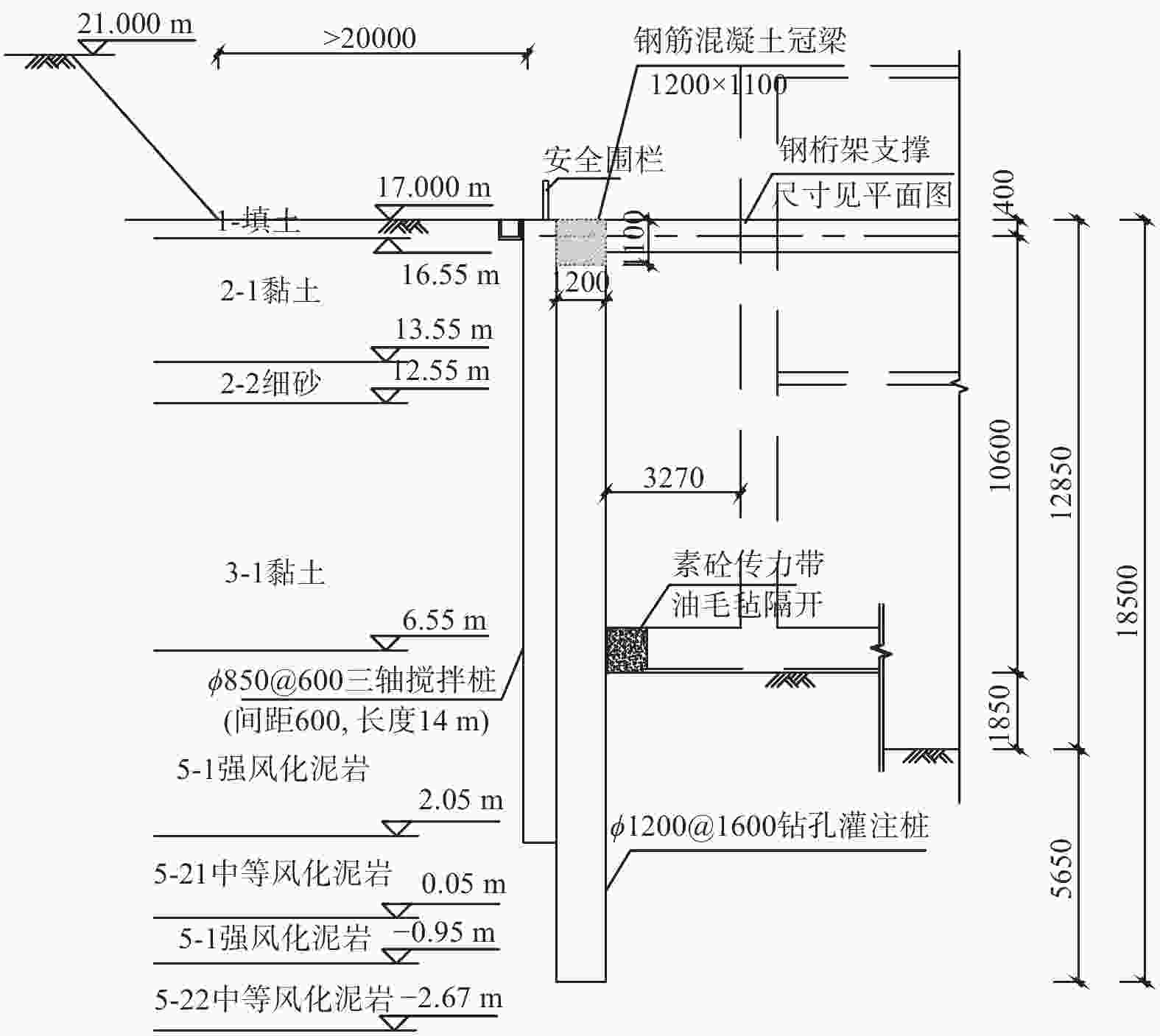
摘要: 随着城市地下空间开发向深大化发展,绿色可回收支护技术成为基坑工程的重要发展方向。以粤港澳大湾区某污水处理厂箱体式深基坑工程为研究对象,论证了预应力装配式张弦梁钢桁架支撑技术的工程适用性及环境效益。通过构建混凝土支撑与张弦梁钢支撑多方案对比模型,结合有限元数值模拟与施工全过程监测,揭示了该技术的力学特性与变形控制机理。研究结果表明:(1)预应力调控系统可实现基坑变形主动控制,部分桩顶位移监测点出现最大值为−8.4 mm的反向变形;(2)模块化装配技术使支撑间距由18 m扩展至30 m,释放30%作业空间,施工效率提升;(3)构建钢−混凝土组合支护体系,解决异形基坑平面适配难题;(4)量化环境效益显示,钢构件回收率达95%以上,减少建筑垃圾及碳排放。本案例为深基坑绿色支护技术提供了量化设计范式,对推动可持续岩土工程发展具有实践价值。Abstract: With the development of urban underground space to deep and large, green recyclable support technology has become an important development direction of foundation pit engineering. In this paper, the engineering applicability and environmental benefits of the prestressed prefabricated beam string steel truss support technology of a sewage treatment plant in the Guangdong-Hong Kong-Macao Greater Bay Area are systematically demonstrated. By constructing a multi-scheme comparison model of concrete support and beam string steel truss support, combined with finite element numerical simulation and monitoring of the whole construction process, the mechanical properties and deformation control mechanism of the technology are revealed: (1) The prestress control system can realize the active control of foundation pit deformation, and the maximum reverse deformation of some pile top displacement monitoring points is –8.4 mm; (2) The modular assembly technology expands the support spacing from 18 m to 30 m, frees up 30% of the working space, and improves the construction efficiency; (3) A steel-concrete composite support system could effectively solve the problem of plane adaptation of special-shaped foundation pits; (4) The quantitative environmental benefits show that the recycling rate of steel components is more than 95%, reducing construction waste and carbon emissions. This case provides a quantitative design paradigm for green support technology for deep foundation pits, and has practical value for promoting the development of sustainable geotechnical engineering.
-
Key words:
- beam string /
- steel truss /
- green support /
- assembled /
- prestressed
-
表 1 岩土一般物理力学指标设计参数
Table 1. Design parameters of general physical and mechanical indicators of rock and soil
地层编号 岩土层名称 天然密度ρ
/(g·cm−3)直接快剪 黏聚力
c/kPa内摩擦角
φ/(°)① 耕植土 1.86 21.6 13.5 ①1 杂填土 1.85 10.0 15.0 ①2 素填土 1.84 23.4 13.8 ②1 黏土 1.86 25.0 14.0 ②2 细砂 1.90 2.0 28.0 ②3 黏土 1.88 25.0 14.4 ③1 黏土 1.92 15.0 10.0 ④1 强风化泥质粉砂岩 1.95 35.0 25.0 ④2 中等风化泥质粉砂岩 2.05 100.0 40.0 ⑤1 强风化凝灰岩 1.95 35.0 25.0 ⑤2-1 中等风化凝灰岩(较破碎) 2.10 100.0 42.0 ⑤2-2 中等风化凝灰岩(较完整) 2.15 120.0 45.0 表 2 钢支撑与砼支撑特点对比表
Table 2. Comparison table of the characteristics of steel support and concrete support
对比项目 钢支撑 砼支撑 开挖面积 大 小 施工工期 短 长 建筑垃圾 少 多 构件回收 可 不可 施工噪音 小 大 扬尘 无 有 表 3 节点位移表
Table 3. Nodal displacement table
序号 节点号 垂直基坑位移/mm 1 40 10.5 2 292 10.9 3 394 8.2 4 444 6.2 5 494 7.0 6 629 15.8 7 646 15.8 8 848 6.3 9 898 7.7 10 950 7.7 表 4 预拼装段数表
Table 4. Table of the number of pre-assembled segments
序号 分段构件 分段长度/m 分段质量/t 1 
7 5.6 2 
11 6.8 3 
6 4.5 表 5 监测结果汇总表
Table 5. Summary table of monitoring results
监测项目 累计变化 报警指标 点号 最大值 报警值 控制值 支护桩顶水平位移/mm Z06 21.88 ±36 ±45 支护桩顶竖向位移/mm S19 −27.8 ±36 ±45 深层水平位移/mm C11 26.34 ±40 ±50 立柱桩沉降/mm LX14 16.35 ±20 ±25 -
[1] 徐杨青, 江强强. 城市地下空间基坑工程技术发展综述[J]. 建井技术, 2020, 41(6): 1-9,23. (XU Y Q, JIANG Q Q. Review on engineering and technology development of foundation pit for urban underground space[J]. Mine Construction Technology, 2020, 41(6): 1-9,23. (in Chinese)XU Y Q, JIANG Q Q. Review on engineering and technology development of foundation pit for urban underground space[J]. Mine Construction Technology, 2020, 41(6): 1-9,23. (in Chinese) [2] 李连祥, 赵仕磊, 张菊连, 等. 全回收基坑支护技术发展及思考展望[J]. 工业建筑, 2025, 55(3): 211-222. (LI L X, ZHAO S L, ZHANG J L, et al. Thinking and prospects of the development of fully-recycled retaining and protection of foundation excavation engineering[J]. Industrial Construction, 2025, 55(3): 211-222. (in Chinese)LI L X, ZHAO S L, ZHANG J L, et al. Thinking and prospects of the development of fully-recycled retaining and protection of foundation excavation engineering[J]. Industrial Construction, 2025, 55(3): 211-222. (in Chinese) [3] 刘建鹏, 王 震, 黄 炜. 装配式张弦梁钢支撑技术适用性研究[J]. 中国建筑金属结构, 2023, 22(2): 45-48. (LIU J P, WANG Z, HUANG W. Research on the applicability of prefabricated tension beam steel support technology[J]. China Construction Metal Structure, 2023, 22(2): 45-48. (in Chinese)LIU J P, WANG Z, HUANG W. Research on the applicability of prefabricated tension beam steel support technology[J]. China Construction Metal Structure, 2023, 22(2): 45-48. (in Chinese) [4] 周 虔. 装配式预应力张弦梁钢支撑体系在深基坑支护设计及施工中的应用研究[J]. 江西建材, 2022(1): 200-202. (ZHOU Q. Design and construction of prefabricated pre-stressed tension string beam steel support system in deep foundation pit support applied research[J]. Jiangxi Building Materials, 2022(1): 200-202. (in Chinese)ZHOU Q. Design and construction of prefabricated pre-stressed tension string beam steel support system in deep foundation pit support applied research[J]. Jiangxi Building Materials, 2022(1): 200-202. (in Chinese) [5] 陈家冬, 陈卫刚, 吴 亮, 等. 装配式预应力张弦梁钢支撑在深基坑工程中的应用与实践[C]//第十二届深基础工程发展论坛论文集. 昆明: 中国建筑业协会深基础与地下空间工程分会, 中国工程机械工业协会桩工机械分会, 中国工程机械学会桩工机械分会, 等. 2022: 87-93. (CHEN J D, CHEN W G, WU L, et al. Application and practice of prefabricated prestressed tension beam steel support in deep foundation pit engineering[C]//Proceedings of the 12th Forum on the Development of Deep Foundation Engineering. Kunming: Pile Machinery Branch of China Construction Machinery Society, et. al. 2022: 87-93. (in Chinese)CHEN J D, CHEN W G, WU L, et al. Application and practice of prefabricated prestressed tension beam steel support in deep foundation pit engineering[C]//Proceedings of the 12th Forum on the Development of Deep Foundation Engineering. Kunming: Pile Machinery Branch of China Construction Machinery Society, et. al. 2022: 87-93. (in Chinese) [6] 谢卫兵, 郭海轮, 郑钊泽. 装配式张弦梁钢支撑在某深基坑工程中的应用[J]. 广东土木与建筑, 2022, 29(1): 22-25. (XIE W B, GUO H L, ZHENG Z Z. Application of assembled prestressed beam string steel bracing system in a deep excavation project[J]. Guangdong Architecture Civil Engineering, 2022, 29(1): 22-25. (in Chinese)XIE W B, GUO H L, ZHENG Z Z. Application of assembled prestressed beam string steel bracing system in a deep excavation project[J]. Guangdong Architecture Civil Engineering, 2022, 29(1): 22-25. (in Chinese) [7] 裴 杰. 装配式张弦梁钢支撑在深基坑中施工工艺探讨[J]. 建设科技, 2023(19): 82-84. (PEI J. Discussion on construction technology of prefabricated tension string beam steel bracing in deep excavation[J]. Construction Science and Technology, 2023(19): 82-84. (in Chinese)PEI J. Discussion on construction technology of prefabricated tension string beam steel bracing in deep excavation[J]. Construction Science and Technology, 2023(19): 82-84. (in Chinese) [8] 陈加顺. 张弦梁钢支撑系统在基坑支护中的运用[J]. 建筑监督检测与造价, 2022, 15(6): 47-50. (CHEN J S. Application of Zhangxian beam steel support system in foundation pit support[J]. Supervision Test and Cost of Construction, 2022, 15(6): 47-50. (in Chinese)CHEN J S. Application of Zhangxian beam steel support system in foundation pit support[J]. Supervision Test and Cost of Construction, 2022, 15(6): 47-50. (in Chinese) [9] 刘建鹏. 装配式张弦梁钢支撑基坑支护主动控制原理分析[J]. 工程与建设, 2023, 37(6): 1727-1731. (LIU J P. Displacement control principle of foundation pit supported by prestressed beam string steel bracing system[J]. Engineering and Construction, 2023, 37(6): 1727-1731. (in Chinese)LIU J P. Displacement control principle of foundation pit supported by prestressed beam string steel bracing system[J]. Engineering and Construction, 2023, 37(6): 1727-1731. (in Chinese) [10] 邓诗尧, 蔡博文, 裴子敬, 等. 预应力装配式张弦梁钢支撑施工技术研究[J]. 住宅与房地产, 2024(11): 21-25. (DENG S Y, CAI B W, PEI Z J, et al. Research on construction technology of prestressed prefabricated tension beam steel support[J]. Housing and Real Estate, 2024(11): 21-25. (in Chinese)DENG S Y, CAI B W, PEI Z J, et al. Research on construction technology of prestressed prefabricated tension beam steel support[J]. Housing and Real Estate, 2024(11): 21-25. (in Chinese) [11] 康积源, 郑旭锐, 陈天成, 等. 深基坑钢支撑加固措施的研究与应用[J]. 建筑机械化, 2024, 45(8): 78-82. (KANG J Y, ZHENG X R, CHEN T C, et al. Research and application of steel support and reinforcement measures in deep foundation pit[J]. Construction Mechanization, 2024, 45(8): 78-82. (in Chinese)KANG J Y, ZHENG X R, CHEN T C, et al. Research and application of steel support and reinforcement measures in deep foundation pit[J]. Construction Mechanization, 2024, 45(8): 78-82. (in Chinese) [12] 张小芳, 程 磊, 王贤能, 等. 预应力张弦梁钢支撑在某基坑工程中的应用[J]. 广东建材, 2024, 40(2): 103-108. (ZHANG X F, CHENG L, WANG X N, et al. The application of prestressed string beam steel support in a foundation pit engineering[J]. Guangdong Building Materials, 2024, 40(2): 103-108. (in Chinese)ZHANG X F, CHENG L, WANG X N, et al. The application of prestressed string beam steel support in a foundation pit engineering[J]. Guangdong Building Materials, 2024, 40(2): 103-108. (in Chinese) [13] 王义军. 张悬梁钢支撑在某深基坑支护工程中的应用[J]. 工程建设与设计, 2024(2): 35-37. (WANG Y J. Application of steel bracing of suspension beam in a deep foundation pit[J]. Construction & Design for Engineering, 2024(2): 35-37. (in Chinese)WANG Y J. Application of steel bracing of suspension beam in a deep foundation pit[J]. Construction & Design for Engineering, 2024(2): 35-37. (in Chinese) -
下载: