Design and field measurement study of semi-top-down support method for large-opening deep excavation in reclaimed coastal land, Xiamen
-
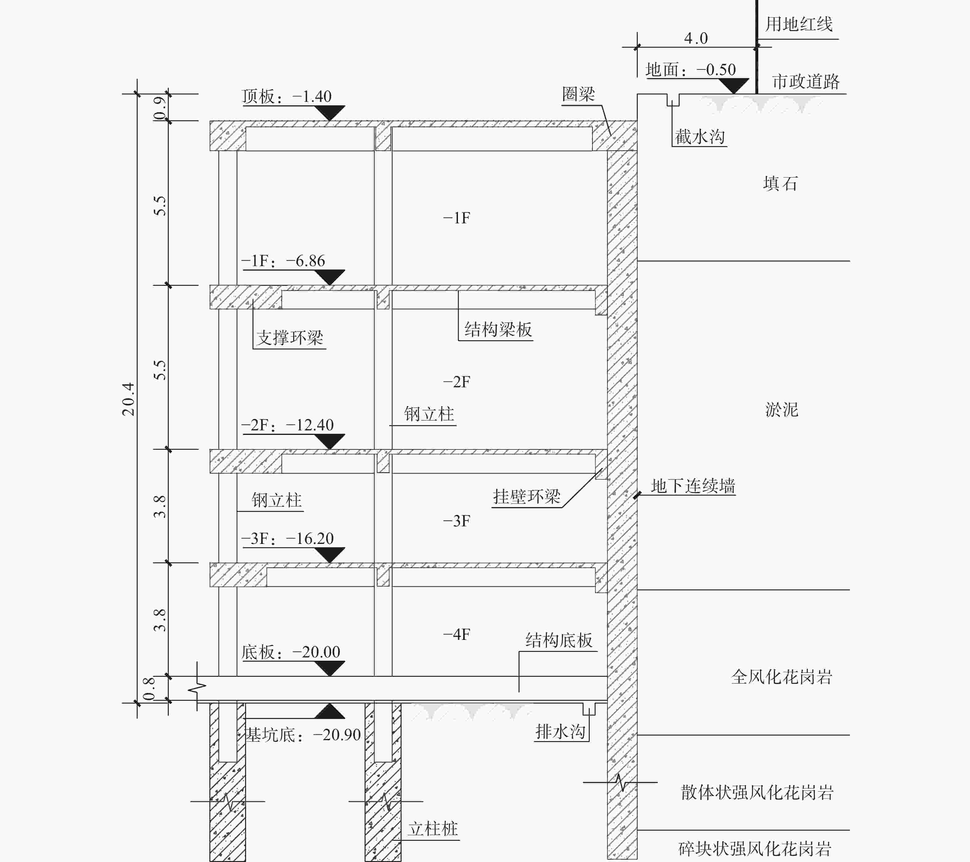
摘要: 厦门某深基坑工程位于城市中心区,场地地处临海潮间带回填区,地质条件复杂,周边环境保护要求严苛。为实现基坑变形控制与工程经济性协同目标,提出“两墙合一+大开洞结构楼板”的半逆作法支护体系,辅以一柱一桩竖向支承系统。采用理论分析、数值模拟、动态设计–信息化施工全流程管控相结合的综合技术方法,完成基坑设计与施工。监测数据显示围护墙最大深层水平位移仅34.2 mm,周边地表沉降普遍小于20 mm,保障了周边环境安全。本研究总结了大开洞楼板等效水平刚度取值方法,提出了复杂地层地下连续墙成槽工艺优化路径,研发了适用于水平楼板的高效支模技术及梁柱节点构造等措施,同时针对地连墙墙体缺陷成因提出改进措施。工程实践及研究结果表明:滨海回填区深基坑采用大开洞半逆作法支护设计合理可行,大开洞的楼板水平支撑刚度需根据楼板宽度与厚度综合确定,建议取值范围为30~85 MN/m2,设计中可根据施工需求分区确定各层楼板设计荷载并优化竖向支承体系。研究成果可为临海复杂地质条件下类似深基坑工程提供技术参考。Abstract: A deep foundation pit project in Xiamen, located in the urban center within a complex geological environment of a coastal intertidal zone backfill area, faced challenges of dense surrounding buildings, intersecting utility lines, and stringent environmental protection requirements. To achieve the dual objectives of foundation pit deformation control and project cost-effectiveness, a semi-top-down support system combining dual-wall integration with large-opening structural floor slabs was proposed, supplemented by a vertical support system featuring one column and one pile. A comprehensive technical approach combining theoretical analysis, numerical simulation, and dynamic design-to-construction information management was employed to complete the design and construction process. Monitoring data revealed that the maximum deep-seated horizontal displacement of the retaining wall was only 34.2 mm, with surrounding ground surface settlement generally less than 20 mm, effectively safeguarding the safety of the surrounding environment. This study summarizes methods for determining the equivalent horizontal stiffness of large-opening floor slabs, proposes an optimization pathway for the continuous diaphragm wall trenching process in complex strata, and develops measures such as efficient formwork techniques for horizontal floor slabs and beam-column joint construction. Additionally, it proposes improvement measures addressing the causes of defects in continuous diaphragm wall structures. Results indicate: The semi-top-down method for deep foundation pit support in coastal backfilled areas with large openings is reasonably feasible. The horizontal support stiffness of large-opening floor slabs should be comprehensively determined based on slab width and thickness, with a recommended range of 30 MN/m2 to 85 MN/m2. Furthermore, during design, floor slab design loads can be zoned according to construction requirements, and the vertical support system design can be optimized. This research provides technical guidance for similar deep foundation pit projects in complex coastal geological environments.
-
表 1 主要岩土层物理力学性质指标
Table 1. Key physical and mechanical properties of major geologic layers
层号 岩土名称 天然重度γ/(kN·m−³) 土层厚度/m 直剪快剪 渗透系数 黏聚力c/kPa 内摩擦角φ/(°) k/(cm·s−1) ①-1 杂填土 18.2 1.5~6.1 15.0 15.0 1.0×10−3 ①-2 填石 20.5 1.6~12.1 0 30.0 2.4×10−2 ①-3 填砂 18.5 1.7~7.60 0 25.0 2.2×10−2 ② 淤泥及淤泥质土 16.4 0.9~11.0 9.0 5.0 2.0×10−6 ③-1 粉质黏土 19.6 0.8~3.3 22.0 16.0 5.0×10−6 ③-2 粗砂 19.0 1.0~2.3 5.0 23.0 2.0×10−2 ④ 残积砂质黏性土 18.3 1.5~9.8 18.0 23.0 1.0×10−4 ⑤ 全风化花岗岩 19.5 1.1~9.8 25.0 28.0 1.5×10−4 ⑥-1 散体状强风化花岗岩 21.0 0.4~43.8 32.0 30.0 2.5×10−4 ⑥-2 碎块状强风化花岗岩 23.0 0.5~57.2 40.0 35.0 2.0×10−3 ⑦ 中等风化花岗岩 25.5 未揭穿 180.0 42.0 5.0×10−5 表 2 基坑开挖工况步骤
Table 2. Steps for excavation conditions
开挖工况 标高/m 支模方式 工况描述 工况一 −4.1 脚手架 从地坪开挖至顶板梁下1.8 m,施工顶板 工况二 −9.5 脚手架 开挖至−1F梁下1.8 m,施工−1F梁板 工况三 −14.2 矮脚撑 开挖至−2F梁下1.0 m,施工−2F梁板 工况四 −18.0 矮脚撑 开挖至−3F梁下1.0 m,施工−3F 梁板 工况五 −20.9 底板垫层 开挖至底板底,施工底板 表 3 地下楼层设计信息
Table 3. Basement Floor Design Information
楼层 板厚/mm 梁系布置 内撑环梁截面/mm (框架梁/次梁截面)/mm 施工荷载/(kN·m−2) 顶板 200 十字交叉次梁 1200×900 500×900/300×800 3.0/15.0 −1F 180 单向单次梁 2400×900 400×800/300×700 1.5 −2F 150 单向单次梁 2500×800 400×800/300×700 1.5 −3F 150/200 单向单次梁 1900×800 400×800/300×700 1.5 表 4 现场监测数据简况
Table 4. Summary of field monitoring data
监测项 地连墙
水平位移/mm坑外地表
沉降/mm(周边建筑物沉降/水平位移)/mm 周边管线沉降
/mm坑外水位
/m内撑环梁轴力
标准值/kN监测值 13.2 ~34.2 13.6~42.8 3.7/0.0 18.6 −5.82~0.46 13833~16176 预警值 45 40 10 20 −8.0 17190 -
[1] 田 野, 刘 宏, 张智峰, 等. 中国地下空间学术研究发展综述[J]. 地下空间与工程学报, 2020, 16(6): 1596-1610. (TIAN Y, LIU H, ZHANG Z F, et al. A summary of the development of underground space academic research in China[J]. Chinese Journal of Underground Space and Engineering, 2020, 16(6): 1596-1610. (in Chinese) doi: 10.20174/j.juse.2020.06.002TIAN Y, LIU H, ZHANG Z F, et al. A summary of the development of underground space academic research in China[J]. Chinese Journal of Underground Space and Engineering, 2020, 16(6): 1596-1610. (in Chinese) doi: 10.20174/j.juse.2020.06.002 [2] 冯海涛. 大开洞竖向半逆作法在超大深基坑工程中的应用[J]. 矿产勘查, 2024, 15(10): 1929-1936. (FENG H T. Application of the large-scale caving vertical semi-inverse method in super large and deep foundation pit project[J]. Mineral Exploration, 2024, 15(10): 1929-1936. (in Chinese) doi: 10.20008/j.kckc.202410018FENG H T. Application of the large-scale caving vertical semi-inverse method in super large and deep foundation pit project[J]. Mineral Exploration, 2024, 15(10): 1929-1936. (in Chinese) doi: 10.20008/j.kckc.202410018 [3] 朱宗明, 冯瀚文. 复杂地质与动水环境的临海深基坑支护设计与监测分析[J]. 广东土木与建筑, 2024, 31(9): 30-33,37. (ZHU Z M, FENG H W. Design and monitoring analysis of deep foundation pit support in complex geological and hydrodynamic environments near the sea[J]. Guangdong Architecture Civil Engineering, 2024, 31(9): 30-33,37. (in Chinese) doi: 10.19731/j.gdtmyjz.2024.09.008ZHU Z M, FENG H W. Design and monitoring analysis of deep foundation pit support in complex geological and hydrodynamic environments near the sea[J]. Guangdong Architecture Civil Engineering, 2024, 31(9): 30-33,37. (in Chinese) doi: 10.19731/j.gdtmyjz.2024.09.008 [4] 邓壹萍. 软土深基坑支护工程设计分析[J]. 工程技术研究, 2024, 9(20): 196-198. (DENG Y P. Analysis on the design of soft soil deep foundation pit support engineering[J]. Engineering and Technological Research, 2024, 9(20): 196-198. (in Chinese)DENG Y P. Analysis on the design of soft soil deep foundation pit support engineering[J]. Engineering and Technological Research, 2024, 9(20): 196-198. (in Chinese) [5] 孙 威. 滨海地区深基坑性状的试验及理论研究[D]. 杭州: 浙江大学, 2015. (SUN W. Experimental and theoretical study on behaviour of deep excavations in coastal areas[D]. Hangzhou: Zhejiang University, 2015. (in Chinese)SUN W. Experimental and theoretical study on behaviour of deep excavations in coastal areas[D]. Hangzhou: Zhejiang University, 2015. (in Chinese) [6] 张 旭, 王杰杰. 深基坑施工对邻近既有地铁车站附属的影响分析[J]. 岩土工程技术, 2023, 37(4): 492-498. (ZHANG X, WANG J J. Impact analysis of foundation pit excavation near the existing metro station auxiliary structure[J]. Geotechnical Engineering Technique, 2023, 37(4): 492-498. (in Chinese)ZHANG X, WANG J J. Impact analysis of foundation pit excavation near the existing metro station auxiliary structure[J]. Geotechnical Engineering Technique, 2023, 37(4): 492-498. (in Chinese) [7] 彭 顶, 王锐松, 倪芃芃. 滨海地区明挖隧道深基坑实测数据与开挖优化研究[J]. 广东土木与建筑, 2023, 30(8): 13-18. (PENG D, WANG R S, NI P P. Study on field measurement and optimization of excavation scheme for a deep foundation pit of open cut tunnel in coastal area[J]. Guangdong Architecture Civil Engineering, 2023, 30(8): 13-18. (in Chinese) doi: 10.19731/j.gdtmyjz.2023.08.004PENG D, WANG R S, NI P P. Study on field measurement and optimization of excavation scheme for a deep foundation pit of open cut tunnel in coastal area[J]. Guangdong Architecture Civil Engineering, 2023, 30(8): 13-18. (in Chinese) doi: 10.19731/j.gdtmyjz.2023.08.004 [8] 董月英, 魏建华, 李象范. “半逆作法”施工的深基坑工程的设计应用探讨[J]. 岩土工程学报, 2010, 32(S1): 229-233. (DONG Y Y, WEI J H, LI X F. Design and application of deep foundation pits by use of semi-reverse construction method[J]. Chinese Journal of Geotechnical Engineering, 2010, 32(S1): 229-233. (in Chinese)DONG Y Y, WEI J H, LI X F. Design and application of deep foundation pits by use of semi-reverse construction method[J]. Chinese Journal of Geotechnical Engineering, 2010, 32(S1): 229-233. (in Chinese) [9] 董 诚, 郑颖人, 陈新颖, 等. 深基坑土钉和预应力锚杆复合支护方式的探讨[J]. 岩土力学, 2009, 30(12): 3793-3796,3802. (DONG C, ZHENG Y R, CHEN X Y, et al. Research on composite support pattern of soil nails and prestressed anchors in deep foundation pits[J]. Rock and Soil Mechanics, 2009, 30(12): 3793-3796,3802. (in Chinese) doi: 10.16285/j.rsm.2009.12.045DONG C, ZHENG Y R, CHEN X Y, et al. Research on composite support pattern of soil nails and prestressed anchors in deep foundation pits[J]. Rock and Soil Mechanics, 2009, 30(12): 3793-3796,3802. (in Chinese) doi: 10.16285/j.rsm.2009.12.045 [10] 应宏伟, 王奎华, 谢康和, 等. 杭州解百商业城半逆作法深基坑支护设计与监测[J]. 岩土工程学报, 2001, 23(1): 79-83. (YING H W, WANG K H, XIE K H, et al. Design and monitoring of deep excavation with semi-top-down method in Hangzhou Jiebai commercial building[J]. Chinese Journal of Geotechnical Engineering, 2001, 23(1): 79-83. (in Chinese)YING H W, WANG K H, XIE K H, et al. Design and monitoring of deep excavation with semi-top-down method in Hangzhou Jiebai commercial building[J]. Chinese Journal of Geotechnical Engineering, 2001, 23(1): 79-83. (in Chinese) [11] 王亚辉. 地铁地下车站厚板大开洞结构受力性能分析与优化设计[D]. 西安: 西安建筑科技大学, 2017. (WANG Y H. The force analysis and optimum design of large open-hole structure of subway station[D]. Xi'an: Xi'an University of Architecture and Technology, 2017. (in Chinese)WANG Y H. The force analysis and optimum design of large open-hole structure of subway station[D]. Xi'an: Xi'an University of Architecture and Technology, 2017. (in Chinese) [12] 娄国欣. 地铁地下车站厚板大开洞结构受力性能研究与影响因素分析[D]. 西安: 西安建筑科技大学, 2018. (LOU G X. The mechanical performance study and influence factors analysis of large open-hole structure of subway station[D]. Xi'an: Xi'an University of Architecture and Technology, 2018. (in Chinese)LOU G X. The mechanical performance study and influence factors analysis of large open-hole structure of subway station[D]. Xi'an: Xi'an University of Architecture and Technology, 2018. (in Chinese) [13] 黄致兴, 谭 路, 谌 越, 等. 某软土深基坑动态设计方法探讨及变形控制技术研究[J]. 广东土木与建筑, 2024, 31(9): 25-29. (HUANG Z X, TAN L, CHEN Y, et al. A study on dynamic design method and deformation control technology for deep excavation in soft soil[J]. Guangdong Architecture Civil Engineering, 2024, 31(9): 25-29. (in Chinese) doi: 10.19731/j.gdtmyjz.2024.09.007HUANG Z X, TAN L, CHEN Y, et al. A study on dynamic design method and deformation control technology for deep excavation in soft soil[J]. Guangdong Architecture Civil Engineering, 2024, 31(9): 25-29. (in Chinese) doi: 10.19731/j.gdtmyjz.2024.09.007 -
下载: