Current Issue

2026 Vol. 40, No. 1

2026, 40(1): 1-1.
Abstract:
2026, 40(1): 1-3.
Abstract:
Review and Prospect
Review of pit engineering adjacent to existing buildings and structures
LIANG Baozhen, ZHENG Jianguo, WANG Yuguo, YU Yongtang, WANG Xiaoyong, CHEN Qiang, ZHUANG Jia
2026, 40(1): 1-17. doi: 10.20265/j.cnki.issn.1007-2993.2024-0568
Abstract:
In the process of urban renewal, foundation pit engineering is confronted with increasingly complex situations involving adjacent existing structures. To ensure the safety of foundation pit engineering and its adjacent existing structures, this paper summarizes the research status of foundation pit engineering adjacent to existing structures at home and abroad, classifies engineering cases according to different types of adjacent existing structures, and focuses on presenting the research achievements regarding the influence range of foundation pit engineering on surrounding soil, theoretical research, numerical analysis and experimental methods for the impacts of foundation pit construction and groundwater level changes on adjacent existing structures, as well as control measures and monitoring technologies for the effects of foundation pit engineering on adjacent existing structures. Based on existing research results and the complex working conditions faced by foundation pit engineering, this paper puts forward several research directions, including further refining the theoretical calculation methods for the influence of foundation pit construction on adjacent existing structures, investigating the impacts of complex groundwater environments on adjacent existing structures, exploring the coupling effects of foundation pit group construction on adjacent existing structures, optimizing the design of control measures for the influence of foundation pit engineering on adjacent existing structures, and improving the deformation monitoring system for adjacent existing structures.
Technology Development and Innovation
Intelligent identification of landslide region based on MobileNet network
MA Jianliang, ZHANG Zishan, LI Jianguang, LIU Xin, JIE Yuxin
2026, 40(1): 18-25. doi: 10.20265/j.cnki.issn.1007-2993.2024-0295
Abstract:
Conventional landslide cataloging and statistical analysis predominantly rely on manual field surveys, which are characterized by inefficiency and the potential for omitting certain areas. Currently, mainstream slope cataloging techniques based on image recognition typically necessitate high-performance equipment and incur substantial model training costs, thereby hindering their efficient application in on-site rapid screening scenarios. This study incorporates the MobileNet lightweight model and leverages the DeepLabV3 architecture to realize rapid intelligent identification and boundary localization of landslides in aerial photographic imagery. In comparison with traditional convolutional neural network (CNN) image segmentation approaches, the proposed method can achieve an accuracy exceeding 90% within 10% of the training duration required by conventional schemes. This renders it more adept at satisfying engineering demands for the rapid intelligent recognition of landslides and makes it suitable for the rapid screening and cataloging of landslide points across large-scale regions.
Calculation method of urban embankment protection range based on stress diffusion method
YU Jindi, LIU Xiang, LI Bo, XU Chaoyang, LI Chunyi, ZHOU Jian
2026, 40(1): 26-35. doi: 10.20265/j.cnki.issn.1007-2993.2024-0598
Abstract:
With the increasing number of high-fill embankments, multi-level platform embankments, and embankment reinforcement projects, the stress diffusion effect of embankment loads may pose a serious threat to surrounding buildings. In traditional design schemes, due to insufficient consideration of the stress diffusion effect of embankment loads, the additional stress in the top area of the embankment is often overestimated, while the horizontal diffusion effect is underestimated, resulting in insufficient evaluation of the potential threat of embankment loads to surrounding buildings in the design. The law of one high and one low in the diffusion of embankment loads has brought great difficulties to engineering design and analysis judgment, and also provided new ideas for optimizing design schemes. Based on the stress diffusion angle method, this article divides the embankment load into slope area load and embankment top area load, quantifies the influence of stress diffusion effect on the distribution range and magnitude of base pressure, and provides a new tool for enhancing safety in embankment design. By comparison, this method can more accurately reflect the actual distribution of base pressure compared to traditional methods. After analysis, its diffusion degree is related to the geometric dimensions of the embankment section. In addition, the uneven settlement in the diffusion area outside the embankment based on engineering measurement data was quantified. The results show that the diffusion effect poses a potential threat to the stability of surrounding residential buildings, which may cause structural safety issues such as tilting and cracks. In view of this, setting up settlement observation points at important locations around large-scale projects to monitor in real time and take timely preventive measures is suggested.
Horizontal displacement monitoring method of virtual baseline with free station setting
LI Zhichao, YAN Yangyang
2026, 40(1): 36-42. doi: 10.20265/j.cnki.issn.1007-2993.2024-0546
Abstract:
The inconvenience of using the reference point in the current foundation pit monitoring was discussed, and the applicability and convenience of the prism reference point in the urban foundation pit monitoring were analyzed. Through the research and application of the total station free station technology, the method and steps of the free station method to establish an independent reference network for horizontal displacement monitoring was introduced, and the method to improve the accuracy of this kind of reference network was proposed, to realize the accurate measurement of the spatial position of the monitoring point relative to the reference point. A new horizontal displacement monitoring method, the virtual reference line method of horizontal displacement monitoring based on the total station free setting method, is proposed. By establishing the virtual reference line, the horizontal distance change of the monitoring point relative to the virtual reference line is monitored, and then the displacement change of the monitoring object in a specific direction is determined, which has high precision, flexibility, and practicability.
High-efficiency construction technology of long auger drills in sandy gravel strata
LI Quanfeng, WANG Xueting
2026, 40(1): 43-47. doi: 10.20265/j.cnki.issn.1007-2993.2024-0441
Abstract:
The construction difficulties of conventional long auger drills in sandy gravel strata are mainly manifested as drill sticking, drill burying and severe mechanical wear. To address these problems, a series of improvements were made to the drilling tools and drilling operations of long auger drills, mainly including the following aspects: enhancing the torque of the power head of long auger drills to enable drilling in sandy gravel strata containing large-sized boulders; adding the reverse rotation function to the power head to allow independent adjustment after drill sticking or burying; strengthening relevant components such as drilling tools (drill pipes, alloy cutting bits, variable diameters, etc.), front and rear backplanes (including slips), casings and screws to make them adapt to the construction intensity; adjusting construction parameters such as rotational speed and footage speed according to actual conditions during drilling to achieve the effect of one-time hole and pile formation. Through practical tests, 5 sets of modified configurations of long auger drills suitable for construction in different sandy gravel strata were proposed, which can provide a reference for engineering applications.
Engineering Practice and Application
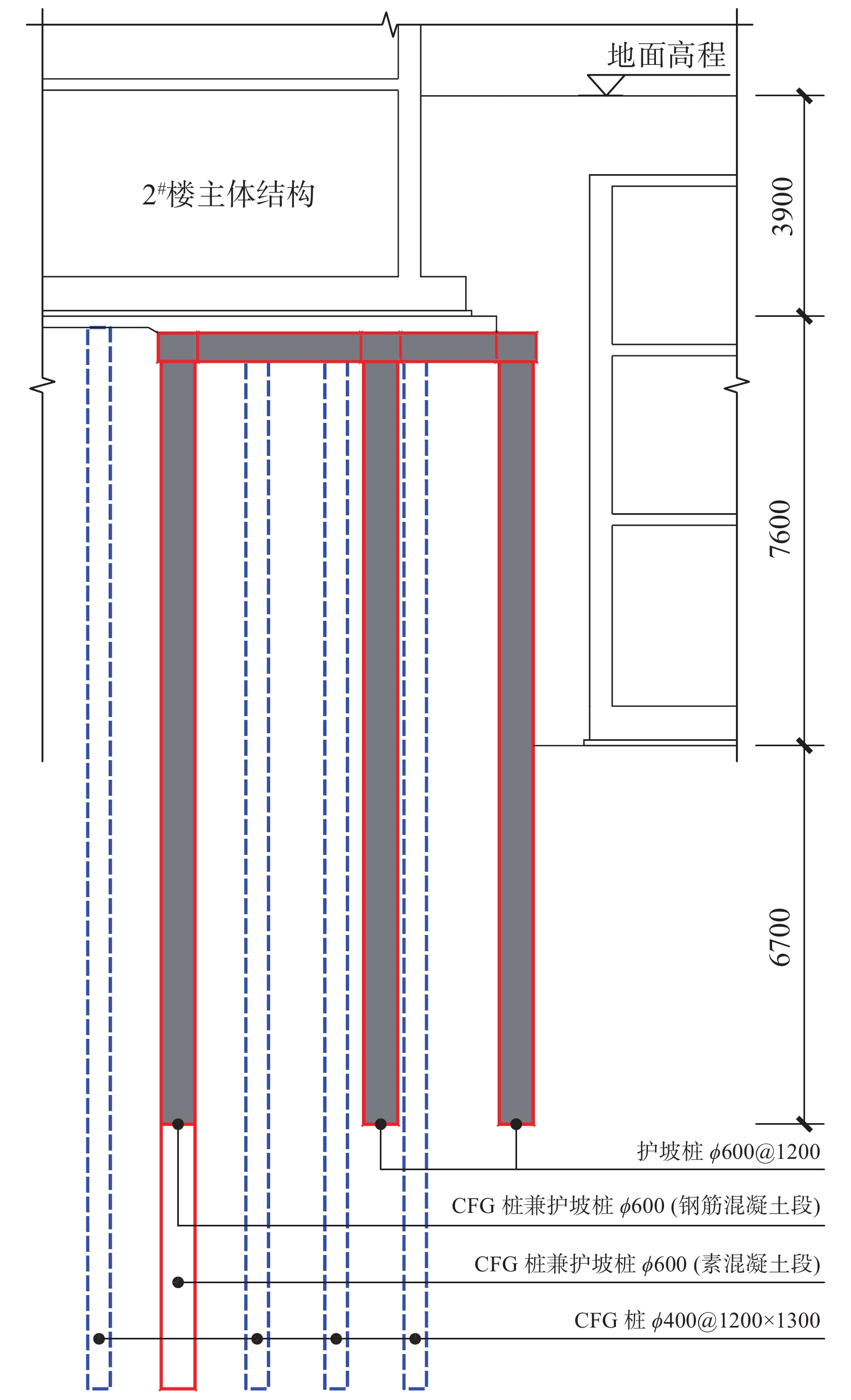
Design of triple-row pile foundation pit support combined with CFG piles under shallow to deep process
ZHANG Liangbing, HUANG Changqian
2026, 40(1): 48-54. doi: 10.20265/j.cnki.issn.1007-2993.2024-0520
Abstract:
In a construction project in Beijing, a high-rise residential building is adjacent to an underground garage, with a foundation height difference of 7.6 m. According to the construction schedule, the shallow residential building must be completed before the garage excavation. The design of the garage’s foundation pit support must consider the most critical scenario: the residential structure is topped out while the backfill space of the garage pit remains unfilled. To effectively control deformation in the deep foundation pit and the shallow residential building, a triple-row pile support system is adopted, integrating the adjacent CFG piles of the residential building. Numerical simulations and field monitoring demonstrate that deformations in the deep pit, settlement, and inclination of the residential building are within controllable limits. The load from the residential building is primarily transferred to deeper strata via the CFG piles, exerting minimal impact on the deep excavation. In this scheme, CFG piles serve dual functions: vertical load-bearing and lateral resistance. Their lateral stiffness is enhanced through a combination of diameter expansion and reinforcement. Additionally, uniformity in the bearing capacity and stiffness of the composite foundation must be rigorously controlled.
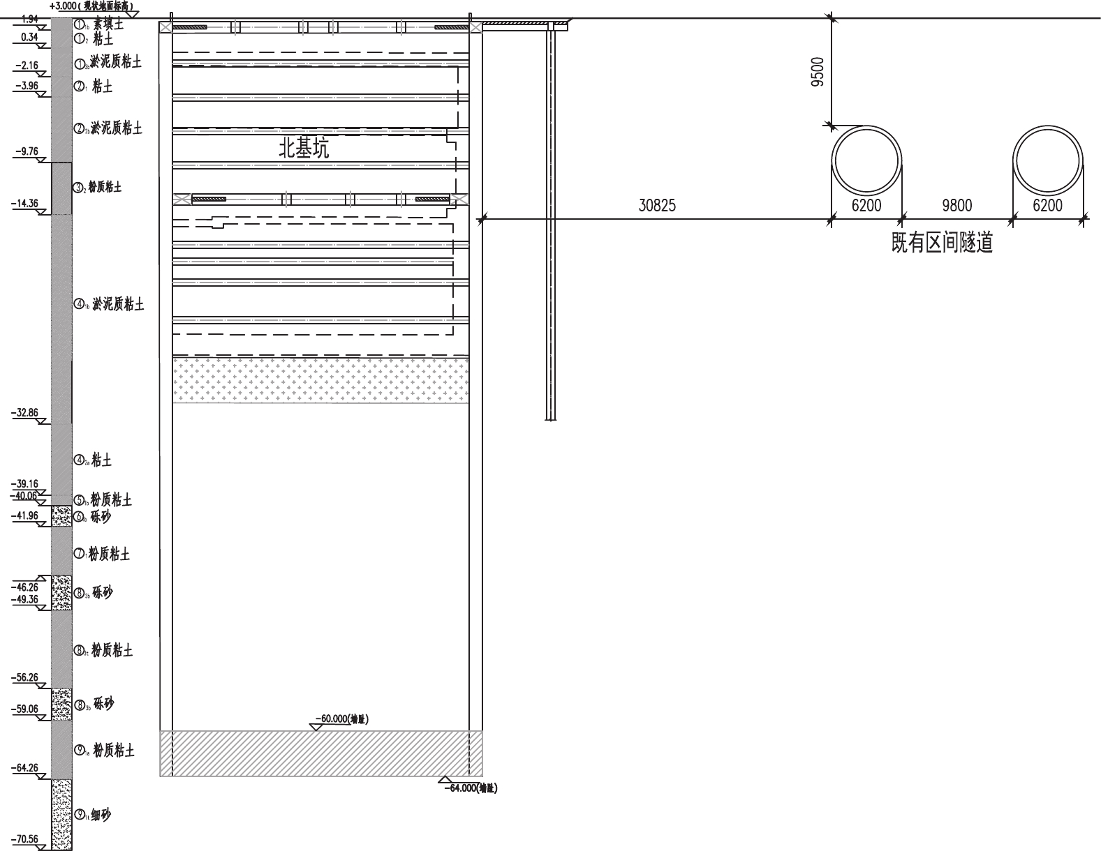
Design and monitoring analysis of deep foundation pit of super-large subway station adjacent existing section tunnel
YE Wei, TANG Bin, CHENG Yichong, AN Ran, WU Caide, GONG Dikuai
2026, 40(1): 55-62. doi: 10.20265/j.cnki.issn.1007-2993.2024-0437
Abstract:
Xiaoyangjiang Station of Ningbo Rail Transit Line 7 is a multi-line transfer station with a three-storey underground. The length of the foundation pit is 270.8 m, the width of the foundation pit of the four line sections is 51.4~55.7 m, the width of the foundation pit of the two line sections is 19.6~27.3 m, and the depth of the foundation pit is 27~31 m. The station construction site is located in an area with deep soft soil and is 30.8 m away from the adjacent section tunnel, which has high requirements for foundation pit deformation control. To control the deformation of the foundation pit and the adjacent tunnel, the foundation pit support design adopts the diaphragm wall + internal support system, and adopts a series of measures such as hard pit time-sharing and section construction, soft pit layered excavation, lengthening the diaphragm wall structural section to cut off the confined water layer, and setting up construction access roads and trestles. The monitoring results show that the deformation control of the large external corner of the foundation pit is very effective by using soft pit division and layered excavation; The surface settlement is sensitive to the load outside the pit, and the surface settlement in the area with long-term load outside the pit is much larger than that in the other areas; The excavation of foundation pit has an impact on the adjacent section tunnel. When the excavation depth is less than the tunnel buried depth, the impact on the section tunnel is greater, while when the excavation depth exceeds the tunnel buried depth, the impact on the section tunnel is relatively small. The final settlement of the section tunnel is 5.9 mm, which is controlled within the allowable range.
Horizontal bearing capacity of piles and effects of engineering treatments considering strain hardening of soil on thick silt nuclear power site
DING Liqin, CHEN Liwei, LÜ Tao, YANG Qiuyu, WANG Xuhong
2026, 40(1): 63-74. doi: 10.20265/j.cnki.issn.1007-2993.2025-0047
Abstract:
Under the current development of nuclear power plants in thick soil area, the application of piles is increasing while the determination and optimization of their horizontal bearing capacity comes to be important issues. A reasonable method was provided to determine the parameters of strain hardening model of soil based on survey data, and the finite element model was established to analyze horizontal bearing piles under nuclear power plants condition. The model was compared with the empirical method suggested by standard to verify its rationality. The impact of various engineering treatment measures on the horizontal bearing capacity of piles was analyzed in detail. The results show that as uniformly arranged, the pile arrangement form has little effect on the horizontal bearing capacity of pile group, while the pile diameter is directly related to this horizontal bearing capacity. Generally compacted soil on the side of the pile cap can increase the horizontal bearing capacity of piles by more than 10%, but the effect of further increasing compaction is not significant. The depth, width, and stiffness of the locally reinforced soil under the pile cap will significantly affect the horizontal bearing capacity of piles, but the width is not necessarily the wider the better. With the pre-consolidation treatment of the upper soft caly layer, the horizontal bearing capacity of the piles can be increased by more than 10%. Besides, by implementing the comprehensive treatment measures above, the horizontal bearing capacity of the piles can be increased by more than 85%. This study can provide a method for predicting and optimizing the horizontal bearing capacity of piles under specific conditions, and the results can provide references for the foundation design at an early stage of various engineering.
Optimization of anti-liquefaction measures for rigid pile composite foundations of cooling towers in the flooded area of Yellow River
LI Jian, ZHANG Mingjing, LIU Xiaowei, ZHUANG Peizhi, ZHU Qiyin, CUI Xueshi, LI Gang
2026, 40(1): 75-83. doi: 10.20265/j.cnki.issn.1007-2993.2024-0503
Abstract:
To investigate the mechanical characteristics and response mechanism of a rigid pile composite foundation with pile reinforcement for cooling towers in liquefiable soil in the flooded area of Yellow River, a numerical analysis was conducted. This study analyzed the dynamic interaction between the site soil and the rigid pile structure under seismic loading, comparing the effects of different pile reinforcement configurations on foundation seismic resistance and deformation characteristics. Results show that peak bending moments occur in the outermost piles, located at the boundary between the liquefiable soil layer and the underlying non-liquefiable soil. For single-row, triple-row, and varying-length pile configurations, the peak bending moments decreased by 16.7%, 31.9%, and 29.9%, respectively. Defining the reinforcement efficiency coefficient as the ratio of peak bending moment reduction to reinforcement pile length, analysis revealed that the varying-length pile configuration has the highest efficiency, while the triple-row pile configuration is the least efficient. Pile reinforcement also reduces overall acceleration around the pile and improves settlement deformation of the pile cap. For single-row, triple-row, and varying-length pile configurations, settlement was reduced by 7.75%, 24.03%, and 15.5%, respectively.
Precipitation distribution characteristics of microbial mineralization sealing rock mass fractures on permeability
LI Yuzhong, LIU Qianling, PENG Zhenhua, ZHANG Haoyu, SUN Zhe, ZHANG Bin
2026, 40(1): 84-90. doi: 10.20265/j.cnki.issn.1007-2993.2024-0323
Abstract:
Groundwater-sealed oil depots have stringent requirements for the water seepage of the chambers, necessitating grouting for seepage control. Microbial-induced calcium carbonate precipitation (MICP), which generates microbial cement, offers new ideas for sealing micro-fissures in rock masses due to its small slurry particles, low viscosity, and good fluidity. The process of reducing seepage through microbial mineralization grouting and sealing rock fissures involves a series of reactions such as microbial urease hydrolysis, mineralization reactions generating precipitation, and the attachment and distribution of precipitation in the fissures. This research first elaborates on the basic principles of microbial mineralization reactions, and introduces the biocatalytic effect based on the most widely studied and applied urease-catalyzed urea hydrolysis method. Then, by analyzing the impact of the precipitation generated during urease-catalyzed urea hydrolysis on the fissure width, theoretical formulas for the reduction of fissure permeability due to different attachment characteristics of mineralization reaction precipitates are derived, and the corresponding influencing effects are analyzed. This article aims to provide a theoretical basis for subsequent research on the mechanism of reducing seepage through microbial mineralization sealing of rock fissures by understanding the coupling relationships involved in the process.
Construction and deformation measurement of shield tunnels adjacent to existing operating lines
ZHU Jun, HUO Chang, XUE Mingsheng, YANG Ping, WANG Jiahui
2026, 40(1): 91-100. doi: 10.20265/j.cnki.issn.1007-2993.2024-0610
Abstract:
Aiming at the deformation control challenge in shield tunneling for overlapping tunnels adjacent to existing operational lines, this study takes the project of the Gangzicun–Huayuan Road section of Nanjing Metro Line 6 as the engineering background and adopts the construction technologies including the bottom-up tunneling sequence, grouting isolation and reinforcement, as well as the formwork trolley system support for the lower tunnel. Through field measurements, it examines the patterns of surface subsidence triggered by the construction of overlapped shield tunnels and the effects of shield tunneling on segments of nearby operational lines. The study documents the complete cycle of surface subsidence and the deformation patterns in existing tunnels. The results show that: (1) During the excavation of the downbound tunnel, the surface settlement first rises with the relative time of excavation, reaches the maximum value, and then settles until it tends to stabilize, and the surface settlement law during the excavation of the upbound tunnel is similar. Affected by grouting isolation and reinforcement, the surface settlement of the existing tunnel does not show significant changes, and the overall surface settlement curve conforms to an asymmetric Peck curve. (2) During shield tunneling, the grouting pressure increases, and the daily variation of surface vertical displacement correspondingly increases. The total thrust and cutterhead torque of the shield machine have no significant effect on the vertical displacement of the ground surface. (3) During the excavation of the upbound tunnel, the deformation of the downbound tunnel develops from a "circular" shape to a "vertical elliptical" shape. Under the support of the trolley, the vertical displacement of the track bed in the downbound tunnel is reduced by 50% compared to the horizontal convergence value of the tunnel without trolley support. (4) After the completion of the upbound tunnel excavation, the maximum settlement of the arch crown and track bed was 2.6 mm and 2.5 mm, respectively, and the maximum horizontal displacement of the left and right arch waists was 0.3 mm and 0.7 mm, respectively, showing a trend of moving towards the overlapping tunnel direction.
Ground and structural deformation characteristics of metro stations constructed by the PBM method
WANG Zijun
2026, 40(1): 101-107. doi: 10.20265/j.cnki.issn.1007-2993.2025-0042
Abstract:
Using the underground excavation section of a metro station in Shenyang as a case study, this research introduces the key technologies and measures for on-site construction of the PBM method. Through on-site monitoring tests, the variation laws of surface settlement, structural deformation and strain caused by the excavation process of the PBM method were studied. The findings demonstrate that the maximum final settlement of the PBM method is about 25 mm, and indicating an acceptable settlement control level. The overall structural deformation and strain are within the safe range, indicating that the overall structural layout of the PBM method station is reasonable. During the excavation and structure pouring of the negative first floor, the excavation step distance and the speed of top plate grouting should be reduced to minimize the disturbance to the overlying pipelines. When the excavation of the negative first floor reaches the central crossbeam, the excavation speed should be appropriately slowed down and temporary support should be strengthened to better control the vertical deformation of the crossbeam.
Experimental Research
Field tests on the effects of diameter of drill pipe on number N of SPT in Xi’an
HUANG Xiaowei, ZHANG Peng, ZHANG Yijun, REN Xiaojiang
2026, 40(1): 108-112. doi: 10.20265/j.cnki.issn.1007-2993.2025-0092
Abstract:
Currently the application of ϕ50 drill pipe used in the Xi’an for standard penetration test (SPT) is wide, which is different from the code that ϕ42 drill pipe is specified. Based on the three projects in Xi’an, the results of the N values of SPT with drill pipes of ϕ50 and ϕ42 were compared in sand and loess-like silt layer, and the relations beteeen them were statistically analyzed, as well as the effects of diameters on liquefaction. The results show that the diameters of drill pipes have a certain influence on the number N of SPT, and the effects are different due to different strata and test depths. Within the test depth from 0 to 10 m, the number N of SPT with drill pipes of ϕ50 and ϕ42 is close, and the ratio N50/N42 is between 0.981.02 in sand and 1.011.05 in loess-like silt. When the test depth is from 10 to 20 m, the number N of SPT with both diameters has larger deviation with the ratio N50/N42 between 1.031.05 in sand and 1.051.10 in loess-like silt. Furthermore, it is generally in non liquefaction state when using ϕ50 and ϕ42 drill pipes for liquefaction discrimination in sand and loess-like silt foundation soil. However, the number N of ϕ42 is evaluated to be in liquefied state in local areas around the liquefaction boundary line, the discrimination result of the ϕ50 drill pipe is non liquefaction.
Experimental study on long-term rebound characteristics of expansive soil
YU Shixiang, KONG Lingming
2026, 40(1): 113-119. doi: 10.20265/j.cnki.issn.1007-2993.2024-0485
Abstract:
To investigate the long-term rebound deformation characteristics of expansive soils, a series of confined long-term rebound tests under varying stress levels was conducted on artificially prepared saturated expansive soils with different swelling potentials. The key findings are: (1) During unloading, weak expansive soils demonstrate clear linear rebound characteristics, while strong expansive soils exhibit pronounced nonlinear rebound characteristics. (2) Long-term rebound deformation following unloading consists of two distinct components: primary rebound deformation and secondary consolidation deformation. When the rebound rate of strong expansive soil is less than the ultimate rebound rate, both deformation stages exist. After the rebound rate reaches the ultimate rebound rate, the primary rebound deformation disappears, and the secondary consolidation deformation occupies the entire deformation process. (3) As the free swell ratio of expansive soils increases, so do the compression index, rebound index, and ultimate rebound ratio, while the critical unloading ratio decreases. A strong linear correlation is observed between the ultimate rebound ratio and the free swell ratio. (4) As the free swell ratio increases, the secondary consolidation coefficient grows exponentially, and the onset of the secondary consolidation stage is delayed.
Performance improvement of shield synchronous grouting slurry based on multi-objective optimization
YAO Yuan, LIU Wei, LIU Yingjing, CHEN Cheng, LIANG Jiaxin
2026, 40(1): 120-131. doi: 10.20265/j.cnki.issn.1007-2993.2024-0613
Abstract:
During the synchronous grouting process of shield tunneling, problems such as grout dilution and segregation are prone to occur. By analyzing actual engineering cases and determining the range of orthogonal design ratios, laboratory experiments were conducted. The experimental results were analyzed using SPSS and MINITAB, and the MATLAB multi-objective optimization tool was employed to study the optimization of grout ratios that meet the requirements of shield tunnel synchronous grouting engineering. The analysis showed that the water-cement ratio ranges from 0.6 to 0.9, the cement-sand ratio ranges from 0.4 to 1.0, the bentonite-water ratio ranges from 0.1 to 0.3, and the fly ash-cement ratio ranges from 0.2 to 0.6. The water-cement ratio significantly affects density and consistency, the bentonite-water ratio primarily influences fluidity, bleeding rate, and consolidation shrinkage rate, and the fly ash-cement ratio has a notable impact on setting time and strength. The regression formula for the grouts fits well and could be used for ratio optimization. Compared with the fmincon function of the MATLAB toolbox solver, the precision of the optimization results from the improved multi-objective genetic algorithm (Non-dominated Sorting Genetic Algorithm II) is higher. The optimal grout ratio obtained after optimization is a water-cement ratio of 0.60, a cement-sand ratio of 0.87, a bentonite-water ratio of 0.25, and a fly ash-cement ratio of 0.60. Based on this, a validation analysis was conducted on a shield section of Beijing Metro Line 12. The results indicated that, compared to the existing scheme, the grout based on multi-objective optimization of the ratios shows better performance in controlling ground deformation.
Experimental and mechanistic study on the water resistance of sodium methylsilicate-modified raw soil
WANG Wei, YANG Yang
2026, 40(1): 132-140. doi: 10.20265/j.cnki.issn.1007-2993.2024-0524
Abstract:
This study investigates the reinforcement mechanism of sodium methylsilicate (SM) on the water resistance of raw soil materials using surface coating and internal incorporation modification methods, with raw soil from central Nei Mongol as the base material. Through 60-minute static water immersion and 120-minute dynamic scouring tests, the following results were obtained: (1) Mechanical properties: Surface-coated and internally incorporated specimens demonstrated 16.67% and 47.66% higher average compressive strength, respectively, compared to the control group. (2) Hydrostatic performance: The average water absorption rates were 1.57% and 2.17% for surface-coated and internally incorporated specimens, with corresponding softening coefficients reaching 0.80 and 0.81. (3) Scouring resistance: The average water absorption rates measured 0.97% and 2.11%, with softening coefficients of 0.55 and 0.63, respectively. (4) Microscopic mechanism: Surface coating modification forms an external encapsulated waterproof layer, while internal incorporation modification generates polysiloxane films through SM-soil particle interactions, simultaneously enhancing both waterproofing capability and structural stability.
Meso structure analysis of fluid-solidified soil with different materials under freeze-thaw cycles
LI Xiangyang, LÜ Kun, YANG Xu, ZHANG Hui, LIU Hao
2026, 40(1): 141-150. doi: 10.20265/j.cnki.issn.1007-2993.2024-0448
Abstract:
Fluid-solidified soil is often used in backfill engineering. To explore the deterioration mechanism of the mechanical properties of fluid-solidified soil caused by the influence of materials and seasonal climate, the change law of meso damage of ready mixed fluid composite soil under freeze-thaw cycle was studied. The change law of meso structure was explored by scanning electron microscope (SEM) and nuclear magnetic resonance (NMR) tests, and the internal mechanism of the composite material was analyzed. The results show that the freeze-thaw cycle will damage the pore size and morphology of soil, and with the increase in times, the micro pores gradually evolve into medium and large pores. The damage degree is different under different materials. The damage degree of the cement composite is the smallest, followed by the lime material. Under the hydration effect, it will form a strong adhesive block, which is the main structural part to resist deformation. The research results can provide a reference for the research and application of fluid-solidified soil materials.
Fluidized solidified soil and its workability and strength based on pumping construction
FAN Ridong, YANG Peng, YANG Aiwu
2026, 40(1): 151-158. doi: 10.20265/j.cnki.issn.1007-2993.2024-0513
Abstract:
Liquidity and compressive strength are key technical indicators in the application of fluidized solidified soil engineering, which determine the construction and workability of fluidized solidified soil and its workability of construction. During pumping construction, reducing the wet density and appropriately improving the flowability of the solidified soil can meet equipment requirements. Using two types of engineering waste soil as parent soil, with a wet density controlled between 1.4 g/cm3 and 1.6 g/cm3, high flowability fluid-solidified soil was prepared. The focus was on investigating the control laws and mechanisms of soil properties and wet density on the flowability, bleeding rate, and compressive strength of fluid solidified soil. Research has shown that the flowability and bleeding rate of fluidized solidified soil are mainly affected by soil properties. The higher the liquid limit of the parent soil, the lower its flowability and bleeding rate. The dosage and type of solidifying agent have relatively insignificant effects on it; the compressive strength is mainly affected by the wet density and curing agent. The higher the wet density, the relatively greater the strength of the fluidized solidified soil. During the self-setting stage of highly fluid solidified soil, the hydration reaction has not yet been fully carried out. The soil particles and hydration products of the soil solidifying agent have self-weight settlement, resulting in varying degrees of bleeding. This leads to uneven compressive strength of the same solidified soil sample along the depth. The microstructure shows that large pores are gradually filled by hydration products, and the bonding effect is more complete. Small and medium-sized pores increase in sequence, and the soil structure is denser.