Current Issue

2026 Vol. 40, No. 2

2026, 40(2)
Abstract:
2026, 40(2): 1-3.
Abstract:
Review and Prospect
Technical exploration for carbon reduction in building pile foundation engineering
FENG Bin, GAO Wensheng, YANG Xiaodong
2026, 40(2): 159-164. doi: 10.20265/j.cnki.issn.1007-2993.2025-0163
Abstract:
Under the implementation of China’s carbon peaking and carbon neutrality goals, the low-carbon development of pile foundation engineering has become imperative. Based on analyzing the sources of carbon emissions in pile foundation engineering and considering its technical characteristics, this paper proposes carbon reduction technical pathways and methods from perspectives of investigation, design, pile type selection, construction, and operation-maintenance. Key approaches include: Accurate investigation to fully utilize natural foundation bearing capacity, thereby avoiding pile usage while ensuring compliance with deformation requirements in codes or designs; Design optimization through correct conceptual design and rational schemes; Pile type innovation via deep soil-pile interaction to achieve complementary strengths and reduce pile quantity; Performance enhancement by maximizing material properties to improve single-pile bearing capacity; Energy conservation by developing high-efficiency pile engineering equipment and eco-friendly practices; Quality-efficiency synergy through digitalization and intelligent technologies for enhancing engineering quality and optimizing resource utilization; Reutilization of existing piles through proper assessment to reactivate their capacity and minimize the number of new piles required; Unlocking the value potential of pile foundation engineering through dual-functional pile systems, thereby optimizing resource utilization.
Technology Development and Innovation
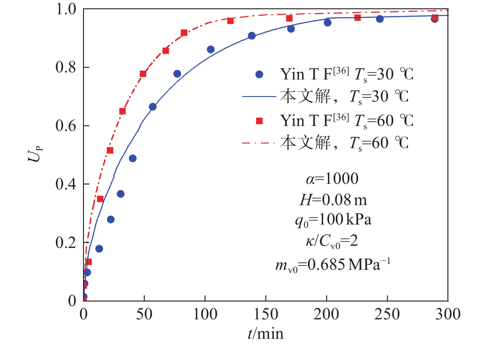
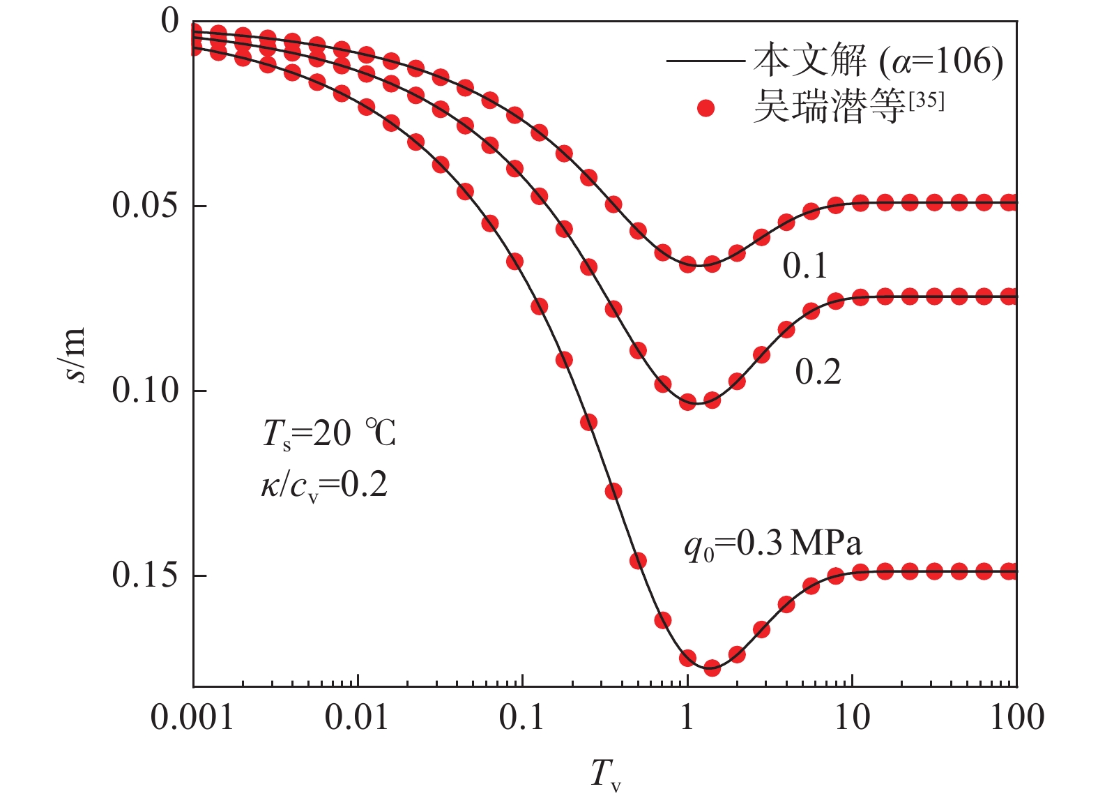
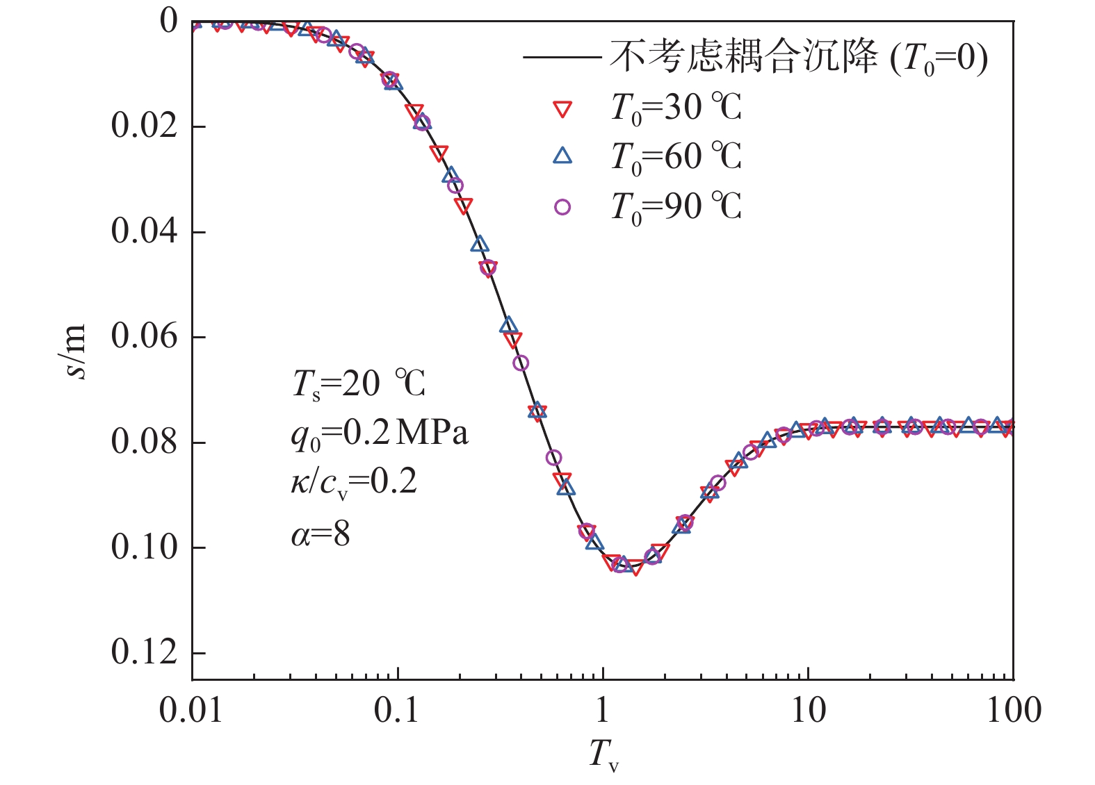
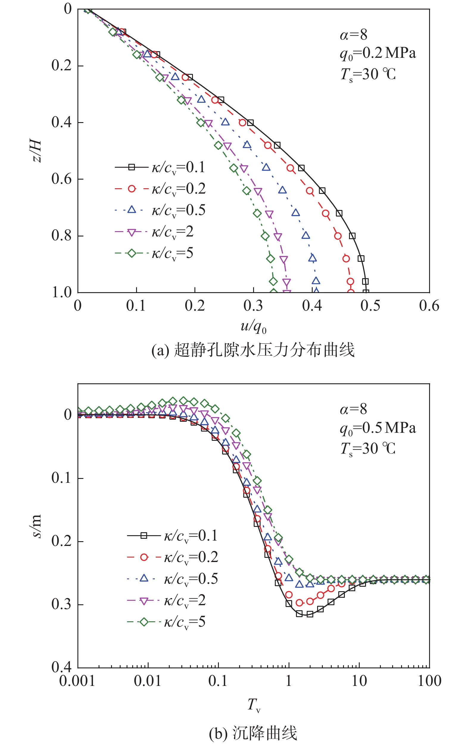
Analytical solution for thermal consolidation of single-layered saturated soil considering thermo-mechanical coupling effect
WU Tao, OUYANG Qiao, ZHANG Yunpeng, XU Jianbo, SONG Jianjun, WU Wenbing
2026, 40(2): 165-174. doi: 10.20265/j.cnki.issn.1007-2993.2025-0245
Abstract:
Based on seepage theory, saturated soil consolidation theory, and thermoelasticity theory, a linear one-dimensional single-layered soil thermal consolidation model was established, and the Laplace transformation and its corresponding numerical inverse transformation method were used to derive the analytical solution for the consolidation under an instantaneous heat source on the soil surface. The accuracy of the derived solution has been verified by comparison with two existing standard consolidation solutions. Through a parametric study, the effects of temperature increment, the ratio of thermal diffusivity to consolidation coefficient on the thermal consolidation characteristics of soil were discussed. The results indicate that: the increase of temperature increment can promote the dissipation of pore water pressure, thereby accelerate the consolidation of soil; the larger the ratio of thermal diffusivity to consolidation coefficient, the faster the thermal expansion and consolidation rate of soil; the presence of thermal stress can promote the dissipation of pore water pressure, accelerate the soil consolidation rate, and reduce the final settlement of the soil through the thermal expansion of the soil.
Tunnel surrounding rock classification and application based on face image recognition
XU Min, YU Wang, FU Helin, CAO Guiqian, LI Jun
2026, 40(2): 175-184. doi: 10.20265/j.cnki.issn.1007-2993.2025-0053
Abstract:
The stability of surrounding rock during tunnel excavation is crucial, and support design relies on accurate classification of the surrounding rock quality. To achieve rapid and precise classification during tunnel construction, an intelligent and rapid classification method for tunnel surrounding rock was proposed, based on the YOLOv8 deep learning algorithm and digital image processing technology, focusing on the tunnel face and incorporating the modified BQ method. The results indicate that the YOLOv8 deep learning model can accurately identify and locate fractures in tunnel face photographs. Combining with image processing techniques, it effectively extracts fracture information from the face, thereby assessing the integrity of the tunnel face and enabling rapid classification of the surrounding rock. Field validation in Yueyang Laimipo Tunnel demonstrates that, compared to actual surrounding rock grades, this method achieves a prediction accuracy of 90%, meeting the needs for rapid classification during tunnel construction. The research provides a reference for dynamic classification of tunnel surrounding rock grades and offers guidance for tunnel excavation and support.
Engineering Practice and Application
Application of ecological protection technology for high and steep slope of urban expressway under complex geological conditions
XU Yangqing, YANG Longwei, JIANG Qiangqiang, LI Jian, JIN Yongjun
2026, 40(2): 185-192. doi: 10.20265/j.cnki.issn.1007-2993.2024-0548
Abstract:
The hidden dangers of road cuts and slopes during the construction of urban expressways seriously threaten driving safety and affect urban landscape. Therefore, it is particularly important to strengthen the research on ecological protection of high and steep slopes on urban expressways. This research takes the high and steep slope of Wuhan Forest Avenue as an example, based on on-site geological investigation and drone aerial photography technology, combined with the engineering geological environment background of the research area, analyzes the geological characteristics of the high and steep slope engineering, and proposes a comprehensive ecological governance design scheme for support and greening. The support design includes anchor plate rib retaining wall, anchor row pile retaining wall, gravity retaining wall, and herringbone grid structure. The greening design mainly includes thick layer substrate spraying technology, planting bags + hanging net soil spraying greening, green cover net + climbing plants + hanging plants greening, and planting grass and shrub plants greening. Practice has shown that this ecological protection scheme has improved the stability of steep slopes and achieved the expected ecological greening effect. Based on this, this research proposes the concept of multi-dimensional comprehensive slope ecological protection technology and establishes an ecological restoration evaluation system for high and steep slopes on urban expressways. The above research results can provide reference for the engineering reinforcement and ecological protection design of high and steep slopes on urban expressways.
Analysis of time-varying evolution and environmental impact on combined deep excavation support structures based on multi-source monitoring
WANG Ziqi, CAI Jihua, XU Jun
2026, 40(2): 193-201. doi: 10.20265/j.cnki.issn.1007-2993.2025-0214
Abstract:
Deep foundation pit projects near rivers are confronted with multiple challenges such as soft soil, high confined water, and sensitive environments. Therefore, it is of great significance to study their deformation laws. Currently, the exploration of the internal relationship and evolutionary laws between dynamic construction activities and foundation pit deformation responses is still insufficient. Taking a deep foundation pit project near the Yangtze River in Wuhan as an example, this study conducts a time-varying correlation analysis between construction nodes and multi-source monitoring data, including the horizontal displacements around and at depth of the foundation pit, the axial forces of supports, and the surrounding settlements. The analysis results are verified by numerical simulation methods. It is revealed that the dynamic construction process directly affects the magnitude and shape of foundation pit deformation by adjusting the equivalent stiffness of the supporting structure. The research results can provide a technical basis for the optimization of the supporting design of deep foundation pits near rivers and the dynamic early warning of construction risks.
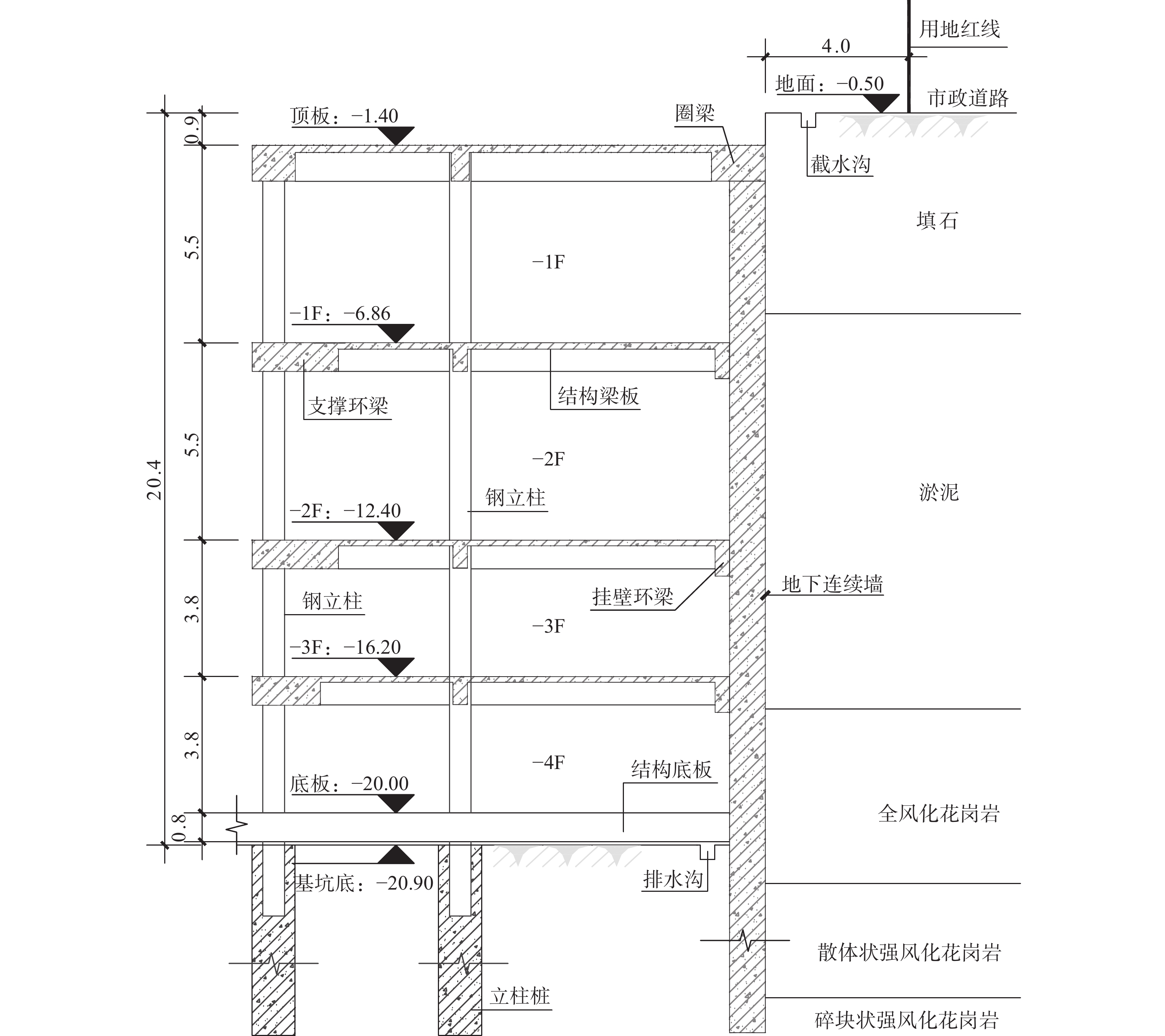
Design and field measurement study of semi-top-down support method for large-opening deep excavation in reclaimed coastal land, Xiamen
SHEN Mengxing
2026, 40(2): 202-212. doi: 10.20265/j.cnki.issn.1007-2993.2025-0176
Abstract:
A deep foundation pit project in Xiamen, located in the urban center within a complex geological environment of a coastal intertidal zone backfill area, faced challenges of dense surrounding buildings, intersecting utility lines, and stringent environmental protection requirements. To achieve the dual objectives of foundation pit deformation control and project cost-effectiveness, a semi-top-down support system combining dual-wall integration with large-opening structural floor slabs was proposed, supplemented by a vertical support system featuring one column and one pile. A comprehensive technical approach combining theoretical analysis, numerical simulation, and dynamic design-to-construction information management was employed to complete the design and construction process. Monitoring data revealed that the maximum deep-seated horizontal displacement of the retaining wall was only 34.2 mm, with surrounding ground surface settlement generally less than 20 mm, effectively safeguarding the safety of the surrounding environment. This study summarizes methods for determining the equivalent horizontal stiffness of large-opening floor slabs, proposes an optimization pathway for the continuous diaphragm wall trenching process in complex strata, and develops measures such as efficient formwork techniques for horizontal floor slabs and beam-column joint construction. Additionally, it proposes improvement measures addressing the causes of defects in continuous diaphragm wall structures. Results indicate: The semi-top-down method for deep foundation pit support in coastal backfilled areas with large openings is reasonably feasible. The horizontal support stiffness of large-opening floor slabs should be comprehensively determined based on slab width and thickness, with a recommended range of 30 MN/m2 to 85 MN/m2. Furthermore, during design, floor slab design loads can be zoned according to construction requirements, and the vertical support system design can be optimized. This research provides technical guidance for similar deep foundation pit projects in complex coastal geological environments.
Application of beam string steel truss support in a box foundation pit project
HUANG Zuteng, YANG Jing, GAO Pengyu
2026, 40(2): 213-220. doi: 10.20265/j.cnki.issn.1007-2993.2024-0566
Abstract:
With the development of urban underground space to deep and large, green recyclable support technology has become an important development direction of foundation pit engineering. In this paper, the engineering applicability and environmental benefits of the prestressed prefabricated beam string steel truss support technology of a sewage treatment plant in the Guangdong-Hong Kong-Macao Greater Bay Area are systematically demonstrated. By constructing a multi-scheme comparison model of concrete support and beam string steel truss support, combined with finite element numerical simulation and monitoring of the whole construction process, the mechanical properties and deformation control mechanism of the technology are revealed: (1) The prestress control system can realize the active control of foundation pit deformation, and the maximum reverse deformation of some pile top displacement monitoring points is –8.4 mm; (2) The modular assembly technology expands the support spacing from 18 m to 30 m, frees up 30% of the working space, and improves the construction efficiency; (3) A steel-concrete composite support system could effectively solve the problem of plane adaptation of special-shaped foundation pits; (4) The quantitative environmental benefits show that the recycling rate of steel components is more than 95%, reducing construction waste and carbon emissions. This case provides a quantitative design paradigm for green support technology for deep foundation pits, and has practical value for promoting the development of sustainable geotechnical engineering.
Analysis of the influence of solidified slurry buttress support on the deformation of soil outside the pit
ZHANG Nan, ZHANG Hui, LIU Yongchao, LI Bingbing, WANG Hao, YAO Yixuan
2026, 40(2): 221-230. doi: 10.20265/j.cnki.issn.1007-2993.2024-0562
Abstract:
To effectively solve the two major problems of controlling engineering waste generation and foundation pit deformation, this research proposes to improve the engineering waste mud and use it in the buttress wall of the buttress foundation pit support structure. The three-dimensional model was established by using PLAXIS 3D finite element software. The reliability of the model was verified and the difference of soil deformation outside the pit under the action of slurry buttress was compared and analyzed. The calculation results show that the constitutive model can better reflect the deformation of the soil outside the pit. Compared with no slurry buttress, the pre-buried slurry buttress wall can pre-suppress the adverse deformation of the surface soil outside the pit. Under the most dangerous working conditions, the surface settlement can be reduced by 73.3%, and the horizontal displacement of the surface can be reduced by 66.4%. The embedded buttress wall has little effect on the deformation trend of deep soil outside the pit, but it can effectively control the deformation of deep soil outside the pit and reduce the area affected by adverse deformation. The embedded slurry buttress wall can not only constrain the maximum angular strain and tensile strain generated by the deformation of the soil outside the pit, but also reduce the influence range of angular strain and tensile strain, thus reducing the damage of angular strain and tensile strain to the existing buildings near the pit to a certain extent.
Application and deformation characteristics study of pile-brace-anchor support in deep and thick miscellaneous fill foundation pit
WEI Renjie, YAN Liming
2026, 40(2): 231-236. doi: 10.20265/j.cnki.issn.1007-2993.2024-0541
Abstract:
Taking a comprehensive environmental improvement project in Jiangyin as the background, this article introduces the pile-anchor-brace support form in deep miscellaneous fill foundation pits. Based on the characteristics of miscellaneous fill and the protection requirements of surrounding buildings, corresponding construction measures were proposed. By combining PLAXIS 2D finite element simulation with theoretical calculations, the internal forces and deformation characteristics of the retaining structure, as well as the settlement patterns of the surrounding ground, were analyzed. The research results show that: (1) the overall displacement of lateral deformation of the retaining structure mainly occurs in the upper miscellaneous fill layer; (2)the surface settlement is spoon shaped, with the maximum settlement value located at about 0.5 times the excavation depth at the edge of the foundation pit; (3) there are some differences between the bending moment and shear force values simulated by finite element and the theoretical calculation values, but the overall variation pattern of the curves is basically the same, indicating that the established calculation mode and selected soil and rock parameter are all reasonable.
Distribution of negative skin friction of pile foundations with different mechanical characteristics under ultra-thick soft soil conditions
XIANG Li, FU Guoshun, ZHANG Zhen
2026, 40(2): 237-244. doi: 10.20265/j.cnki.issn.1007-2993.2024-0578
Abstract:
When there are soft soils around the piles, and large long-term load or ground surcharge is applied adjacent to the pile foundation, the negative skin friction should be considered. Previous studies have not taken into account the influence of pile foundation form on negative skin friction of the pile foundation. This paper investigates the distribution characteristics of negative skin friction of pile foundations under different working conditions through a three-dimensional finite element numerical model, including pile-net composite foundation, pile-cap foundation and pile-raft foundation, based on a soft ground treatment project at a certain substation. The test results present that pile-net composite foundation may not need to consider negative skin friction. The neutral point depth of pile-cap foundation and pile-raft foundation is in the range of 0.33 to 0.44. Ground consolidation during construction may reduce skin friction. Due to the arching effect and membrane effect in the pile-net composite foundation, the pile carries majority of external load, leading to a significant reduce in skin friction. The research results are valuable for the design of negative skin friction of pile foundations in areas with thick soft soil under large area surcharge.
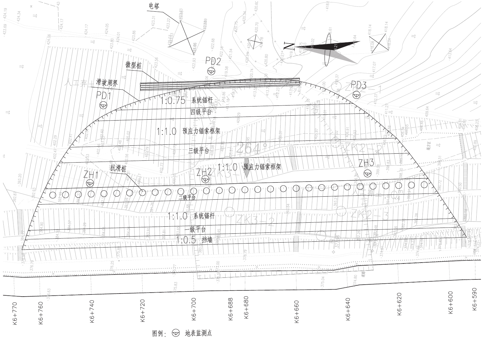
Evaluation of landslide treatment effect by numerical simulation analysis
LIN Canyang
2026, 40(2): 245-253. doi: 10.20265/j.cnki.issn.1007-2993.2024-0475
Abstract:
A severe sliding deformation occurred on the slope of the Longteng North Road section K6+590–K6+770 in June 2022. Based on the field investigation and prospecting results, the Morgenstern-Price method was adopted to conduct stability calculations for three typical sections. Through the analysis of landslide causes and stability calculation results, a landslide treatment scheme combining emergency rescue measures and permanent control measures was proposed. The emergency measures included setting 4 rows of micro-piles with prestressed anchor cables at the slope top, while the permanent measures consisted of slope cutting and unloading, prestressed anchor cable frames, prestressed anchor cable anti-slide piles, and anti-slide retaining walls. To verify the effectiveness of the treatment measures, the main axis section (Section Ⅱ-Ⅱ') with the minimum stability coefficient was selected for modeling and analysis. The finite element method was used to analyze the slope displacement under natural and rainstorm conditions, respectively. A comparison of slope displacement before and after treatment under different working conditions showed that the slope displacement was significantly reduced after treatment. The post-construction displacement monitoring results indicated that the slope displacement had converged and the landslide was in a stable state, demonstrating that the adopted landslide treatment measures are reasonable and effective.
Deformation law of surrounding rock in shallow buried asymmetric small clear distance tunnel with different construction methods
HE Jinjiang, LIU Yang, JIANG Kang, DUAN Shengze, JI Lijie, ZHANG Shuai, JI Pengfei, ZHANG Weizhong
2026, 40(2): 254-262. doi: 10.20265/j.cnki.issn.1007-2993.2025-0041
Abstract:
Aiming at the problem that unreasonable construction methods for double-hole asymmetric section small clear-distance tunnels cause unbalanced loading, leading to tunnel collapse risk due to superimposed stress in the intermediate rock pillar, this study investigates the Qingliangshan Station project of Nanjing Metro Line 7. The finite element method is used to simulate surrounding rock deformation laws under three excavation methods: double-step method, CD − two-step method, and double-side wall guide pit method − thiple-step method, to select an optimal construction method. The results show that: (1) Maximum surrounding rock settlement occurs at the vault, with soil heave at the arch bottom. Surface settlement is proportional to the tunnel’s centerline position, and the settlement curve tends to a single-peak shape. Plastic zones are mainly distributed at the arch waist, sidewalls, and intermediate rock pillar, with potential continuity in the intermediate rock pillar; the double-step method results in significantly larger plastic zones than other methods. (2) Vault settlement values for all methods follow large tunnel > small tunnel. Compared to the CD − two-step method and double-step method, the double-side wall guide pit − triple-step method reduces large tunnel vault settlement by 4.33% and 24.01%, and small tunnel vault settlement by 4.95% and 11.77%, respectively. Maximum surface settlement ranks as: double-step method > CD − two-step method > double-side wall guide pit − triple-step method. The CD − two-step method is selected as the optimal method after comparison of deformation control, construction efficiency, economy and other aspects. (3) Field monitoring and simulation results for surface and vault under the CD − two-step method show consistent surrounding rock deformation laws.
Experimental Research
Uniaxial compressive strength testing curve of rock based on the Leeb hardness method
JIANG Zhenggui
2026, 40(2): 263-269. doi: 10.20265/j.cnki.issn.1007-2993.2025-0011
Abstract:
The Leeb hardness tester, due to its small impact device size and low impact energy, has the advantages of being easy to carry and operate, low requirements for the testing surface, and inducing minimal surface damage to rock specimens especially weak rocks. Therefore, it can be better applied in rock strength assessment in complex environments. This study tests the Leeb hardness of different types of rocks in geological bodies using a Leeb hardness tester, and then tests the uniaxial compressive strength of the rocks after impact. It analyzes and compares the relationship between the Leeb hardness and the corresponding uniaxial compressive strength of the tested rocks, and establishes the strength measurement curves based on linear, power, and quadratic polynomial functions. And the applicability evaluation indicators of the strength curve were introduced in the analysis. The correlation coefficients, relative errors of strength, and relative standard deviations different types of strength curves were compared. The results show that for the selected granites, sandstones, mudstones, and limestones, the uniaxial compressive range of 7.63 to 161 MPa, the fitting parameters obtained using the power function fitting are optimal. The power function regression formula the strength measurement curve is Y=(2×10–5)X2.2931, with a correlation coefficient of 0.9616, the average relative error of the corresponding strength curve is 14.74%. The relative standard deviation is 17.41%, which meets the applicability of the unified strength measurement curve.
Laboratory model of soil humidification in unsaturated area after vacuum preloading treatment
CHENG Ming, CHEN Guangfei, CHEN Zijian
2026, 40(2): 270-275. doi: 10.20265/j.cnki.issn.1007-2993.2024-0554
Abstract:
The vacuum preloading treatment creates an unsaturated zone in the upper layer of soft soil. After the vacuum pressure is released, groundwater outside the reinforced area will seep in, gradually wetting the unsaturated zone and leading to a decrease in soil strength and an increase in deformation. Based on indoor model tests, the analysis of the conditions of wetting in the reinforced area due to external recharge water after the vacuum extraction was conducted by examining settlement deformation, pore water pressure, moisture content, saturation degree, and undrained shear strength of the reinforced soil. The results indicate that settlement rebounds, with deformation first increasing slowly, then rapidly, and finally stabilizing at a slow growth rate; pore water pressure shows a trend of increase over time; moisture content of the soil has increased, with smaller changes in moisture content at greater depths; the upper unsaturated zone of the soil becomes partially saturated after wetting, and the undrained shear strength at a depth of 0.25 m varies significantly with different distances from the recharge water source, ranging from a minimum of 64.8 kPa to a maximum of 90.1 kPa; at a depth of 0.50 m, the differences in undrained shear strength with varying distances from the recharge water source are minor, ranging from a maximum of 66.8 kPa to a minimum of 64.9 kPa. The wetting conditions of the soil are related to the distance from the recharge water source; the closer the distance to the recharge water source, the greater the impact of wetting, providing reference for practical engineering.
Conversion coefficient of extremely soft rock by Osterberg Cell Testing of large diameter ultra-long pile
CHEN Yitan, ZHANG Rong, LI Zhongwei
2026, 40(2): 276-286. doi: 10.20265/j.cnki.issn.1007-2993.2024-0451
Abstract:
As an efficient test technique for pile bearing capacity, Osterberg Cell (O-Cell) testing can directly measure the bearing capacity of single pile in complex environment. However, few studies have been conducted on the reasonable value of the key calculation parameter γ in this method under extremely soft rock conditions. Based on the pile foundation of the main tower of Nanjing Longtan Yangtze River Bridge, the in-situ O-Cell testing was carried out and the test results of extremely soft rock stratum were obtained. Considering the weakening effect of the side bearing capacity of the upper section pile, a three-dimensional finite element model is established to simulate the O-Cell testing process, and the conversion coefficient is quantitatively analyzed based on the comparison between the test and the simulated data. The results show that the simulated results are most close to the measured results when the pile foundation conversion coefficient γ is 0.9 in the very soft rock formation. Under extremely soft rock conditions, the modification of the conversion coefficient leads to an increase in both the ultimate bearing capacity and the characteristic bearing capacity of pile foundations, thereby improving the rationality of bearing capacity evaluation and providing a more reasonable basis for capacity selection in engineering design. The research results can provide reference for self-balancing test parameters under similar geological conditions.
Road performance and engineering application of recycled soil-aggregate mixed green base material
XUAN Xiaoxin, LIU Wei, YAO Yanbo, YANG Guowei, YE Zi
2026, 40(2): 287-296. doi: 10.20265/j.cnki.issn.1007-2993.2025-0069
Abstract:
In the context of the rapid development of "Carbon Peaking and Carbon Neutrality Goals" and urbanization, on the one hand, the mining of high-quality stone resources is restricted, resulting in production cuts. On the other hand, the demand for road fillers increases, the emissions of construction waste soil and waste concrete stone will remain high. To address the two major engineering issues of the shortage of high-quality stone materials and the difficulty in disposing of waste soil, a high-volume mixture of improved waste soil and waste stone materials is used to replace the aggregate components in the cement stabilized layer, preparing a recycled soil-stone mixed green base material with excellent road performance. By combining unconfined compressive strength (UCS), flexural tensile strength, elastic modulus, and water stability tests, the appropriate soil-stone mixture ratio is explored to prepare green base materials with good strength and durability. Based on the Box-Behnken response surface method, through variance analysis, it is proposed that a soil-stone ratio of 4:6, a cement content of 6%, and a material compaction degree of 98% are the optimal application scheme. The results of indoor tests are extended to large-scale fill material improvement factories, achieving intensive production of base materials and application in test sections. It is found that the on-site flexural deflection, coring, and UCS testing results are good, meeting the design requirements, and verifying the feasibility of the recycled soil-stone mixed green base material.
Experimental study on the influence of different admixtures on the disintegration characteristics of fluid-consolidated soil
LI Xiangyang, GAO Ce
2026, 40(2): 297-305. doi: 10.20265/j.cnki.issn.1007-2993.2024-0456
Abstract:
Due to its special physical and chemical properties, loess is prone to disintegration under natural conditions of freeze-thaw cycles, which in turn affects the safety and durability of engineering construction. To address this issue, five different materials—cement, quicklime, fly ash, polypropylene fiber, and steel fiber-reinforced polymer—were selected to prepare fluidized solidified soil. Through indoor simulated freeze-thaw cycle experiments, the disintegration characteristics under different materials and different numbers of freeze-thaw cycles were analyzed to evaluate the improvement effects, leading to the following conclusions: Cement, quicklime, and cement–steel fiber composites showed relatively good improvement effects, with varying degrees of reduction in disintegration rate and disintegration speed; fly ash and polypropylene fiber only slowed the disintegration rate in the absence of freeze-thaw cycles; the cement–steel fiber composite material had better improvement effects than a single material (cement). Freeze-thaw cycles have a promoting effect on soil disintegration.
Grouting isolation and reinforcement test and measurement analysis of the parallel existing operating line of the overlapping tunnel
CHEN Jia, YU You, YANG Ping, ZHU Jun, WANG Jiahui, FAN Shaowei
2026, 40(2): 306-316. doi: 10.20265/j.cnki.issn.1007-2993.2025-0068
Abstract:
To verify the feasibility of ensuring the safe operation of the existing tunnel by applying the grouting reinforcement isolation wall method in the small-clearance, long parallel section between Nanjing Metro Line 6 and the existing Line 4, a representative test area was selected based on similar stratum distribution. Studies and tests were conducted on the reinforcement method, including grouting process and mix ratio optimization, in-situ deep soil grouting, coring inspection and water injection tests, saturated uniaxial compressive strength tests, as well as earth pressure and deep soil horizontal displacement monitoring. The results indicate that for the strata in this project, it is advisable to employ bentonite-cement slurry and rapid-setting high-strength cement-based slurry. The grouting operation should adopt the methods of "skip-hole drilling" and "cyclic grouting in intervals", with staged grouting for formations at different depths. The lateral reinforcement extent of the grouted zone reaches ≥2.70 m, which can serve as the control criterion for formal grouting construction. During grouting, the earth pressure induced at the equivalent horizontal distance from the existing line was 0.508 MPa, slightly exceeding the design requirement. However, the maximum horizontal displacement of the soil was 4.64 mm, satisfying the design requirements. After grouting reinforcement, the stratum changed from extremely fragmented to moderately complete to relatively complete, and from medium permeable stratum to slightly permeable stratum, and the saturated uniaxial compressive strength of the core samples taken from the inspection hole is more than 1 MPa. Therefore, it is feasible to use this grouting process and parameters for the grouting isolation and reinforcement construction near the existing operating lines. This can provide a reference for the grouting isolation and reinforcement under similar working conditions.